※このサイトに記載がある賃貸条件は、敷金・保証金などの預かり金を除き、別途消費税がかかります。
物件情報
設備詳細
| 空調 | 個別空調 |
|---|---|
| トイレ | 男女共用トイレ・室外 |
| 床仕様 | - |
| エレベータ | 1 基 |
| 駐車場設備 | - |
| その他 | 東京賃料が坪11000円以下 |
大橋ビルの賃貸オフィス・事務所に関するお問い合わせ
大橋ビルについて
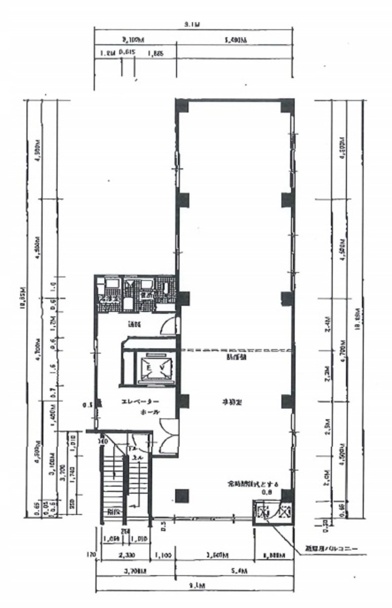
大橋ビルは、東京都千代田区神田多町2丁目に位置する賃貸オフィスビルであり、その立地はビジネスの中心地として理想的な環境を提供しております。1976年に竣工した本物件は、7階建てであり、基準階面積は約35坪となっております。建物内には1基のエレベーターが設置されており、利用者の移動をスムーズに支援します。 大橋ビルの室内は、長方形に近いL字型の形状をしており、効率的なオフィスレイアウトを可能にし、企業の様々なニーズに対応できるよう設計されています。外観はレンガ調で、レトロモダンな雰囲気を漂わせる一方、内装は機能性と快適性を重視した設計が施されています。 立地においては、一八通り沿いに位置し、周辺にはオフィスビルが立ち並びます。このエリアは落ち着いたオフィスエリアでありながら、コンビニエンスストアや郵便局等の生活に必要な施設が至近に揃っており、日々の業務に必要な利便性が高い点が魅力です。また、最寄り駅である神田駅をはじめ、淡路町駅、小川町駅など複数の駅が利用可能であり、都内各所へのアクセスも良好です。 大橋ビルは、その歴史を感じさせる外観と、現代のオフィスニーズに合わせた内装のバランスが特徴的であり、ビジネスの場としてだけでなく、企業イメージを高める要素としても大きな価値を提供しています。小規模から中規模の企業にとって、機能性と利便性、そして立地の良さを兼ね備えた本物件は、長期的な事業展開を考える上で最適な選択肢と言えるでしょう。 総じて、大橋ビルはその独特の魅力と、ビジネスにおける利点を兼ね備えた賃貸オフィス物件として、企業の様々なニーズに応えることができる、非常に魅力的な選択肢です。
大橋ビルのこだわり
自分で探すより問い合わせる方が早いことがあります
WEB非公開物件があるから
オーナー様のご希望により「WEBでは非公開」にしている物件があります。 それらはWEBでいくら検索しても見つかりません。 先ずは条件などお知らせ頂けましたら非公開物件含め ピッタリのオフィスをご提案させて頂きます。 無理なお勧めはしておりませんので、お気軽にお問い合わせください。
対面でのご相談も受け付けております
ご来店も歓迎です
オフィス移転は社内・社外ともに非公開に行われることが殆どです。そのためアットオフィスでは、基本的に訪問によるコンサルティングを行っておりますが、ご来店の相談も歓迎です。お一人おひとりに親身にご対応させて頂きたい為、要予約とさせて頂いております。ご来店の際は先ずは下記よりご予約下さい。
募集終了のテナント区画
| 階数 | 坪数 | 賃料 + 共益費 | 敷金/礼金敷金 礼金 | 検討 |
|---|---|---|---|---|
| 4階 | 35坪 (115.7m²) | 募集終了 | - | - |
読込中...
神田/秋葉原エリアで大橋ビルに似た条件の物件
読込中...
| 取扱様態 | 仲介 |
|---|---|
| 取扱会社 | 株式会社 アットオフィス |