秋葉原鴻池ビル2階の賃貸情報
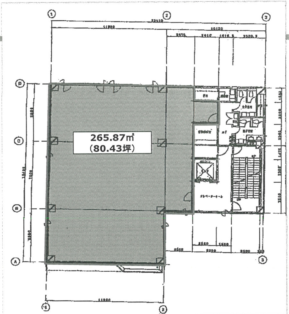
79.92 坪 (264.23m²)
※このサイトに記載がある賃貸条件は、敷金・保証金などの預かり金を除き、別途消費税がかかります。
秋葉原鴻池ビルの建物概要
設備詳細
| 空調 | 個別空調 |
|---|---|
| トイレ | - |
| 床仕様 | OA対応床(フリーアクセス) |
| エレベータ | 1 基 |
| 駐車場設備 | - |
| その他 | 機械警備 / 24時間利用可 / 光ファイバー / 新耐震基準 / フリーレント |
秋葉原鴻池ビルについて
東京の心臓部、千代田区神田佐久間町に位置する秋葉原鴻池ビルは、その立地と設備の良さで知られるオフィスビルです。秋葉原駅からわずか徒歩1分という好立地に加え、周囲には飲食店や商業施設が豊富にあり、ビジネスと生活の両方に便利な環境を提供します。 このビルは、高級感溢れる白い御影石を使用したエントランスが特徴で、一歩足を踏み入れると、その高級感と落ち着いた雰囲気に圧倒されます。エントランスの造りは、訪れる人々に対してプロフェッショナルで上質な印象を与えることでしょう。 ビル内のオフィススペースは、柔軟なレイアウトが可能で、あらゆるタイプのビジネスニーズに対応できるように設計されています。柱の数が限られているため、広々としたオープンスペースを活用しやすく、効率的なオフィス環境を実現できます。また、ネット面積での契約が可能であるため、企業は必要なスペースだけを適正価格で借りることができ、経済的な運営が可能になります。 共有部には、清潔感のあるトイレと給湯室が備わっており、快適な職場環境をサポートします。ビルの設備は、最新のOA対応空調システムやエレベーターが設置されており、ビジネスの効率化を図ると共に、快適な職場環境を提供します。 秋葉原鴻池ビルの立地する秋葉原エリアは、JR、東京メトロ日比谷線、つくばエクスプレスという3路線が利用可能で、東京都内はもちろんのこと、首都圏外へのアクセスも優れています。ビルの周辺には、ランチやアフター5を楽しめる多数の飲食店があり、ビジネスパーソンにとって魅力的な環境です。 まとめると、秋葉原鴻池ビルは、抜群の立地、柔軟なレイアウト、高品質な設備を兼ね備え、どんなビジネスにも対応可能なオフィスビルです。このビルは、高級感あふれる空間でビジネスを行いたい企業にとって、理想的な選択肢となるでしょう。
自分で探すより問い合わせる方が早いことがあります
WEB非公開物件があるから
オーナー様のご希望により「WEBでは非公開」にしている物件があります。 それらはWEBでいくら検索しても見つかりません。 先ずは条件などお知らせ頂けましたら非公開物件含め ピッタリのオフィスをご提案させて頂きます。 無理なお勧めはしておりませんので、お気軽にお問い合わせください。
対面でのご相談も受け付けております
ご来店も歓迎です
オフィス移転は社内・社外ともに非公開に行われることが殆どです。そのためアットオフィスでは、基本的に訪問によるコンサルティングを行っておりますが、ご来店の相談も歓迎です。お一人おひとりに親身にご対応させて頂きたい為、要予約とさせて頂いております。ご来店の際は先ずは下記よりご予約下さい。
神田/秋葉原エリアで秋葉原鴻池ビルに似た条件の物件
読込中...
秋葉原鴻池ビルと同じ最寄駅の物件
読込中...
| 取扱様態 | 仲介 |
|---|---|
| 取扱会社 | 株式会社 アットオフィス |