TQ蛎殻町の賃料条件
| 階数 | 坪数 | 賃料 + 共益費 | 敷金/礼金敷金 礼金 | 検討 |
|---|---|---|---|---|
| B1階 | 18.59坪 (61.45m²) | 297,440円 (坪:16,000 円) | 4ヶ月 無4ヶ月/無 | |
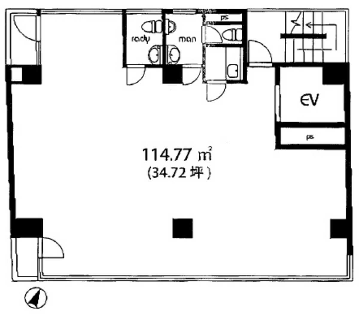
| 2階 | 35.31坪 (116.74m²) | 706,200円 (坪:20,000 円) | 6ヶ月 無6ヶ月/無 |
※このサイトに記載がある賃貸条件は、敷金・保証金などの預かり金を除き、別途消費税がかかります。
物件情報
設備詳細
| 空調 | 個別空調 |
|---|---|
| トイレ | 男女別トイレ室外 |
| 床仕様 | OA対応床(フリーアクセス) |
| エレベータ | 1 基 |
| 駐車場設備 | - |
| その他 | 機械警備 / 光ファイバー / 新耐震基準 / セットアップ |
TQ蛎殻町の賃貸オフィス・事務所に関するお問い合わせ
TQ蛎殻町について
TQ蛎殻町は、中央区日本橋蛎殻町1-6-9にある、1988年竣工の地上7階建ての賃貸オフィスビルです。この物件は、2019年に大規模なリニューアル工事を施され、現代のビジネスニーズに対応する最新の設備とスペックを備えています。立地においても、東京メトロ半蔵門線水天宮前駅より徒歩3分、さらに複数の駅と路線が徒歩圏内にあるため、非常にアクセスが良好です。 このビルの最大の特徴は、リニューアルを経て内装がフルリニューアルされた点にあります。エントランスや室内は清潔感があり、モダンなデザインが施されています。また、室内には会議室が設置されており、ビジネスの様々なシチュエーションで活用できる柔軟性を持っています。 設備面においても、このビルは非常に優れています。各階には個別空調・OAフロアが完備されており、作業環境を快適に保つことができます。さらに、光ファイバーの導入により、高速インターネット環境も整っています。セキュリティ面では、機械警備システムが導入されており、24時間安心して使用可能です。 立地についても、水天宮前駅を最寄りとし、茅場町駅・人形町駅が徒歩圏内にあることから、複数の交通網を利用できる点が大きなメリットです。周辺には飲食店も豊富にあり、ビジネスランチやアフター5の利用にも便利な環境が整っています。 TQ蛎殻町は、立地の良さ、設備の充実度、そしてリニューアルによるモダンなデザイン性を兼ね備えた賃貸オフィスビルです。ビジネスの拠点としての利用はもちろん、クライアントを迎える際にも好印象を与えることができるでしょう。このビルで、あなたのビジネスを一層発展させてみてはいかがでしょうか。
TQ蛎殻町のこだわり
自分で探すより問い合わせる方が早いことがあります
WEB非公開物件があるから
オーナー様のご希望により「WEBでは非公開」にしている物件があります。 それらはWEBでいくら検索しても見つかりません。 先ずは条件などお知らせ頂けましたら非公開物件含め ピッタリのオフィスをご提案させて頂きます。 無理なお勧めはしておりませんので、お気軽にお問い合わせください。
対面でのご相談も受け付けております
ご来店も歓迎です
オフィス移転は社内・社外ともに非公開に行われることが殆どです。そのためアットオフィスでは、基本的に訪問によるコンサルティングを行っておりますが、ご来店の相談も歓迎です。お一人おひとりに親身にご対応させて頂きたい為、要予約とさせて頂いております。ご来店の際は先ずは下記よりご予約下さい。
募集終了のテナント区画
| 階数 | 坪数 | 賃料 + 共益費 | 敷金/礼金敷金 礼金 | 検討 |
|---|---|---|---|---|
| 1階 | 8.53坪 (28.19m²) | 募集終了 | - | - |
| 3階 | 35.31坪 (116.74m²) | 募集終了 | - | - |
| 6月7日階 | 32.17坪 (106.35m²) | 募集終了 | - | - |
読込中...
近くのエリアで探してみる
人形町/馬喰町/浜町エリアでTQ蛎殻町に似た条件の物件
読込中...
| 取扱様態 | 仲介 |
|---|---|
| 取扱会社 | 株式会社 アットオフィス |