※このサイトに記載がある賃貸条件は、敷金・保証金などの預かり金を除き、別途消費税がかかります。
物件情報
設備詳細
| 空調 | - |
|---|---|
| トイレ | - |
| 床仕様 | - |
| エレベータ | 1 基 |
| 駐車場設備 | - |
| その他 | 新耐震基準 / 居抜き / 店舗可(飲食可) / クリニック |
六本木稲垣ビルの賃貸オフィス・事務所に関するお問い合わせ
六本木稲垣ビルについて
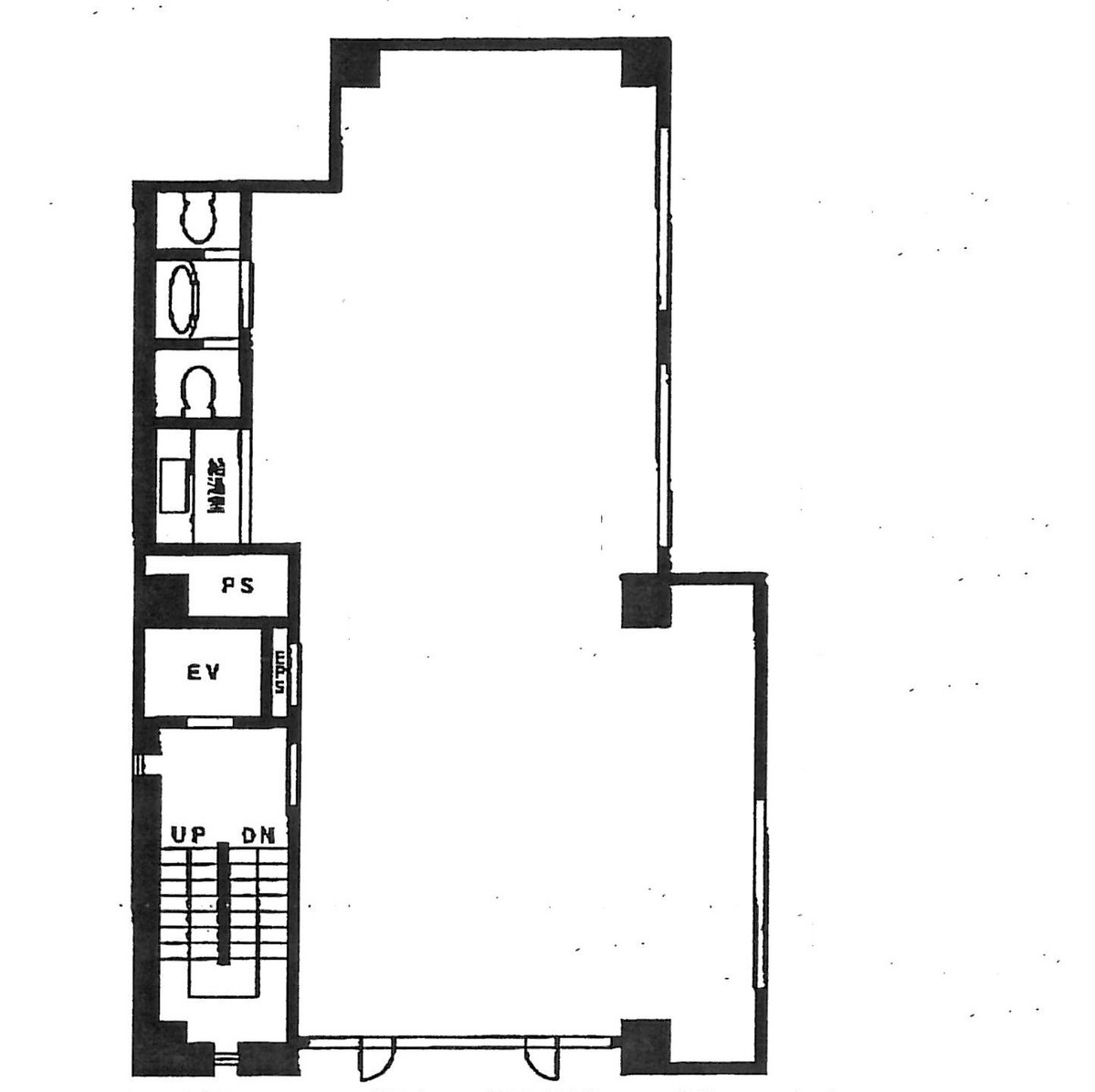
六本木稲垣ビルは、東京都港区六本木に位置する賃貸オフィスビルで、1988年に竣工しました。このビルは、新耐震基準に適合しており、安全性において高い基準を満たしています。オフィスフロアは39坪弱の規模で、長方形に近い執務スペースが特徴です。男女別トイレを備え、利便性も考慮されています。ビル内にはエレベーターが1基設置されており、移動の効率化が図られています。 立地においては、六本木稲垣ビルは大変魅力的な環境にあります。最寄り駅は、都営大江戸線および東京メトロ日比谷線の六本木駅で、徒歩5分と7分の距離にあります。また、東京メトロ千代田線の乃木坂駅も徒歩10分圏内と、複数の路線が利用可能であり、ビジネスの拠点としてのアクセスの良さは抜群です。 周辺環境も非常に充実しています。ビルは東京ミッドタウンの近くに位置し、周辺には多くの飲食店や店舗があります。徒歩1分圏内にはサブウェイやセブンイレブンがあり、忙しいビジネスパーソンにとって日々の利便性を大きく向上させます。さらに、徒歩圏内には国立新美術館などの文化施設もあり、ビジネスの合間にアートを楽しむことも可能です。 六本木稲垣ビルは、新耐震基準に適合した安全性、効率的なオフィススペース、優れたアクセス、そして豊かな周辺環境を兼ね備えています。ビジネスの拠点としての利点はもちろん、働く人々の生活の質を高める多くの要素があります。このビルは、企業が成長し続けるための理想的な環境を提供することでしょう。
六本木稲垣ビルのこだわり
自分で探すより問い合わせる方が早いことがあります
WEB非公開物件があるから
オーナー様のご希望により「WEBでは非公開」にしている物件があります。 それらはWEBでいくら検索しても見つかりません。 先ずは条件などお知らせ頂けましたら非公開物件含め ピッタリのオフィスをご提案させて頂きます。 無理なお勧めはしておりませんので、お気軽にお問い合わせください。
対面でのご相談も受け付けております
ご来店も歓迎です
オフィス移転は社内・社外ともに非公開に行われることが殆どです。そのためアットオフィスでは、基本的に訪問によるコンサルティングを行っておりますが、ご来店の相談も歓迎です。お一人おひとりに親身にご対応させて頂きたい為、要予約とさせて頂いております。ご来店の際は先ずは下記よりご予約下さい。
募集終了のテナント区画
| 階数 | 坪数 | 賃料 + 共益費 | 敷金/礼金敷金 礼金 | 検討 |
|---|---|---|---|---|
| B1階 | 36.5坪 (120.66m²) | 募集終了 | - | - |
| 1階 | 36.42坪 (120.39m²) | 募集終了 | - | - |
| 3階 | 36.69坪 (121.29m²) | 募集終了 | - | - |
| 4階 | 27.96坪 (92.42m²) | 募集終了 | - | - |
| 5階 | 19.8坪 (65.45m²) | 募集終了 | - | - |
| 5階 | 36.69坪 (121.29m²) | 募集終了 | - | - |
読込中...
赤坂/六本木/麻布エリアで六本木稲垣ビルに似た条件の物件
読込中...
| 取扱様態 | 仲介 |
|---|---|
| 取扱会社 | 株式会社 アットオフィス |