※このサイトに記載がある賃貸条件は、敷金・保証金などの預かり金を除き、別途消費税がかかります。
お電話でもお気軽にお問い合わせください
物件情報
設備詳細
| 空調 | - |
|---|---|
| トイレ | - |
| 床仕様 | - |
| エレベータ | 1 基 |
| 駐車場設備 | - |
| その他 | 機械警備 / 光ファイバー / 新耐震基準 |
アクセスマップ
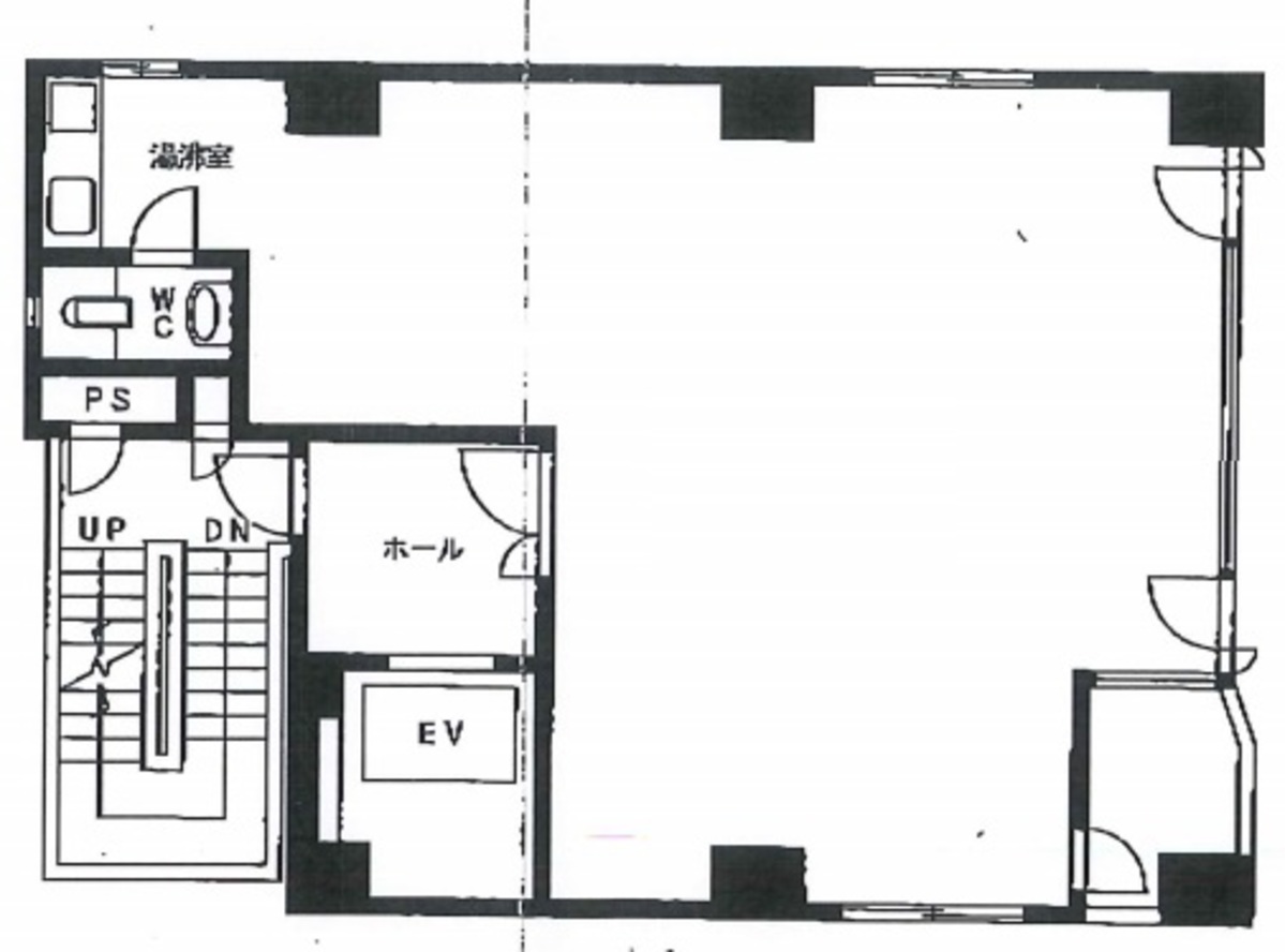
文化エステート浜町ビルは、東京の中心部、中央区日本橋浜町に位置する、ビジネスの場に最適な賃貸オフィスビルです。本ビルは1984年に竣工され、耐震性に優れた9階建ての構造を誇ります。1基のエレベーターが設置されており、ビル全体のアクセス性を確保しています。基準階は約20坪で、L字型の間取りが特徴であり、トイレと給湯スペースが室内に備えられています。これにより、利便性とプライバシーの両方が保たれます。また、床はタイルカーペット仕様となっており、オフィス空間の快適性と美観を向上させています。 立地としての魅力は、清洲橋通りに面し、浜町駅から徒歩3分という駅近の利便性にあります。水天宮前駅、人形町駅など3つ以上の駅が徒歩10分以内でアクセス可能であり、ビジネスシーンでの移動の利便性を高めます。また、周辺には飲食店が多数存在し、ビジネスランチやアフター5の利用にも困りません。 ビル内部の設備においては、個別空調システムを採用しており、テナントのニーズに応じた空調管理が可能です。セキュリティ面では機械警備が完備されており、安心してビジネスを行うことができます。さらに、光ファイバーの引き込みが済んでいるため、高速インターネット環境が保証されます。 外観はタイル張りで高級感があり、エントランスは清潔感があり歓迎感のある雰囲気を醸し出しています。周辺環境も並木が美しい清洲橋通り沿いにあり、オフィス街ながらも落ち着いた風情を楽しむことができます。 文化エステート浜町ビルは、立地、設備、セキュリティ、そして快適性と利便性を兼ね備えた賃貸オフィスビルです。ビジネスの拠点として、または新たな事業展開の場として、様々なニーズに応えることができることでしょう。中央区日本橋浜町での事業を考えている企業にとって、最適な選択肢の一つとなること間違いありません。
募集終了のテナント区画
| 階数 | 坪数 | 賃料 + 共益費 | 敷金/礼金敷金 礼金 | 検討 |
|---|---|---|---|---|
| 4階 | 20.11坪 (66.49m²) | 募集終了 | - | - |
| 5階 | 20.11坪 (66.49m²) | 募集終了 | - | - |
| 6階 | 20.11坪 (66.49m²) | 募集終了 | - | - |
| 8階 | 20.11坪 (66.49m²) | 募集終了 | - | - |
WEB非公開物件がございます
オーナー様ご希望によるWEB非公開の物件もございます。先ずは条件などお知らせ頂けましたら、非公開物件含めピッタリのオフィスをご提案させて頂きます。具体的な物件がお決まりでない場合でも問題ございません。無理なお勧めはしておりませんので、お気軽にお問い合わせください。
ご来店も歓迎です
オフィス移転は社内・社外ともに非公開に行われることが殆どです。そのためアットオフィスでは、基本的に訪問によるコンサルティングを行っておりますが、ご来店の相談も歓迎です。
※お一人おひとりに親身にご対応させて頂きたい為、要予約とさせて頂いております。ご来店の際は先ずは上記よりご予約下さい。
読込中...
近くのエリアで探してみる
人形町/馬喰町/浜町エリアで文化エステート浜町ビルに似た条件の物件
読込中...