※このサイトに記載がある賃貸条件は、敷金・保証金などの預かり金を除き、別途消費税がかかります。
物件情報
設備詳細
| 空調 | - |
|---|---|
| トイレ | 男女共用トイレ・室内 |
| 床仕様 | - |
| エレベータ | 2 基 |
| 駐車場設備 | - |
| その他 | 24時間利用可 / 光ファイバー / 東京賃料が坪11000円以下 |
日本橋中央ビル・メゾン日本橋の賃貸オフィス・事務所に関するお問い合わせ
日本橋中央ビル・メゾン日本橋について
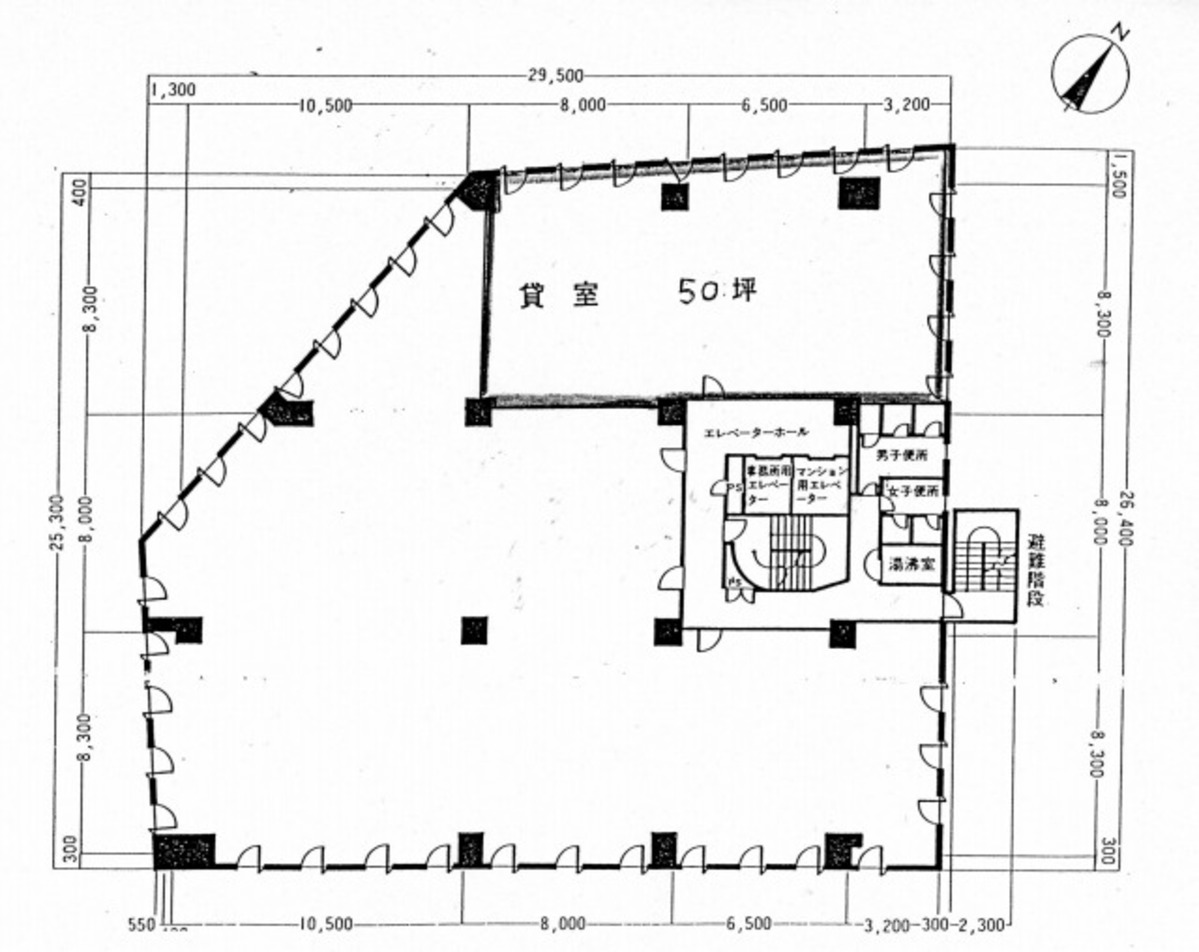
東京の中心、中央区日本橋浜町に位置する日本橋中央ビルは、ビジネスと生活の両方に最適な環境を提供しています。このビルは地上11階、地下1階建てで、外壁の茶色が特徴的な建物です。1階から5階までが貸事務所となっており、その上層階は「メゾン日本橋」という住居スペースになっているため、オフィスと居住の両方で利用されています。 基準階の貸室は100坪を超える広さで、ほとんどの階が複数のテナントによる分割区画で構成されています。これにより、大小さまざまなビジネスに対応する柔軟性を持っています。また、ビル内には2基のエレベーターが設置されており、快適な移動をサポートします。1階にはカフェも入っており、ビジネスの合間にリフレッシュする場所としても最適です。 セキュリティ面では、機械式警備を採用しており、テナント企業の安全をしっかりと守ります。また、ビル内には駐車場も完備されており、車でのアクセスにも便利です。 立地においても、このビルは非常に魅力的です。金座通りと浜町緑道が交差する久松警察署前交差点に面しており、久松警察署や日本橋消防署人形町出張所が近くにあるため、安全性が高いという利点があります。清洲橋通りに出ると、コンビニや銀行のATM、さらには歴史ある明治座など、日常生活に必要な施設が充実しています。 ランチスポットとしても周辺に多くの選択肢があり、歩いて3分の人形町駅周辺には多種多様な飲食店が揃っています。また、浜町駅をはじめとする複数の駅が徒歩10分圏内にあり、東京都内へのアクセスも非常に便利です。 このように、日本橋中央ビルは、その立地の良さ、充実した設備、そしてビジネスと居住の両方に対応した柔軟性を兼ね備え、ビジネスマンにとって理想的な環境を提供しています。働く人々のライフスタイルを豊かにするこのビルは、あらゆる企業にとって魅力的な選択肢となるでしょう。
日本橋中央ビル・メゾン日本橋のこだわり
自分で探すより問い合わせる方が早いことがあります
WEB非公開物件があるから
オーナー様のご希望により「WEBでは非公開」にしている物件があります。 それらはWEBでいくら検索しても見つかりません。 先ずは条件などお知らせ頂けましたら非公開物件含め ピッタリのオフィスをご提案させて頂きます。 無理なお勧めはしておりませんので、お気軽にお問い合わせください。
対面でのご相談も受け付けております
ご来店も歓迎です
オフィス移転は社内・社外ともに非公開に行われることが殆どです。そのためアットオフィスでは、基本的に訪問によるコンサルティングを行っておりますが、ご来店の相談も歓迎です。お一人おひとりに親身にご対応させて頂きたい為、要予約とさせて頂いております。ご来店の際は先ずは下記よりご予約下さい。
募集終了のテナント区画
| 階数 | 坪数 | 賃料 + 共益費 | 敷金/礼金敷金 礼金 | 検討 |
|---|---|---|---|---|
| 9階 | 12坪 (39.66m²) | 募集終了 | - | - |
読込中...
近くのエリアで探してみる
人形町/馬喰町/浜町エリアで日本橋中央ビル・メゾン日本橋に似た条件の物件
読込中...
| 取扱様態 | 仲介 |
|---|---|
| 取扱会社 | 株式会社 アットオフィス |