ラピロス六本木B1階の賃貸情報
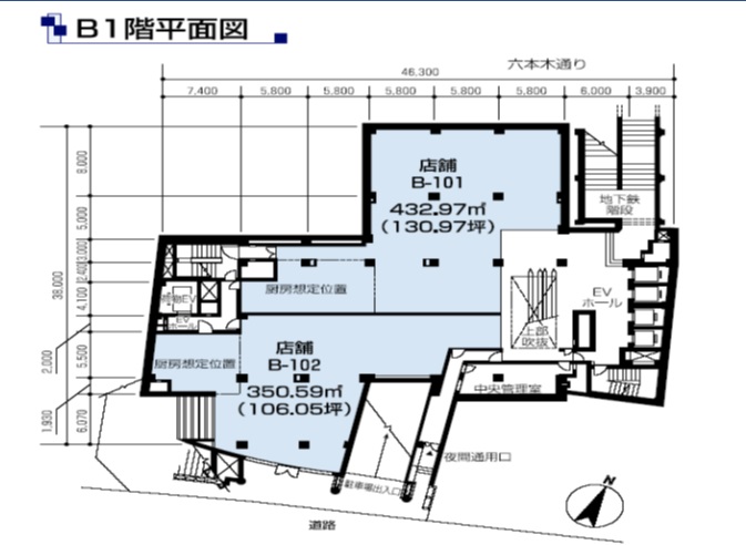
130.97 坪 (432.97m²)
※このサイトに記載がある賃貸条件は、敷金・保証金などの預かり金を除き、別途消費税がかかります。
ラピロス六本木の建物概要
設備詳細
| 空調 | - |
|---|---|
| トイレ | - |
| 床仕様 | - |
| エレベータ | 5 基 |
| 駐車場設備 | 機械式駐車場 |
| その他 | 機械警備 / 24時間利用可 / 光ファイバー / 新耐震基準 / 駅直結 / スケルトン / 店舗可(飲食可) |
ラピロス六本木B1階の賃貸オフィス・事務所に関するお問い合わせ
ラピロス六本木について
ラピロス六本木は、都心の賑わいを身近に感じることができる、港区六本木に位置する賃貸オフィスビルです。1997年に竣工したこのビルは、10階建てで、基準階約290坪の広さを誇ります。六本木駅から直結しているため、アクセスの良さは抜群です。ビル内にはエレベーターが5基設置されており、機械式駐車場も完備されていますので、来訪者の利便性を高めています。 このビルの特徴の一つは、その立地です。六本木通りと外苑東通りが交差する六本木交差点に近接しており、六本木ヒルズや六本木ミッドタウンといった商業施設が周囲に集まる賑やかなエリアにあります。このような立地は、ビジネスチャンスを広げる上で非常に魅力的です。また、地下1階から地上2階までは貸テナントが入り、日常的に利用できる喫茶店や書店、ファーストフード店などがあり、従業員の方々の生活利便性も高められています。 室内の設備についても注目に値します。各階には男女別トイレが設置され、空調は個別空調システムを採用しています。これにより、各テナントが快適な室温を自由に調節できます。また、床下にはOAフロアが整備されており、オフィスに必要な配線を効率的に行えるようになっています。これらの設備は、ビジネスをスムーズに運営する上で非常に重要です。 ビルの8階には、250人収容可能な多目的ホールがあります。このホールは、講演会やセミナーなど、さまざまなイベントの開催に利用できます。六本木駅直結という利便性の高い立地は、集客力を高める上で大きな利点となります。 周辺施設としては、飲食店が豊富にあり、ランチやアフター5の利用に便利です。また、コンビニやドラッグストア、銀行なども徒歩圏内に存在し、日常生活に必要なサービスがすぐに手に入ります。 ラピロス六本木は、アクセスの良さ、充実した設傉、そして賑やかな周辺環境を兼ね備えた賃貸オフィスビルです。ビジネスの拠点として、または新たな事業展開の場として、多くの可能性を秘めています。
自分で探すより問い合わせる方が早いことがあります
WEB非公開物件があるから
オーナー様のご希望により「WEBでは非公開」にしている物件があります。 それらはWEBでいくら検索しても見つかりません。 先ずは条件などお知らせ頂けましたら非公開物件含め ピッタリのオフィスをご提案させて頂きます。 無理なお勧めはしておりませんので、お気軽にお問い合わせください。
対面でのご相談も受け付けております
ご来店も歓迎です
オフィス移転は社内・社外ともに非公開に行われることが殆どです。そのためアットオフィスでは、基本的に訪問によるコンサルティングを行っておりますが、ご来店の相談も歓迎です。お一人おひとりに親身にご対応させて頂きたい為、要予約とさせて頂いております。ご来店の際は先ずは下記よりご予約下さい。
赤坂/六本木/麻布エリアでラピロス六本木に似た条件の物件
読込中...
ラピロス六本木と同じ最寄駅の物件
読込中...
| 取扱様態 | 仲介 |
|---|---|
| 取扱会社 | 株式会社 アットオフィス |