TK猿楽町ビルの賃料条件
| 階数 | 坪数 | 賃料 + 共益費 | 敷金/礼金敷金 礼金 | 検討 |
|---|---|---|---|---|
| 1階 | 42.83坪 (141.61m²) | 985,090円 (坪:23,000 円) | 12ヶ月 1ヶ月12ヶ月/1ヶ月 | |
| 3階 | 64.07坪 (211.8m²) | 1,153,260円 (坪:18,000 円) | 12ヶ月 無12ヶ月/無 |
※このサイトに記載がある賃貸条件は、敷金・保証金などの預かり金を除き、別途消費税がかかります。
物件情報
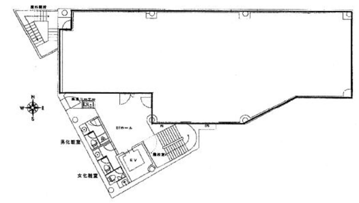
設備詳細
| 空調 | 個別空調 |
|---|---|
| トイレ | 男女別トイレ室内 / 男女別トイレ室外 |
| 床仕様 | OA対応床(フリーアクセス) |
| エレベータ | 1 基 |
| 駐車場設備 | - |
| その他 | 機械警備 / 光ファイバー / 新耐震基準 / クリニック / 店舗可(飲食可) / スケルトン / 1階の物件 |
TK猿楽町ビルの賃貸オフィス・事務所に関するお問い合わせ
TK猿楽町ビルについて
【TK猿楽町ビル:ビジネスの中心地で理想的なオフィス空間を提供】 千代田区猿楽町2丁目に位置するTK猿楽町ビルは、1989年に竣工された高品質な貸事務所ビルです。このビルは、東京都心のビジネスエリア内にありながら、利便性と快適性を兼ね備えた理想的なオフィス環境を提供しています。 【立地の魅力】 このビルは、水道橋駅から徒歩5分、神保町駅から徒歩7分というアクセスの良さがあります。この立地は、ビジネスの中心地であることに加え、飲食店、カフェ、コンビニなどの生活必需施設が充実しているため、働く人々にとって非常に便利な環境です。また、周辺は比較的静かなエリアでありながら、都心へのアクセスの良さも魅力の一つです。 【ビルの特徴】 TK猿楽町ビルは、基準階面積262.137坪の大型ビルであり、高い利便性を持ちます。タイル張りで特徴的な外観を持つこのビルは、内部も使い勝手の良い形状に設計されており、ビジネスの効率化に貢献します。また、専用部、トイレ、エレベーターホールはリニューアルされており、清潔感あふれる美しい空間で快適なオフィスライフが送れます。エレベーターは1機設置されており、スムーズな移動をサポートします。 【ビジネスにおける利点】 千代田区という東京のビジネスの中心地に位置することで、企業はさまざまなビジネスチャンスに恵まれます。また、利便性の高い立地は従業員の通勤のしやすさに直結し、採用時の魅力ともなり得ます。さらに、TK猿楽町ビルの快適なオフィス環境は、従業員のモチベーション向上にも繋がり、企業の成長を支える重要な要素です。 【エリアの相場観】 千代田区は東京都内でも特にオフィス需要が高いエリアの一つであり、相場は安定して高水準を保っています。しかし、TK猿楽町ビルは、その立地と設備、利便性を考慮すると、非常にコストパフォーマンスの高い選択肢と言えます。特にSOHOや中小企業にとって、このビルは事業の拠点として最適な環境を提供してくれるでしょう。 TK猿楽町ビルは、立地、設備、環境のすべてにおいてビジネスニーズを満たす理想的なオフィススペースです。東京の中心で、ビジネスの成功を加速させたい企業にとって、類まれなる機会を提供します。
TK猿楽町ビルのこだわり
自分で探すより問い合わせる方が早いことがあります
WEB非公開物件があるから
オーナー様のご希望により「WEBでは非公開」にしている物件があります。 それらはWEBでいくら検索しても見つかりません。 先ずは条件などお知らせ頂けましたら非公開物件含め ピッタリのオフィスをご提案させて頂きます。 無理なお勧めはしておりませんので、お気軽にお問い合わせください。
対面でのご相談も受け付けております
ご来店も歓迎です
オフィス移転は社内・社外ともに非公開に行われることが殆どです。そのためアットオフィスでは、基本的に訪問によるコンサルティングを行っておりますが、ご来店の相談も歓迎です。お一人おひとりに親身にご対応させて頂きたい為、要予約とさせて頂いております。ご来店の際は先ずは下記よりご予約下さい。
募集終了のテナント区画
| 階数 | 坪数 | 賃料 + 共益費 | 敷金/礼金敷金 礼金 | 検討 |
|---|---|---|---|---|
| 2階 | 65.3坪 (215.9m²) | 募集終了 | - | - |
| 2階 | 57.85坪 (191.23m²) | 募集終了 | - | - |
| 3階 | 57.85坪 (191.25m²) | 募集終了 | - | - |
| 4階 | 65.3坪 (215.9m²) | 募集終了 | - | - |
| 5階 | 68.7坪 (227.11m²) | 募集終了 | - | - |
| 5階 | 57.85坪 (191.25m²) | 募集終了 | - | - |
| 6階 | 68.7坪 (227.11m²) | 募集終了 | - | - |
| 6階 | 57.85坪 (191.24m²) | 募集終了 | - | - |
読込中...
近くのエリアで探してみる
飯田橋/神保町/水道橋エリアでTK猿楽町ビルに似た条件の物件
読込中...
| 取扱様態 | 仲介 |
|---|---|
| 取扱会社 | 株式会社 アットオフィス |