※このサイトに記載がある賃貸条件は、敷金・保証金などの預かり金を除き、別途消費税がかかります。
物件情報
設備詳細
| 空調 | 個別空調 |
|---|---|
| トイレ | 男女別トイレ室外 |
| 床仕様 | OA対応床(フリーアクセス) |
| エレベータ | 2 基 |
| 駐車場設備 | 空有 / 機械式駐車場 |
| その他 | 機械警備 / 24時間利用可 / 大型ビル / 光ファイバー / 新耐震基準 |
Y’s Bldgの賃貸オフィス・事務所に関するお問い合わせ
Y’s Bldgについて
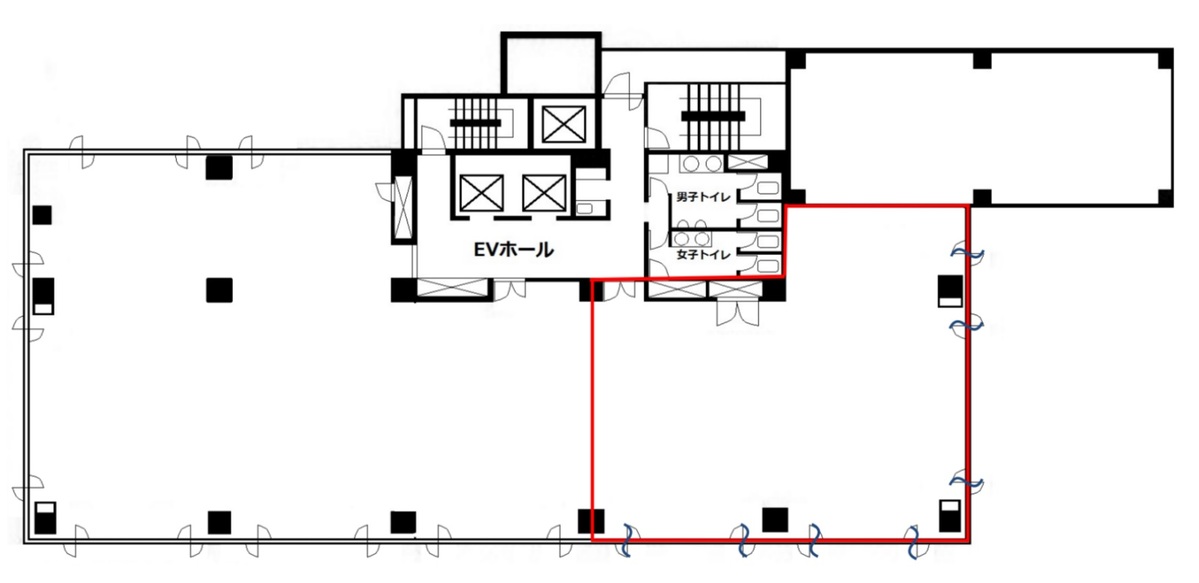
ワイズビルディングは、中央区月島1丁目に位置する1992年竣工のオフィス賃貸ビルであり、新耐震基準に適合した安全性を備えた8階建ての建物です。このビルは、東京メトロ有楽町線および都営大江戸線の月島駅からわずか徒歩1分の非常に利便性の高い立地にあります。ビルの外観は、グレーのタイル張りで、広い窓面が特徴的であり、モダンで落ち着いた印象を与えます。 ビル内のセキュリティは機械警備を採用しており、入居者の安全をしっかりと守っています。また、ビル内には59台収容可能な機械式駐車場があり、来訪者や従業員にとって非常に便利です。エレベーターは2基設置されており、スムーズなビル内の移動が可能です。 ワイズビルディングの基準階は約141坪で、個別空調およびOAフロアが完備されており、オフィス空間の快適性を追求しています。トイレは男女別で、洗面台が複数あるなど、利便性を考慮した設計になっています。また、2015年のリニューアルにより、エントランスや共用部がモノクロ調で一新され、洗練された印象を与えます。 周辺環境としては、月島エリアはオフィスビルや住宅、飲食店が混在し、活気ある雰囲気です。特に、月島もんじゃストリートが近くにあるため、ランチやアフター5の食事に困ることはありません。また、各種銀行のATMや郵便局も徒歩圏内にあるため、日常の業務に必要なサービスへのアクセスも良好です。 このビルは、優れた立地、充実した設備、そして安全性を兼ね備えており、様々なビジネスのニーズに応えることができるオフィススペースです。ワイズビルディングは、これからも多くの企業にとって、成長と成功を支える拠点となることでしょう。
自分で探すより問い合わせる方が早いことがあります
WEB非公開物件があるから
オーナー様のご希望により「WEBでは非公開」にしている物件があります。 それらはWEBでいくら検索しても見つかりません。 先ずは条件などお知らせ頂けましたら非公開物件含め ピッタリのオフィスをご提案させて頂きます。 無理なお勧めはしておりませんので、お気軽にお問い合わせください。
対面でのご相談も受け付けております
ご来店も歓迎です
オフィス移転は社内・社外ともに非公開に行われることが殆どです。そのためアットオフィスでは、基本的に訪問によるコンサルティングを行っておりますが、ご来店の相談も歓迎です。お一人おひとりに親身にご対応させて頂きたい為、要予約とさせて頂いております。ご来店の際は先ずは下記よりご予約下さい。
募集終了のテナント区画
| 階数 | 坪数 | 賃料 + 共益費 | 敷金/礼金敷金 礼金 | 検討 |
|---|---|---|---|---|
| 1階 | 80.4坪 (265.78m²) | 募集終了 | - | - |
| 1階 | 55.91坪 (184.82m²) | 募集終了 | - | - |
| 2階 | 177.56坪 (586.97m²) | 募集終了 | - | - |
| 2階 | 177.56坪 (586.97m²) | 募集終了 | - | - |
| 2階 | 162.95坪 (538.68m²) | 募集終了 | - | - |
| 2階 | 60.76坪 (200.86m²) | 募集終了 | - | - |
| 3階 | 90.15坪 (298.01m²) | 募集終了 | - | - |
| 3階 | 87.41坪 (288.95m²) | 募集終了 | - | - |
| 3階 | 177.56坪 (586.97m²) | 募集終了 | - | - |
| 3階 | 70.6坪 (233.39m²) | 募集終了 | - | - |
| 4階 | 87.41坪 (288.95m²) | 募集終了 | - | - |
| 4階 | 70.6坪 (233.39m²) | 募集終了 | - | - |
| 5階 | 177.56坪 (586.97m²) | 募集終了 | - | - |
| 6階 | 28.66坪 (94.74m²) | 募集終了 | - | - |
| 6階 | 148.9坪 (492.23m²) | 募集終了 | - | - |
| 6階 | 90.15坪 (298.03m²) | 募集終了 | - | - |
| 7階 | 15.67坪 (51.81m²) | 募集終了 | - | - |
読込中...
勝どき/晴海エリアでY’s Bldgに似た条件の物件
読込中...
| 取扱様態 | 仲介 |
|---|---|
| 取扱会社 | 株式会社 アットオフィス |