※このサイトに記載がある賃貸条件は、敷金・保証金などの預かり金を除き、別途消費税がかかります。
物件情報
設備詳細
| 空調 | 個別空調 |
|---|---|
| トイレ | 男女別トイレ室外 |
| 床仕様 | - |
| エレベータ | 2 基 |
| 駐車場設備 | 空有 |
| その他 | 大型ビル / 光ファイバー / 24時間利用可 / 新耐震基準 / 1階の物件 |
ゴトウビルディング1stの賃貸オフィス・事務所に関するお問い合わせ
ゴトウビルディング1stについて
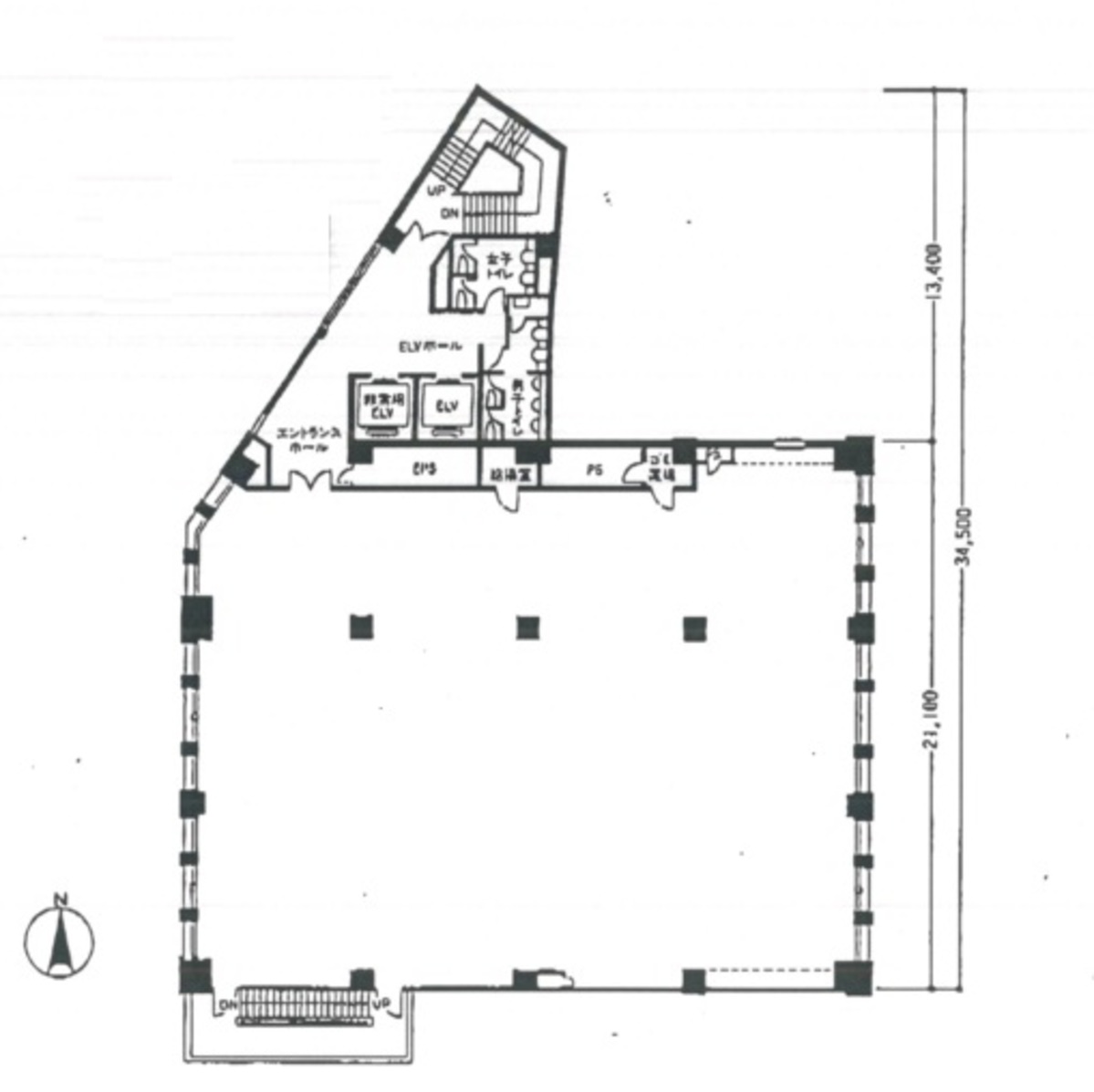
ゴトウビルディング1stは、東京都港区六本木に位置する賃貸オフィスビルです。1995年に竣工したこの9階建てのビルは、基準階約155坪の広さを誇り、ビジネスの拠点としての利便性と快適性を兼ね備えています。その重厚感のある外観と白を基調とした開放感のあるエントランスは、訪れる人々に好印象を与えるでしょう。 立地においては、ゴトウビルディング1stは交通量の多い外苑東通り沿いに位置しており、最寄り駅である六本木駅からは徒歩3分というアクセスの良さを持っています。このエリアは人通りが多く、ビジネスだけでなく様々な文化が交差する地域です。周辺にはコンビニや飲食店が豊富にあり、ビジネスパーソンにとってのランチ環境も抜群です。 ビル内の設備について、各オフィス区画には個別空調、個室トイレ、バスルームが備えられており、快適なオフィス環境が提供されています。また、セキュリティ面でも機械警備により、安心して業務に専念できる環境が整えられています。 ゴトウビルディング1stは、その立地の利便性、充実した設備、そして快適なオフィス環境を求める企業にとって魅力的な選択肢となるでしょう。ビジネスの成長をサポートする上で、このビルが提供する環境は、多くの企業にとって大きな価値をもたらすはずです。ビルの外観から内装に至るまで、洗練されたデザインが印象的であり、企業イメージの向上にも寄与します。これらの特徴から、ゴトウビルディング1stは、六本木エリアでビジネスを行う上で最適なオフィススペースといえるでしょう。
自分で探すより問い合わせる方が早いことがあります
WEB非公開物件があるから
オーナー様のご希望により「WEBでは非公開」にしている物件があります。 それらはWEBでいくら検索しても見つかりません。 先ずは条件などお知らせ頂けましたら非公開物件含め ピッタリのオフィスをご提案させて頂きます。 無理なお勧めはしておりませんので、お気軽にお問い合わせください。
対面でのご相談も受け付けております
ご来店も歓迎です
オフィス移転は社内・社外ともに非公開に行われることが殆どです。そのためアットオフィスでは、基本的に訪問によるコンサルティングを行っておりますが、ご来店の相談も歓迎です。お一人おひとりに親身にご対応させて頂きたい為、要予約とさせて頂いております。ご来店の際は先ずは下記よりご予約下さい。
募集終了のテナント区画
| 階数 | 坪数 | 賃料 + 共益費 | 敷金/礼金敷金 礼金 | 検討 |
|---|---|---|---|---|
| B1階 | 74.58坪 (246.55m²) | 募集終了 | - | - |
| 2階 | 94.06坪 (310.94m²) | 募集終了 | - | - |
| 3階 | 80坪 (264.46m²) | 募集終了 | - | - |
| 5階 | 153.38坪 (510.35m²) | 募集終了 | - | - |
| 6階 | 154.99坪 (512.38m²) | 募集終了 | - | - |
| 7階 | 154.38坪 (510.35m²) | 募集終了 | - | - |
| 7階 | 79.47坪 (262.71m²) | 募集終了 | - | - |
| 7階 | 155.26坪 (513.26m²) | 募集終了 | - | - |
| 8階 | 155.26坪 (513.26m²) | 募集終了 | - | - |
| 8階 | 66.95坪 (221.42m²) | 募集終了 | - | - |
| 8階 | 79.47坪 (262.66m²) | 募集終了 | - | - |
| 9階 | 84.7坪 (280m²) | 募集終了 | - | - |
読込中...
赤坂/六本木/麻布エリアでゴトウビルディング1stに似た条件の物件
読込中...
| 取扱様態 | 仲介 |
|---|---|
| 取扱会社 | 株式会社 アットオフィス |