JP-BASE京橋4階の賃貸情報
30.07 坪 (99.42m²)
※このサイトに記載がある賃貸条件は、敷金・保証金などの預かり金を除き、別途消費税がかかります。
JP-BASE京橋の建物概要
設備詳細
| 空調 | 個別空調 |
|---|---|
| トイレ | - |
| 床仕様 | OA対応床(フリーアクセス) |
| エレベータ | 1 基 |
| 駐車場設備 | - |
| その他 | 機械警備 / 24時間利用可 / 新耐震基準 / 居抜き |
JP-BASE京橋4階の賃貸オフィス・事務所に関するお問い合わせ
JP-BASE京橋について
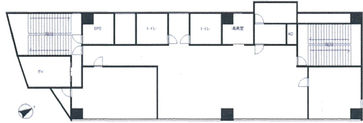
中央区八丁堀に位置するJP-BASE京橋(旧:正和ビル、楠見ビル)は、都心のビジネスエリアにおける理想的なオフィススペースを提供します。このビルは1986年に竣工し、2022年5月に大規模リノベーションが施されたことで、現代のオフィスニーズに応える設備と快適な環境を兼ね備えています。ここでは、このビルの特徴、立地、設備を論理的かつ情熱的に紹介し、その独自の魅力やビジネスにおける利点を強調します。 まず、JP-BASE京橋の最大の特徴は、その立地の利便性です。ビルは、宝町駅と八丁堀駅から徒歩圏内に位置し、京橋駅へのアクセスも容易です。この立地は、ビジネスの中心地である東京都心へのアクセス性を高め、クライアントや従業員にとって非常に魅力的なポイントとなります。また、周辺にはコンビニや飲食店が豊富にあり、ビジネスライフをサポートする充実した環境が整っています。 次に、設備面では、JP-BASE京橋は個別空調完備で、オフィス内の環境を快適に保つことができます。また、基準階約30坪の賃貸オフィススペースは、L字型に近い形状で柱がなく、レイアウトの自由度が高い点も大きな魅力です。OAフロアも完備されており、現代のオフィスワークに必要な設備が整っています。加えて、男女別トイレ、給湯スペース、個室トイレ、洗面台など、利便性と快適性を追求した設計がなされています。 レンガ調で造られた茶色の外観は、街中でも一際目を引く存在感を放ち、ビルが持つブランドイメージを高めています。このようなデザインは、ビルを訪れるクライアントに良い印象を与えること間違いなしです。 リノベーションにより、現代的なニーズに合わせた最新の設備と快適なオフィス環境が確保されたJP-BASE京橋は、ビジネス成長を支える理想的な舞台です。立地の利便性、柔軟なレイアウト、充実した設備、そして魅力的なデザインが組み合わさり、企業にとって最適なオフィス環境を提供します。ビジネスの成功と発展を目指す企業にとって、JP-BASE京橋はまさに理想的な選択肢と言えるでしょう。
JP-BASE京橋のこだわり
自分で探すより問い合わせる方が早いことがあります
WEB非公開物件があるから
オーナー様のご希望により「WEBでは非公開」にしている物件があります。 それらはWEBでいくら検索しても見つかりません。 先ずは条件などお知らせ頂けましたら非公開物件含め ピッタリのオフィスをご提案させて頂きます。 無理なお勧めはしておりませんので、お気軽にお問い合わせください。
対面でのご相談も受け付けております
ご来店も歓迎です
オフィス移転は社内・社外ともに非公開に行われることが殆どです。そのためアットオフィスでは、基本的に訪問によるコンサルティングを行っておりますが、ご来店の相談も歓迎です。お一人おひとりに親身にご対応させて頂きたい為、要予約とさせて頂いております。ご来店の際は先ずは下記よりご予約下さい。
近くのエリアで探してみる
茅場町/新川/八丁堀エリアでJP-BASE京橋に似た条件の物件
読込中...
JP-BASE京橋と同じ最寄駅の物件
読込中...
| 取扱様態 | 仲介 |
|---|---|
| 取扱会社 | 株式会社 アットオフィス |