※このサイトに記載がある賃貸条件は、敷金・保証金などの預かり金を除き、別途消費税がかかります。
物件情報
設備詳細
| 空調 | 個別空調 |
|---|---|
| トイレ | - |
| 床仕様 | - |
| エレベータ | 1 基 |
| 駐車場設備 | - |
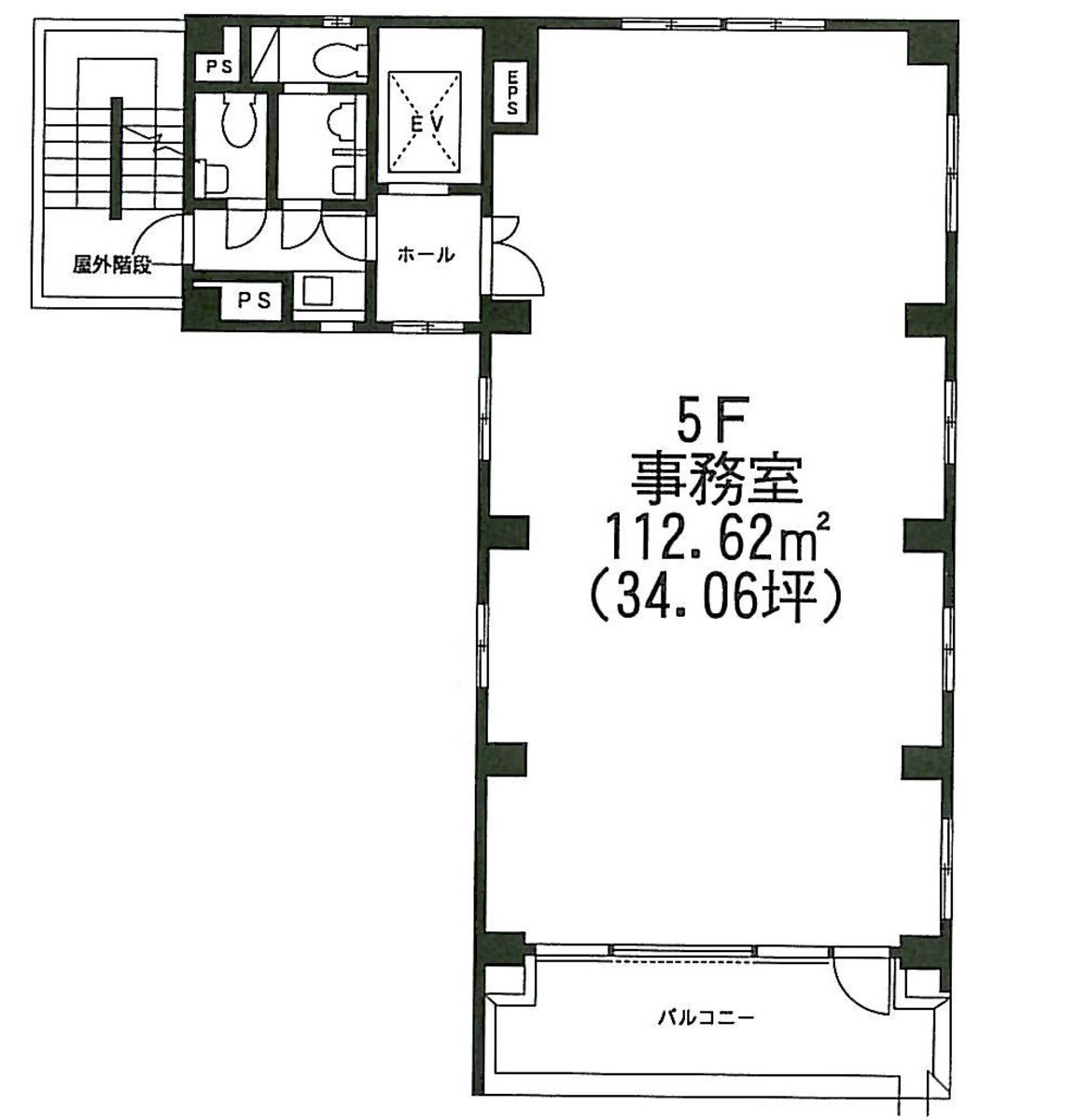
| その他 | 新耐震基準 / 1階の物件 / 店舗可(飲食不可) / クリニック |
内外ビルの賃貸オフィス・事務所に関するお問い合わせ
内外ビルについて
内外ビル – 中央区八丁堀2丁目のオフィス賃貸の新星 内外ビルは、中央区八丁堀2丁目に位置する優れたオフィス賃貸ビルです。この地は、ビジネスの中心地として知られ、様々な業界から注目を集めています。内外ビルはその中心に位置し、企業にとって理想的な立地条件を提供します。ここでは、立地、設備、そしてビルが提供する独自の魅力についてご紹介していきます。 【立地の利点】 内外ビルの立地は、ビジネスの展開において重要な要素です。八丁堀は、交通の便が良く、都心へのアクセスが容易です。また、飲食店、銀行、郵便局といった生活に必要な施設が周辺に充実しており、日々の業務に必要なサポートが手軽に得られます。このように、内外ビルはビジネスに必要なあらゆる要素が集結した場所に位置しており、企業活動をスムーズに行うための最適な環境を提供します。 【設備の充実】 内外ビルは、現代のオフィスに求められる設備を完備しています。特に注目すべきは、ビル内に設置されている1機のエレベーターです。これは、ビルを利用するすべての人々の移動をスムーズにし、日々の業務効率を高めるために重要な役割を果たします。また、安全性とセキュリティにも配慮されており、入居企業とその従業員が安心して業務に専念できる環境が整っています。 【独自の魅力とビジネス利点】 内外ビルの独自の魅力は、そのモダンなデザインと機能性にあります。ビジネスの世界では、会社のイメージが重要な要素の一つです。内外ビルは、その洗練された外観と最先端の設備が、企業イメージの向上に貢献します。さらに、ビルの設計は、作業スペースの最適化を考慮しており、効率的なオフィス運営を支援します。これらの特徴は、内外ビルが入居企業にとって単なるオフィススペース以上の価値を提供することを意味します。 結論として、内外ビルは、その優れた立地、充実した設備、そして独自の魅力によって、中央区八丁堀におけるビジネスの進展に最適な場所を提供します。企業が成長し、繁栄するための環境を求めるならば、内外ビルはその要求を満たすことでしょう。ビジネスの未来を見据え、理想的なオフィススペースをお探しの皆様に、内外ビルを自信を持ってお勧めします。
内外ビルのこだわり
自分で探すより問い合わせる方が早いことがあります
WEB非公開物件があるから
オーナー様のご希望により「WEBでは非公開」にしている物件があります。 それらはWEBでいくら検索しても見つかりません。 先ずは条件などお知らせ頂けましたら非公開物件含め ピッタリのオフィスをご提案させて頂きます。 無理なお勧めはしておりませんので、お気軽にお問い合わせください。
対面でのご相談も受け付けております
ご来店も歓迎です
オフィス移転は社内・社外ともに非公開に行われることが殆どです。そのためアットオフィスでは、基本的に訪問によるコンサルティングを行っておりますが、ご来店の相談も歓迎です。お一人おひとりに親身にご対応させて頂きたい為、要予約とさせて頂いております。ご来店の際は先ずは下記よりご予約下さい。
読込中...
近くのエリアで探してみる
茅場町/新川/八丁堀エリアで内外ビルに似た条件の物件
読込中...
| 取扱様態 | 仲介 |
|---|---|
| 取扱会社 | 株式会社 アットオフィス |