藤和八丁堀ビルの賃料条件
| 階数 | 坪数 | 賃料 + 共益費 | 敷金/礼金敷金 礼金 | 検討 |
|---|---|---|---|---|
| 2階 | 71.35坪 (235.87m²) | お問合せ下さい (坪:-) | 12ヶ月 無12ヶ月/無 | |
| 3階 | 71.35坪 (235.86m²) | お問合せ下さい (坪:-) | 12ヶ月 無12ヶ月/無 |
※このサイトに記載がある賃貸条件は、敷金・保証金などの預かり金を除き、別途消費税がかかります。
物件情報
設備詳細
| 空調 | 個別空調 |
|---|---|
| トイレ | - |
| 床仕様 | - |
| エレベータ | 2 基 |
| 駐車場設備 | - |
| その他 | 機械警備 / 光ファイバー / 新耐震基準 / 居抜き |
藤和八丁堀ビルの賃貸オフィス・事務所に関するお問い合わせ
藤和八丁堀ビルについて
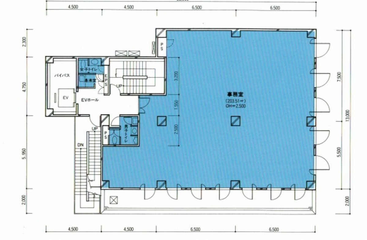
中央区八丁堀に位置する藤和八丁堀ビルは、1988年に竣工された、地上8階建ての現代的なオフィスビルです。耐震性に優れており、安心してご利用いただける機構を備えています。このビルの最大の特徴は、その立地の良さにあります。八丁堀駅からわずか徒歩2分の距離にあり、茅場町や宝町駅からもアクセス可能で、都心への移動が非常に便利です。新大橋通りから一本入った場所に位置し、オフィスビルが立ち並ぶ活気あるエリアにありながら、落ち着いた環境を提供しています。 ビルのエントランスは、白を基調とした石造りで、清潔感と高級感を演出しています。エレベーターは2基設置されており、スムーズな移動が可能です。また、各階には男女別トイレと給湯室が完備されており、オフィス環境を快適に保つための配慮が随所に見られます。貸室内には、一部柱があるものの、入り口が複数あるため、レイアウトの自由度が高く、効率的なオフィス空間の設計が可能です。 周辺環境も魅力的で、ビルのすぐそばには飲食店が充実しており、ランチやビジネスミーティングの際にも便利です。さらに、八丁堀駅前にはさまざまな商業施設があり、仕事後のショッピングや食事にも困りません。 藤和八丁堀ビルは、その立地、設備、周辺環境の全てにおいて、ビジネスの成功を支える理想的なオフィススペースを提供します。優れたアクセス性と快適なオフィス環境を求める企業にとって、このビルは最適な選択肢となるでしょう。ビジネスの拠点として、または新たな事業展開の場として、藤和八丁堀ビルで新しい一歩を踏み出しませんか?私たちは、ビルの魅力を最大限に活かし、皆様のビジネス成功を全力でサポートいたします。
藤和八丁堀ビルのこだわり
自分で探すより問い合わせる方が早いことがあります
WEB非公開物件があるから
オーナー様のご希望により「WEBでは非公開」にしている物件があります。 それらはWEBでいくら検索しても見つかりません。 先ずは条件などお知らせ頂けましたら非公開物件含め ピッタリのオフィスをご提案させて頂きます。 無理なお勧めはしておりませんので、お気軽にお問い合わせください。
対面でのご相談も受け付けております
ご来店も歓迎です
オフィス移転は社内・社外ともに非公開に行われることが殆どです。そのためアットオフィスでは、基本的に訪問によるコンサルティングを行っておりますが、ご来店の相談も歓迎です。お一人おひとりに親身にご対応させて頂きたい為、要予約とさせて頂いております。ご来店の際は先ずは下記よりご予約下さい。
募集終了のテナント区画
| 階数 | 坪数 | 賃料 + 共益費 | 敷金/礼金敷金 礼金 | 検討 |
|---|---|---|---|---|
| B1階 | 63.36坪 (209.45m²) | 募集終了 | - | - |
| B1階 | 65.34坪 (216.02m²) | 募集終了 | - | - |
| 1階 | 42.31坪 (139.86m²) | 募集終了 | - | - |
| 4階 | 69.33坪 (229.19m²) | 募集終了 | - | - |
| 5階 | 69.33坪 (229.19m²) | 募集終了 | - | - |
| 6階 | 61.56坪 (203.51m²) | 募集終了 | - | - |
| 7階 | 44.8坪 (148.1m²) | 募集終了 | - | - |
| 8階 | 29.56坪 (97.72m²) | 募集終了 | - | - |
読込中...
近くのエリアで探してみる
茅場町/新川/八丁堀エリアで藤和八丁堀ビルに似た条件の物件
読込中...
| 取扱様態 | 仲介 |
|---|---|
| 取扱会社 | 株式会社 アットオフィス |