六本木福吉町ビルの賃料条件
| 階数 | 坪数 | 賃料 + 共益費 | 敷金/礼金敷金 礼金 | 検討 |
|---|---|---|---|---|
| 1階 | 39.31坪 (129.95m²) | 1,159,646円 (坪:29,500 円) | 6ヶ月 1ヶ月6ヶ月/1ヶ月 | |
| 2階 | 38.49坪 (127.27m²) | 495,119円 (坪:12,863 円) | 6ヶ月 1ヶ月6ヶ月/1ヶ月 | |
| 2階 | 38.5坪 (127.27m²) | 558,250円 (坪:14,500 円) | 4ヶ月 無4ヶ月/無 |
※このサイトに記載がある賃貸条件は、敷金・保証金などの預かり金を除き、別途消費税がかかります。
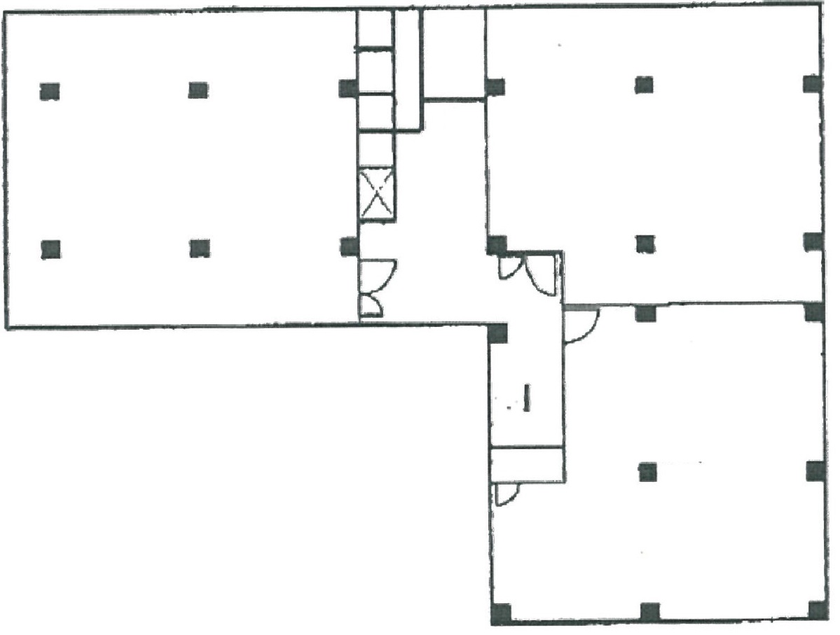
物件情報
設備詳細
| 空調 | 個別空調 |
|---|---|
| トイレ | 男女別トイレ室外 |
| 床仕様 | OA対応床(フリーアクセス) |
| エレベータ | 1 基 |
| 駐車場設備 | - |
| その他 | 機械警備 / 24時間利用可 / 管理人常駐 / 光ファイバー / オートロック / 塾・スクール / クリニック / 1階の物件 |
六本木福吉町ビルの賃貸オフィス・事務所に関するお問い合わせ
六本木福吉町ビルについて
六本木福吉町ビルは、東京都港区六本木2丁目に位置する賃貸オフィスビルで、1967年に竣工し、2012年にリニューアルが行われました。このビルは地上7階、地下1階建てで、オフィススペースは30~40坪台の区画が主で、各フロアに男女別トイレが設置されているなど、機能的にも配慮されています。特に注目すべきは、六本木通りに面しておりながら、通り側の窓が2重サッシで騒音対策が施されている点です。ビルの立地は、複数の駅が徒歩圏内にあり、特に「六本木一丁目」駅からは徒歩3分と、アクセスの良さがビジネスの利便性を高めます。 このビルの周辺は、コンビニエンスストアや飲食店、大型オフィスビル内の店舗などが充実しており、日常の買い物やビジネスランチにも困りません。また、首都高速都心環状線のすぐ前という立地は、視認性が高く、顧客の来訪時にも説明しやすい点が魅力です。 オフィスの内装はリニューアルされており、天井高2.6メートル以上の開放的な空間が提供されています。ビル内には有料の会議室や喫煙所が設けられており、テナントのニーズに応える設備が整っています。ビルの1階には管理人が常駐し、機械警備も導入されているため、セキュリティ面も安心です。 交通アクセスの良さ、充実した周辺環境、機能的なオフィス空間、そして安心のセキュリティ体制。これらの特徴が融合した六本木福吉町ビルは、ビジネスの拠点として最適な環境を提供します。立地の良さはビジネスの機会を広げ、リニューアルされたオフィス空間は快適なワークライフをサポートし、安全面の配慮は従業員や顧客を守ります。これらの要素が六本木福吉町ビルの独自の魅力となり、ビジネスにおける利点を強調しています。
六本木福吉町ビルのこだわり
自分で探すより問い合わせる方が早いことがあります
WEB非公開物件があるから
オーナー様のご希望により「WEBでは非公開」にしている物件があります。 それらはWEBでいくら検索しても見つかりません。 先ずは条件などお知らせ頂けましたら非公開物件含め ピッタリのオフィスをご提案させて頂きます。 無理なお勧めはしておりませんので、お気軽にお問い合わせください。
対面でのご相談も受け付けております
ご来店も歓迎です
オフィス移転は社内・社外ともに非公開に行われることが殆どです。そのためアットオフィスでは、基本的に訪問によるコンサルティングを行っておりますが、ご来店の相談も歓迎です。お一人おひとりに親身にご対応させて頂きたい為、要予約とさせて頂いております。ご来店の際は先ずは下記よりご予約下さい。
募集終了のテナント区画
| 階数 | 坪数 | 賃料 + 共益費 | 敷金/礼金敷金 礼金 | 検討 |
|---|---|---|---|---|
| 1階 | 37.99坪 (125.59m²) | 募集終了 | - | - |
| 2階 | 31.91坪 (105.48m²) | 募集終了 | - | - |
| 2階 | 8.2坪 (27.1m²) | 募集終了 | - | - |
| 2階 | 19.3坪 (63.7m²) | 募集終了 | - | - |
| 3階 | 31.91坪 (105.49m²) | 募集終了 | - | - |
| 4階 | 38.5坪 (127.27m²) | 募集終了 | - | - |
| 5階 | 38.5坪 (127.27m²) | 募集終了 | - | - |
読込中...
赤坂/六本木/麻布エリアで六本木福吉町ビルに似た条件の物件
読込中...
| 取扱様態 | 仲介 |
|---|---|
| 取扱会社 | 株式会社 アットオフィス |