西麻布尾花ビルの賃料条件
| 階数 | 坪数 | 賃料 + 共益費 | 敷金/礼金敷金 礼金 | 検討 |
|---|---|---|---|---|
| 1階 | 21.43坪 (70.85m²) | 857,200円 (坪:40,000 円) | 6ヶ月 1ヶ月6ヶ月/1ヶ月 | |
| 3階 | 30.9坪 (102.14m²) | 805,000円 (坪:26,050 円) | 4ヶ月 1ヶ月4ヶ月/1ヶ月 |
※このサイトに記載がある賃貸条件は、敷金・保証金などの預かり金を除き、別途消費税がかかります。
物件情報
設備詳細
| 空調 | 個別空調 |
|---|---|
| トイレ | 男女別トイレ室内 / 男女別トイレ室外 |
| 床仕様 | OA対応床(フリーアクセス) |
| エレベータ | 1 基 |
| 駐車場設備 | - |
| その他 | 機械警備 / SOHO/マンション / 新耐震基準 / オートロック / 1階の物件 / 店舗可(飲食可) / スケルトン / クリニック / 塾・スクール |
西麻布尾花ビルの賃貸オフィス・事務所に関するお問い合わせ
西麻布尾花ビルについて
西麻布尾花ビルは、1991年に竣工された地上6階建ての賃貸オフィスビルです。このビルは港区西麻布、都心の中核地域に位置し、広尾駅から徒歩10分というアクセスの良さを誇ります。一歩足を踏み入れると、その立地だけでなく、ビル自体の設備の高さとスペックの良さにも注目が集まります。 各フロアは約25坪の広さで、メゾネット区画を含む多様な間取りが提供されており、あらゆるタイプのビジネスニーズに対応します。この柔軟性はテナントにとって、自社の成長や変化する要件に合わせて空間を最適化する機会を提供します。 ビルのセキュリティ体制も万全です。オートロック機能が完備されており、テナントとその従業員は安心して業務に専念できます。また、エレベーターは1基設置されており、スムーズな館内移動を支えます。 周辺環境もビジネスを行う上で大きな魅力の一つです。ビルの前面には通りがあり、徒歩2分の距離にローソンや三井住友銀行麻布支店があり、日常の買い物や金融業務が容易に行えます。また、地元ホブソンズなどの飲食店も充実しており、ビジネスランチやアフター5の時間も充実すること間違いありません。 西麻布尾花ビルは、その立地の良さ、柔軟な間取り、充実した設備、そして周辺環境の豊かさが魅力の賃貸オフィスビルです。ビジネスの拠点として、または企業の成長を支える場所として、最適な環境を提供します。ビジネスの成功に必要なすべてがここにあります。西麻布尾花ビルで、あなたのビジネスを次のレベルへと導きましょう。
西麻布尾花ビルのこだわり
自分で探すより問い合わせる方が早いことがあります
WEB非公開物件があるから
オーナー様のご希望により「WEBでは非公開」にしている物件があります。 それらはWEBでいくら検索しても見つかりません。 先ずは条件などお知らせ頂けましたら非公開物件含め ピッタリのオフィスをご提案させて頂きます。 無理なお勧めはしておりませんので、お気軽にお問い合わせください。
対面でのご相談も受け付けております
ご来店も歓迎です
オフィス移転は社内・社外ともに非公開に行われることが殆どです。そのためアットオフィスでは、基本的に訪問によるコンサルティングを行っておりますが、ご来店の相談も歓迎です。お一人おひとりに親身にご対応させて頂きたい為、要予約とさせて頂いております。ご来店の際は先ずは下記よりご予約下さい。
募集終了のテナント区画
| 階数 | 坪数 | 賃料 + 共益費 | 敷金/礼金敷金 礼金 | 検討 |
|---|---|---|---|---|
| B1階 | 18.94坪 (62.61m²) | 募集終了 | - | - |
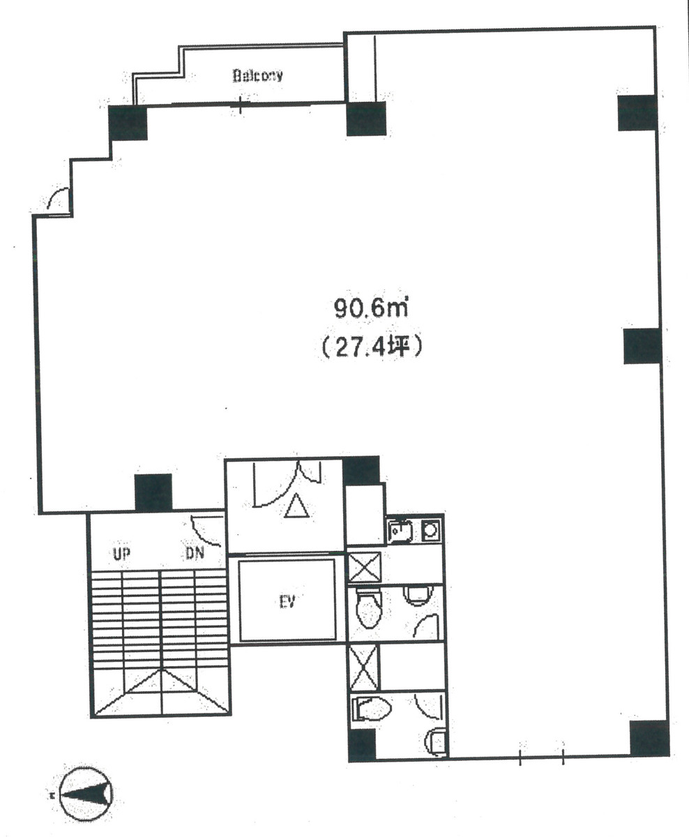
| 2階 | 27.4坪 (90.58m²) | 募集終了 | - | - |
| 3階 | 28.55坪 (94.38m²) | 募集終了 | - | - |
| 3階 | 18.63坪 (61.59m²) | 募集終了 | - | - |
| 3階 | 21.43坪 (70.85m²) | 募集終了 | - | - |
| 4階 | 19.77坪 (65.36m²) | 募集終了 | - | - |
| 5-6階 | 40.3坪 (133.24m²) | 募集終了 | - | - |
読込中...
赤坂/六本木/麻布エリアで西麻布尾花ビルに似た条件の物件
読込中...
| 取扱様態 | 仲介 |
|---|---|
| 取扱会社 | 株式会社 アットオフィス |