※このサイトに記載がある賃貸条件は、敷金・保証金などの預かり金を除き、別途消費税がかかります。
物件情報
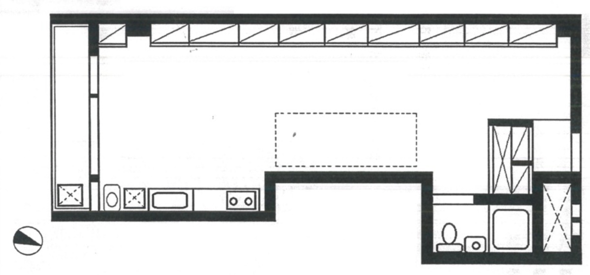
設備詳細
| 空調 | - |
|---|---|
| トイレ | 男女共用トイレ・室外 |
| 床仕様 | - |
| エレベータ | 1 基 |
| 駐車場設備 | - |
| その他 | 24時間利用可 / SOHO/マンション / フリーレント / 東京賃料が坪11000円以下 |
麻布霞町マンションの賃貸オフィス・事務所に関するお問い合わせ
麻布霞町マンションについて
【麻布霞町ビルのご紹介】 西麻布4丁目に位置する、事務所やSOHOに最適な「麻布霞町ビル」をご紹介します。このビルは、港区の洗練された地域にあることから、ビジネスのチャンスが溢れる場所を求めている皆様にとって、まさに理想的な選択肢となるでしょう。 まず、このビルの立地の素晴らしさについてご説明します。麻布霞町ビルは、外苑西通り沿いに位置しており、周辺には多彩な飲食店やショップが揃い、仕事後のリラックスタイムやビジネスランチにも最適な環境が整っています。また、港区という地の利を生かし、都心へのアクセスが非常に便利です。このような立地は、従業員の皆様はもちろん、お客様にとっても魅力的なポイントとなることでしょう。 次に、麻布霞町ビルの設備について触れます。このビルには、日々の業務に欠かせないエレベーターが1機設置されており、スムーズな移動を支えます。また、SOHOや事務所としての利用を想定しているため、各種オフィス設備にも細心の注意が払われています。これにより、効率的かつ快適なビジネス空間を実現しています。 さらに、麻布霞町ビルのもう一つの魅力は、その柔軟性です。SOHOや事務所利用相談に応じ、皆様のビジネスに合わせたカスタマイズが可能です。これは、スタートアップ企業から既存のビジネスを拡大しようとする企業まで、幅広いニーズに対応できることを意味します。 最後に、麻布霞町ビルは、ただのオフィススペース以上の価値を提供します。その立地、設備、そして柔軟性によって、ビジネスの成長を加速させる環境がここにはあります。皆様が新たなビジネスの舞台として、麻布霞町ビルを選ばれることで、成功への一歩を踏み出すことができるでしょう。 皆様のビジネスが輝く場所、「麻布霞町ビル」で、新たなスタートを切りましょう。ご興味をお持ちの方は、ぜひ一度お問い合わせください。ビジネスの未来を共に創造していきましょう。
麻布霞町マンションのこだわり
自分で探すより問い合わせる方が早いことがあります
WEB非公開物件があるから
オーナー様のご希望により「WEBでは非公開」にしている物件があります。 それらはWEBでいくら検索しても見つかりません。 先ずは条件などお知らせ頂けましたら非公開物件含め ピッタリのオフィスをご提案させて頂きます。 無理なお勧めはしておりませんので、お気軽にお問い合わせください。
対面でのご相談も受け付けております
ご来店も歓迎です
オフィス移転は社内・社外ともに非公開に行われることが殆どです。そのためアットオフィスでは、基本的に訪問によるコンサルティングを行っておりますが、ご来店の相談も歓迎です。お一人おひとりに親身にご対応させて頂きたい為、要予約とさせて頂いております。ご来店の際は先ずは下記よりご予約下さい。
募集終了のテナント区画
| 階数 | 坪数 | 賃料 + 共益費 | 敷金/礼金敷金 礼金 | 検討 |
|---|---|---|---|---|
| 2階 | 67.8坪 (224.16m²) | 募集終了 | - | - |
| 2階 | 32.85坪 (108.59m²) | 募集終了 | - | - |
| 2階 | 55.34坪 (182.94m²) | 募集終了 | - | - |
| 2階 | 20坪 (66.36m²) | 募集終了 | - | - |
| 2階 | 12.2坪 (40.33m²) | 募集終了 | - | - |
| 3階 | 14.06坪 (46.48m²) | 募集終了 | - | - |
| 4階 | 11.87坪 (39.24m²) | 募集終了 | - | - |
| 4階 | 13.96坪 (46.14m²) | 募集終了 | - | - |
| 5階 | 11.87坪 (39.24m²) | 募集終了 | - | - |
| 6階 | 14.02坪 (46.36m²) | 募集終了 | - | - |
| 8階 | 11.64坪 (38.48m²) | 募集終了 | - | - |
| 8階 | 11.63坪 (38.45m²) | 募集終了 | - | - |
| 9階 | 9.38坪 (31m²) | 募集終了 | - | - |
| 9階 | 9.39坪 (31.04m²) | 募集終了 | - | - |
| 10階 | 5坪 (16.52m²) | 募集終了 | - | - |
| 10階 | 12.81坪 (42.33m²) | 募集終了 | - | - |
| 10階 | 12.95坪 (42.83m²) | 募集終了 | - | - |
読込中...
赤坂/六本木/麻布エリアで麻布霞町マンションに似た条件の物件
読込中...
| 取扱様態 | 仲介 |
|---|---|
| 取扱会社 | 株式会社 アットオフィス |