BRICK GATE茅場町1階の賃貸情報
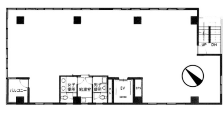
24.69 坪 (81.63m²)
※このサイトに記載がある賃貸条件は、敷金・保証金などの預かり金を除き、別途消費税がかかります。
BRICK GATE茅場町の建物概要
設備詳細
| 空調 | 個別空調 |
|---|---|
| トイレ | 男女共用トイレ・室内 |
| 床仕様 | - |
| エレベータ | 1 基 |
| 駐車場設備 | - |
| その他 | 機械警備 / 24時間利用可 / 光ファイバー / 新耐震基準 / 1階の物件 / 店舗可(飲食可) / 居抜き |
BRICK GATE茅場町について
**BRICKGATE茅場町ビルの紹介** 皆さま、今日は中央区日本橋茅場町に位置する「BRICKGATE茅場町ビル」の魅力についてご紹介いたします。東京都心のビジネスエリアにふさわしいこの賃貸オフィス物件は、多くの企業様にとって理想的なスペースを提供しています。 **立地の魅力** まず、立地についてです。BRICKGATE茅場町は、東京メトロ東西線・日比谷線の茅場町駅からわずか徒歩1分という、アクセス抜群の位置にあります。さらに、八丁堀駅、日本橋駅、東京駅へも徒歩で簡単にアクセス可能で、複数の路線が利用できるため、都内はもちろん、都外への移動もスムーズです。ビジネスの中心地に位置しながら、周辺は比較的静かで落ち着いた環境を保っており、働く方々にとって最適な条件を備えています。 **物件の特徴** 次に、物件の特徴です。このビルは1990年に竣工し、2017年に大規模リニューアルが施されました。外観はオシャレな茶色のタイル壁で、エントランスは黒枠に光のラインが入る洗練されたデザインになっています。8階建てで基準階の面積は約60坪、内装はガラスパーテーションやタイルカーペットを使用しており、モダンかつ機能的なオフィス空間を提供しています。 **設備の充実** 設備面も見逃せません。全室個別空調で、男女別トイレも各階に完備。セキュリティは24時間稼働の機械警備を導入し、入居企業様の安全を守ります。また、エレベーターは1基設置されていますが、この物件の規模には適切な配置となっており、スムーズな移動を確保しています。 **周辺環境** 周辺環境も魅力の一つです。ビルの近くには飲食店が豊富にあり、ランチや夕食時に便利です。また、コンビニ、郵便局、各種銀行など、ビジネスに必要な施設がすべて徒歩圏内に揃っています。この地域の充実したインフラは、日々の業務を効率化し、働く人々の生活をサポートします。 **まとめ** BRICKGATE茅場町ビルは、その立地、設備、周辺環境の全てにおいて、ビジネスの拠点として最適な条件を備えた賃貸オフィス物件です。新耐震基準にも対応しており、安心してご利用いただけます。皆様のビジネスの成功をサポートするための、素晴らしい環境がここにあります。ご興味をお持ちの方は、是非一度、内覧にいらしてください。BRICKGATE茅場町で、新たなビジネスのステージを始めませんか?
BRICK GATE茅場町のこだわり
自分で探すより問い合わせる方が早いことがあります
WEB非公開物件があるから
オーナー様のご希望により「WEBでは非公開」にしている物件があります。 それらはWEBでいくら検索しても見つかりません。 先ずは条件などお知らせ頂けましたら非公開物件含め ピッタリのオフィスをご提案させて頂きます。 無理なお勧めはしておりませんので、お気軽にお問い合わせください。
対面でのご相談も受け付けております
ご来店も歓迎です
オフィス移転は社内・社外ともに非公開に行われることが殆どです。そのためアットオフィスでは、基本的に訪問によるコンサルティングを行っておりますが、ご来店の相談も歓迎です。お一人おひとりに親身にご対応させて頂きたい為、要予約とさせて頂いております。ご来店の際は先ずは下記よりご予約下さい。
近くのエリアで探してみる
茅場町/新川/八丁堀エリアでBRICK GATE茅場町に似た条件の物件
読込中...
BRICK GATE茅場町と同じ最寄駅の物件
読込中...
| 取扱様態 | 仲介 |
|---|---|
| 取扱会社 | 株式会社 アットオフィス |