パレスサイド千代田4階の賃貸情報
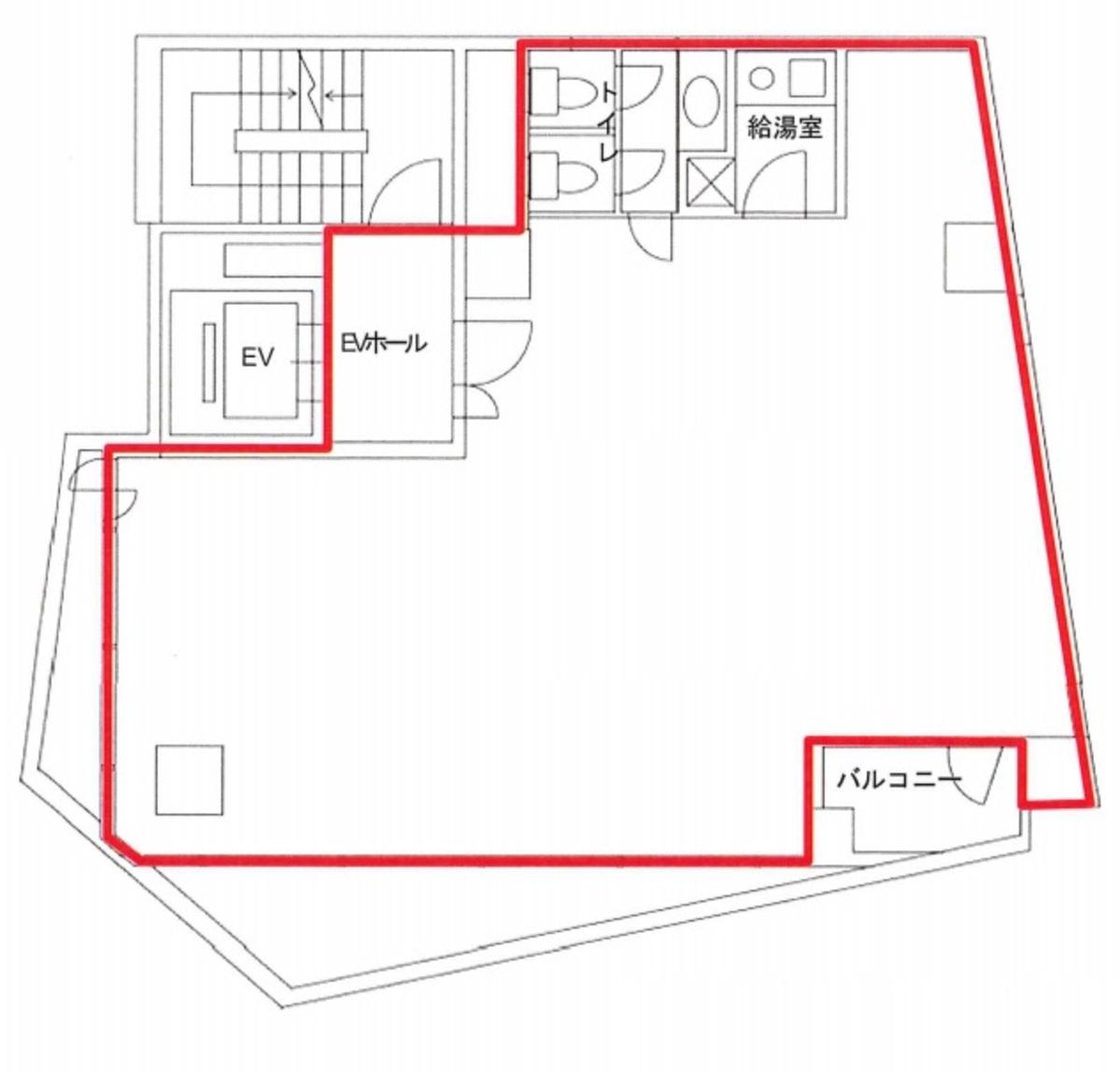
27.2 坪 (89.92m²)
※このサイトに記載がある賃貸条件は、敷金・保証金などの預かり金を除き、別途消費税がかかります。
パレスサイド千代田の建物概要
設備詳細
| 空調 | 個別空調 |
|---|---|
| トイレ | - |
| 床仕様 | OA対応床(フリーアクセス) |
| エレベータ | 1 基 |
| 駐車場設備 | - |
| その他 | 機械警備 / 24時間利用可 / 光ファイバー / 新耐震基準 |
パレスサイド千代田について
東京都心の活気ある地域に位置する「パレスサイド千代田ビル」は、洗練されたビジネス環境を求める企業にとって理想的な選択肢です。このビルは、1987年に竣工され、新耐震基準に則って建設されたことで、安全性にも配慮されています。黒いガラス張りの外観は、現代的でスタイリッシュな印象を与え、大きな窓面は豊富な自然光を室内に取り込みます。これにより、オフィス内は明るく、作業環境が向上します。 立地においても、パレスサイド千代田ビルは群を抜いています。半蔵門駅からわずか徒歩1分という駅近物件であり、3駅以上の利用が可能であるため、都内各地へのアクセスが非常に便利です。このように優れた交通アクセスは、ビジネスチャンスを広げる上で大きな利点となります。 ビルの設備に関しても、テナントのニーズに応える充実した内容となっています。24時間利用可能な点は、柔軟な働き方を支えます。また、男女別トイレや1機のエレベーター、ビル内駐車場などの設備も整っており、日々の業務をスムーズに行える環境が提供されます。 ビル内には、1階にコンビニが入居しており、日常のちょっとした買い物にも便利です。さらに、2013年には大幅なリニューアルが行われ、より快適なオフィス空間が実現されました。各貸室は、27坪の広さを有し、OAフロアと光回線に対応しているため、最新のオフィス環境を求める企業に最適です。 立地の良さだけでなく、ビル周辺の環境も魅力の一つです。お弁当屋、カフェ、レストランなど、多様な飲食店が立ち並び、ビジネスランチやアフター5の利用にも困りません。また、郵便局へのアクセスも良好で、麹町駅周辺には銀行の支店も複数あり、ビジネスに必要なサービスが手軽に利用できます。 パレスサイド千代田ビルは、優れた立地、先進的な設備、そして利便性の高い周辺環境を兼ね備え、ビジネスの成功を支える最適な舞台を提供します。ここでのオフィスライフは、企業と従業員の双方にとって、より豊かで生産的なものになることでしょう。
パレスサイド千代田のこだわり
自分で探すより問い合わせる方が早いことがあります
WEB非公開物件があるから
オーナー様のご希望により「WEBでは非公開」にしている物件があります。 それらはWEBでいくら検索しても見つかりません。 先ずは条件などお知らせ頂けましたら非公開物件含め ピッタリのオフィスをご提案させて頂きます。 無理なお勧めはしておりませんので、お気軽にお問い合わせください。
対面でのご相談も受け付けております
ご来店も歓迎です
オフィス移転は社内・社外ともに非公開に行われることが殆どです。そのためアットオフィスでは、基本的に訪問によるコンサルティングを行っておりますが、ご来店の相談も歓迎です。お一人おひとりに親身にご対応させて頂きたい為、要予約とさせて頂いております。ご来店の際は先ずは下記よりご予約下さい。
番町/麹町/平河町エリアでパレスサイド千代田に似た条件の物件
読込中...
パレスサイド千代田と同じ最寄駅の物件
読込中...
| 取扱様態 | 仲介 |
|---|---|
| 取扱会社 | 株式会社 アットオフィス |