極東設計ビル4階の賃貸情報
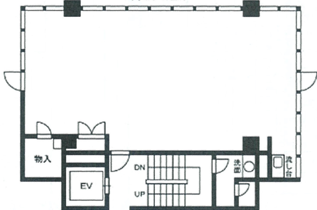
28.1 坪 (92.89m²)
※このサイトに記載がある賃貸条件は、敷金・保証金などの預かり金を除き、別途消費税がかかります。
極東設計ビルの建物概要
設備詳細
| 空調 | 個別空調 |
|---|---|
| トイレ | - |
| 床仕様 | - |
| エレベータ | 1 基 |
| 駐車場設備 | - |
| その他 | 機械警備 / 光ファイバー |
極東設計ビル4階の賃貸オフィス・事務所に関するお問い合わせ
極東設計ビルについて
港区西麻布に位置する「極東設計ビル」は、1973年に竣工された地上7階建ての賃貸オフィスビルです。このビルは、その立地と高いスペックで注目を集めています。まず立地についてですが、乃木坂駅から徒歩9分、六本木駅からは徒歩11分というアクセスの良さが魅力です。また、新橋方面や渋谷駅へのバスが利用可能な停留所が徒歩2分の距離にあり、ビジネスシーンでの移動の利便性を高めています。 ビルのスペックに目を向けると、その魅力はさらに明らかになります。基準階のオフィスフロアは約28坪と、中小規模の企業に最適な広さを提供しています。また、3面採光であるため、自然光がたっぷりと入る明るいオフィス空間を実現。長方形の間取りは非常に使い勝手が良く、柱のない開放的な設計が特徴です。これにより、オフィスレイアウトの自由度が高まり、様々なビジネスニーズに対応可能です。 設備面では、個別空調を完備しており、季節や時間帯に応じて快適な室温を保つことができるため、従業員の作業環境の向上が期待できます。加えて、光ファイバーがMDFまで引込み済みであり、高速インターネット環境の構築も容易です。セキュリティ面でも、機械警備システムを導入しており、安心して業務に取り組むことができます。 外観はガラス張りで、視認性に優れており、ビル自体が一種のブランドイメージを構築。周囲には飲食店やコンビニが豊富にあり、ビジネスだけでなく日々の生活においても便利な環境です。 「極東設計ビル」は、その立地、スペック、設備の良さを兼ね備えた賃貸オフィスビルです。特に、光が溢れる快適なオフィス空間は、従業員の創造性や生産性を刺激し、ビジネスの成功に大きく貢献します。このビルが、あなたのビジネスの拠点として、最適な環境を提供することでしょう。
極東設計ビルのこだわり
自分で探すより問い合わせる方が早いことがあります
WEB非公開物件があるから
オーナー様のご希望により「WEBでは非公開」にしている物件があります。 それらはWEBでいくら検索しても見つかりません。 先ずは条件などお知らせ頂けましたら非公開物件含め ピッタリのオフィスをご提案させて頂きます。 無理なお勧めはしておりませんので、お気軽にお問い合わせください。
対面でのご相談も受け付けております
ご来店も歓迎です
オフィス移転は社内・社外ともに非公開に行われることが殆どです。そのためアットオフィスでは、基本的に訪問によるコンサルティングを行っておりますが、ご来店の相談も歓迎です。お一人おひとりに親身にご対応させて頂きたい為、要予約とさせて頂いております。ご来店の際は先ずは下記よりご予約下さい。
赤坂/六本木/麻布エリアで極東設計ビルに似た条件の物件
読込中...
極東設計ビルと同じ最寄駅の物件
読込中...
| 取扱様態 | 仲介 |
|---|---|
| 取扱会社 | 株式会社 アットオフィス |