第1井上ビルの賃料条件
| 階数 | 坪数 | 賃料 + 共益費 | 敷金/礼金敷金 礼金 | 検討 |
|---|---|---|---|---|
| 1階 | 23.9坪 (78.99m²) | 788,700円 (坪:33,000 円) | 8ヶ月 無8ヶ月/無 | |
| 5階 | 12.3坪 (40.66m²) | 226,500円 (坪:18,000 円) | 8ヶ月 無8ヶ月/無 | |
| 5階 | 17.16坪 (56.74m²) | 274,560円 (坪:16,000 円) | 8ヶ月 無8ヶ月/無 |
※このサイトに記載がある賃貸条件は、敷金・保証金などの預かり金を除き、別途消費税がかかります。
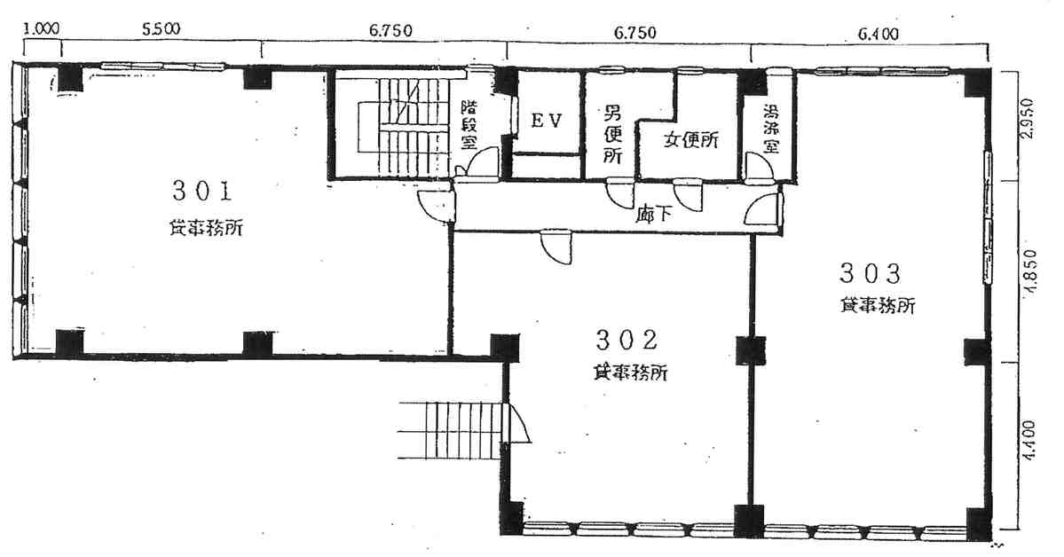
物件情報
設備詳細
| 空調 | 個別空調 |
|---|---|
| トイレ | - |
| 床仕様 | - |
| エレベータ | 1 基 |
| 駐車場設備 | - |
| その他 | 機械警備 / 24時間利用可 / 光ファイバー / 1階の物件 / 店舗可(飲食不可) |
第1井上ビルの賃貸オフィス・事務所に関するお問い合わせ
第1井上ビルについて
東京都中央区日本橋茅場町2-14-1に位置する第1井上ビルは、ビジネスの中心地としての魅力と快適なオフィス環境が融合した、非常に魅力的な賃貸オフィスビルです。茅場町駅からわずか徒歩1分という抜群の立地条件に加え、日本橋駅からも徒歩5分と、アクセスの良さはビジネスにおいて大きな利点となること間違いありません。 このビルは1973年に竣工され、鉄骨鉄筋コンクリート造の堅牢な構造で、耐震性に優れていることが特徴です。さらに、1999年にはリニューアルが行われ、現代のビジネスニーズに合わせた設備へとアップデートされました。オフィスフロアはOAフロアを採用しており、床下にケーブルやコンセントを納めることができるため、オフィス内の配線をすっきりと保つことができます。これにより、作業スペースを最大限に活用し、快適で効率的なワークスペースを実現しています。 ビル内には1基のエレベーターが設置されており、快適な移動をサポートします。また、個別空調システムにより、各テナントが自由に温度設定を行えるため、年中快適なオフィス環境を維持することが可能です。セキュリティ面では、機械警備と24時間利用可能な体制が整っており、テナントの安全とセキュリティをしっかりと守ります。 光ファイバー対応のインフラも整っており、高速インターネット環境が確保されています。これにより、ビジネスのデジタル化が進む現代において、スムーズなコミュニケーションと情報共有が可能となります。 第1井上ビル周辺には、飲食店やクリニック、きらぼし銀行などの便利な施設が充実しており、ビジネスだけでなく日常生活にも便利な環境が整っています。裏通りに位置しているため、中心地でありながらも穏やかな通りで、働く人々にとって快適な環境が提供されています。 第1井上ビルは、その立地、設備、アクセスの良さを兼ね備え、ビジネスの可能性を広げる理想的なオフィス空間です。高い機能性と利便性を求める企業には、まさに最適な選択肢と言えるでしょう。ご興味のある方は、ぜひ一度、このビルの魅力を直接ご覧になってください。
第1井上ビルのこだわり
自分で探すより問い合わせる方が早いことがあります
WEB非公開物件があるから
オーナー様のご希望により「WEBでは非公開」にしている物件があります。 それらはWEBでいくら検索しても見つかりません。 先ずは条件などお知らせ頂けましたら非公開物件含め ピッタリのオフィスをご提案させて頂きます。 無理なお勧めはしておりませんので、お気軽にお問い合わせください。
対面でのご相談も受け付けております
ご来店も歓迎です
オフィス移転は社内・社外ともに非公開に行われることが殆どです。そのためアットオフィスでは、基本的に訪問によるコンサルティングを行っておりますが、ご来店の相談も歓迎です。お一人おひとりに親身にご対応させて頂きたい為、要予約とさせて頂いております。ご来店の際は先ずは下記よりご予約下さい。
募集終了のテナント区画
| 階数 | 坪数 | 賃料 + 共益費 | 敷金/礼金敷金 礼金 | 検討 |
|---|---|---|---|---|
| 1階 | 20.82坪 (68.82m²) | 募集終了 | - | - |
| 3階 | 28.55坪 (94.37m²) | 募集終了 | - | - |
| 3階 | 20.34坪 (67.23m²) | 募集終了 | - | - |
| 5階 | 11.8坪 (39m²) | 募集終了 | - | - |
| 6階 | 6.5坪 (21.48m²) | 募集終了 | - | - |
| 6階 | 7.5坪 (24.79m²) | 募集終了 | - | - |
| 6階 | 8.5坪 (28.09m²) | 募集終了 | - | - |
読込中...
近くのエリアで探してみる
茅場町/新川/八丁堀エリアで第1井上ビルに似た条件の物件
読込中...
| 取扱様態 | 仲介 |
|---|---|
| 取扱会社 | 株式会社 アットオフィス |