※このサイトに記載がある賃貸条件は、敷金・保証金などの預かり金を除き、別途消費税がかかります。
物件情報
設備詳細
| 空調 | 個別空調 |
|---|---|
| トイレ | - |
| 床仕様 | - |
| エレベータ | 1 基 |
| 駐車場設備 | - |
| その他 | 機械警備 / クリニック / スケルトン / フリーレント |
BIC赤坂ビルの賃貸オフィス・事務所に関するお問い合わせ
BIC赤坂ビルについて
BIC赤坂ビルは、東京都港区赤坂に誇りを持って立つ、1980年竣工の魅力的な賃貸オフィス物件です。この8階建てのビルは、赤坂見附駅の目の前という絶好のロケーションに位置し、交通の便が非常に良いことが最大の特徴です。基準階約40坪という広さを誇り、様々なビジネスニーズに柔軟に対応できる設計となっています。ビルの外観は白パネル張りで、清潔感とフレッシュな印象を与えます。また、鉄筋コンクリート構造という堅牢な建築で、長期的なビジネスの拠点としても安心です。 ビルのエントランスは24時間使用可能で、ビジネスの動きが活発な企業でも無理なく運営できます。エレベーターは1基設置されており、スムーズな移動をサポートします。立地に関しては、赤坂見附駅はもちろん、溜池山王駅、赤坂駅、永田町駅といった複数の駅が徒歩圏内にあり、ビジネスのチャンスを広げるためのアクセスの良さを備えています。 周辺環境も見逃せません。赤坂見附駅周辺には、飲食店が豊富にあり、ランチタイムやビジネスアフターの憩いの場としても最適です。ビジネスマンにとって、日々のストレスを癒やし、気軽に利用できる環境は、働く上での大きなメリットと言えるでしょう。 BIC赤坂ビルは、その立地、設備、周辺環境の全てにおいて、ビジネスに最適な条件を整えています。特に、アクセスの良さは、クライアントとの打ち合わせやビジネスチャンスを広げる上で重要な要素です。また、清潔感溢れるビルの外観は、訪れる人々に良い印象を与え、ビジネスイメージの向上にも寄与します。このビルで、あなたのビジネスを一層輝かせ、成功への一歩を踏み出しませんか?
BIC赤坂ビルのこだわり
自分で探すより問い合わせる方が早いことがあります
WEB非公開物件があるから
オーナー様のご希望により「WEBでは非公開」にしている物件があります。 それらはWEBでいくら検索しても見つかりません。 先ずは条件などお知らせ頂けましたら非公開物件含め ピッタリのオフィスをご提案させて頂きます。 無理なお勧めはしておりませんので、お気軽にお問い合わせください。
対面でのご相談も受け付けております
ご来店も歓迎です
オフィス移転は社内・社外ともに非公開に行われることが殆どです。そのためアットオフィスでは、基本的に訪問によるコンサルティングを行っておりますが、ご来店の相談も歓迎です。お一人おひとりに親身にご対応させて頂きたい為、要予約とさせて頂いております。ご来店の際は先ずは下記よりご予約下さい。
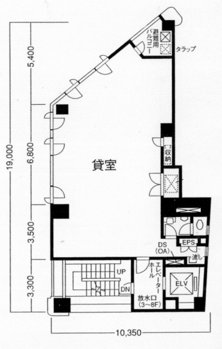
募集終了のテナント区画
| 階数 | 坪数 | 賃料 + 共益費 | 敷金/礼金敷金 礼金 | 検討 |
|---|---|---|---|---|
| 3階 | 40.96坪 (135.4m²) | 募集終了 | - | - |
| 4階 | 40.96坪 (135.4m²) | 募集終了 | - | - |
| 5階 | 40.96坪 (135.42m²) | 募集終了 | - | - |
| 5階 | 36.41坪 (120.36m²) | 募集終了 | - | - |
| 6階 | 40.96坪 (135.4m²) | 募集終了 | - | - |
| 7階 | 40.96坪 (135.4m²) | 募集終了 | - | - |
読込中...
赤坂/六本木/麻布エリアでBIC赤坂ビルに似た条件の物件
読込中...
| 取扱様態 | 仲介 |
|---|---|
| 取扱会社 | 株式会社 アットオフィス |