アルス市ヶ谷ビルの賃料条件
| 階数 | 坪数 | 賃料 + 共益費 | 敷金/礼金敷金 礼金 | 検討 |
|---|---|---|---|---|
| 3階 | 20.98坪 (69.37m²) | お問合せ下さい (坪:-) | 相談 無相談/無 | |
| 9階 | 9.38坪 (31.04m²) | お問合せ下さい (坪:-) | 相談 相談相談/相談 |
※このサイトに記載がある賃貸条件は、敷金・保証金などの預かり金を除き、別途消費税がかかります。
お電話でもお気軽にお問い合わせください
物件情報
設備詳細
| 空調 | 個別空調 |
|---|---|
| トイレ | - |
| 床仕様 | - |
| エレベータ | 2 基 |
| 駐車場設備 | - |
| その他 | 新耐震基準 |
アクセスマップ
アルス市ケ谷ビルは、千代田区九段南4丁目に位置する賃貸オフィスビルで、1985年(昭和60年)に竣工しました。このビルは、市ヶ谷駅から徒歩わずか1分の距離にあり、靖国通り沿いの非常に便利な立地を誇ります。市ヶ谷駅は、新宿線、JR線、有楽町線、南北線の4路線が利用可能で、アクセスの良さはこの物件の大きな魅力の一つです。 アルス市ケ谷ビルは、上層階が居住用マンション、低層階がオフィスフロアという構成で、ビジネスと居住の両方のニーズに応えることができます。ビル内には月極駐車場も設置されており、設備面でも充実しています。また、ビル内には男女別トイレや給湯室があり、オフィス環境としての快適さを追求しています。 周辺環境も魅力の一つで、三菱東京UFJ銀行やりそな銀行などの金融機関や、郵便局、コピー・プリントショップのキンコーズが徒歩圏内にあります。また、コンビニ、カフェ、飲食店が豊富にあるため、ビジネスライフをサポートする環境が整っています。 物件自体は、タイル貼りで丸みを帯びた外観が特徴的で、管理状態が良好なため、訪れる人々に良い印象を与えます。オフィスフロアはワンフロア最大60坪の広さがあり、募集時期によっては分割区画も可能で、様々な規模の企業が入居可能です。室内は長方形の間取りで、自社のニーズに合わせたオフィスレイアウトが可能です。 アルス市ケ谷ビルは、その立地、設備、周辺環境の良さを兼ね備え、ビジネスの拠点として最適なオフィス物件です。地下鉄とJRの複数路線が利用できるアクセスの良さ、便利な周辺施設、そして快適なオフィス環境を求める企業にとって、この物件は魅力的な選択肢となるでしょう。
募集終了のテナント区画
| 階数 | 坪数 | 賃料 + 共益費 | 敷金/礼金敷金 礼金 | 検討 |
|---|---|---|---|---|
| B1階 | 15.24坪 (50.38m²) | 募集終了 | - | - |
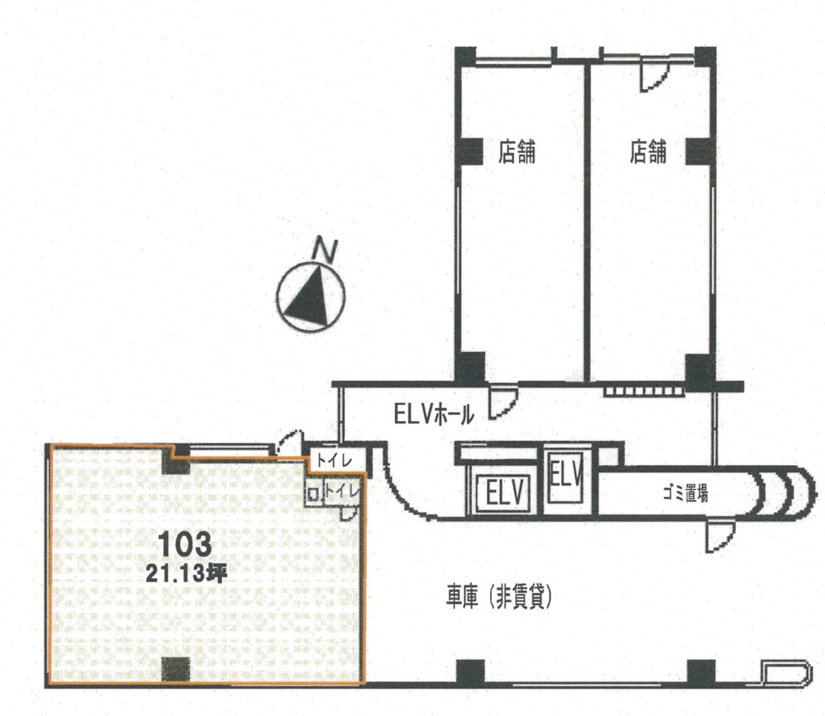
| 1階 | 21.13坪 (69.88m²) | 募集終了 | - | - |
| 1階 | 12.06坪 (39.87m²) | 募集終了 | - | - |
| 2階 | 40.71坪 (134.59m²) | 募集終了 | - | - |
| 2階 | 20.98坪 (69.37m²) | 募集終了 | - | - |
| 2階 | 16.1坪 (53.22m²) | 募集終了 | - | - |
| 2階 | 24.61坪 (81.37m²) | 募集終了 | - | - |
| 3階 | 39.35坪 (130.11m²) | 募集終了 | - | - |
| 4階 | 39.36坪 (130.11m²) | 募集終了 | - | - |
| 4階 | 16.1坪 (53.22m²) | 募集終了 | - | - |
| 4階 | 23.25坪 (76.86m²) | 募集終了 | - | - |
| 5階 | 7.3坪 (24.15m²) | 募集終了 | - | - |
| 5階 | 8.17坪 (27.01m²) | 募集終了 | - | - |
| 8階 | 7.83坪 (25.88m²) | 募集終了 | - | - |
| 8階 | 8.4坪 (27.76m²) | 募集終了 | - | - |
| 8階 | 7.46坪 (24.67m²) | 募集終了 | - | - |
| 8階 | 10.67坪 (35.27m²) | 募集終了 | - | - |
| 9階 | 7.12坪 (23.54m²) | 募集終了 | - | - |
| 9階 | 10.67坪 (35.27m²) | 募集終了 | - | - |
WEB非公開物件がございます
オーナー様ご希望によるWEB非公開の物件もございます。先ずは条件などお知らせ頂けましたら、非公開物件含めピッタリのオフィスをご提案させて頂きます。具体的な物件がお決まりでない場合でも問題ございません。無理なお勧めはしておりませんので、お気軽にお問い合わせください。
ご来店も歓迎です
オフィス移転は社内・社外ともに非公開に行われることが殆どです。そのためアットオフィスでは、基本的に訪問によるコンサルティングを行っておりますが、ご来店の相談も歓迎です。
※お一人おひとりに親身にご対応させて頂きたい為、要予約とさせて頂いております。ご来店の際は先ずは上記よりご予約下さい。
読込中...
番町/麹町/平河町エリアでアルス市ヶ谷ビルに似た条件の物件
読込中...