赤坂月世界ビルB1階の賃貸情報
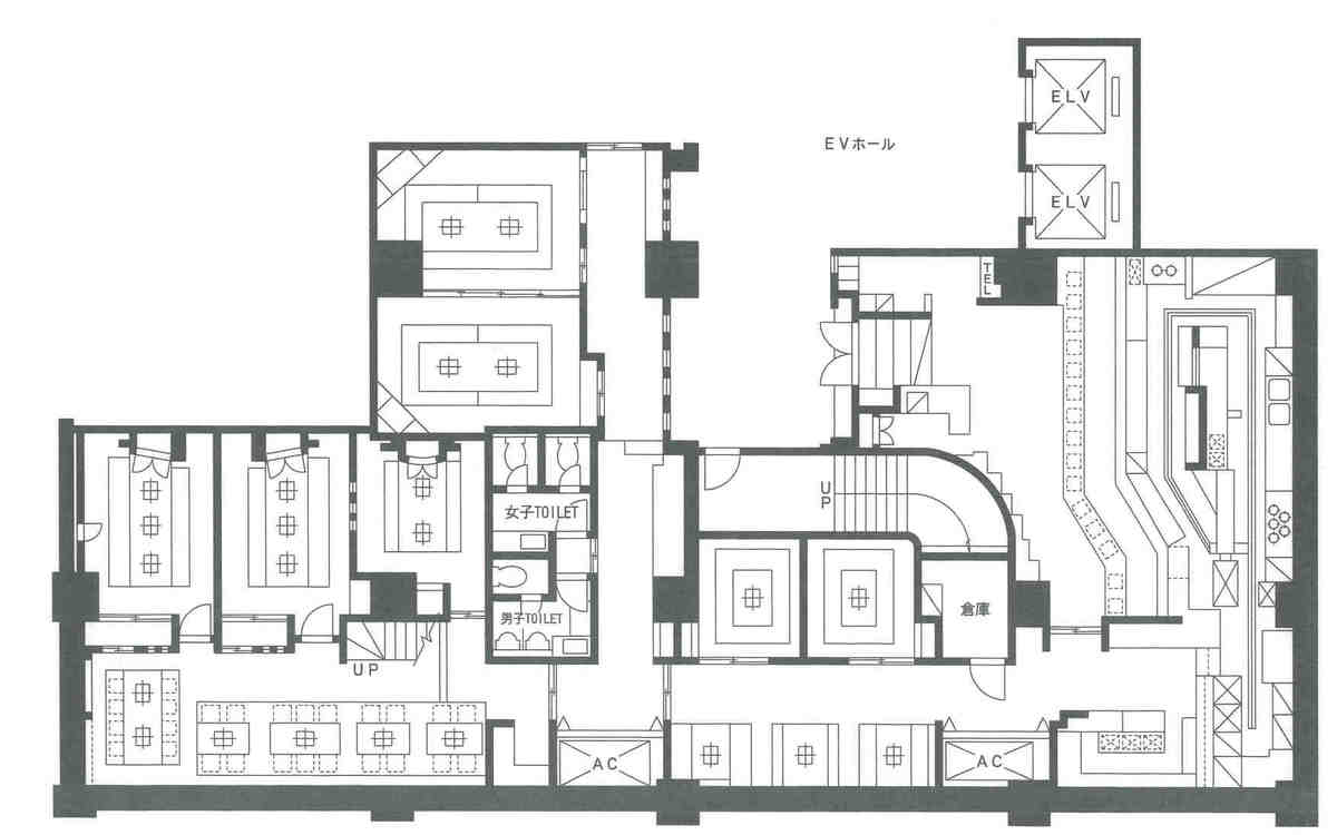
91 坪 (300.83m²)
※このサイトに記載がある賃貸条件は、敷金・保証金などの預かり金を除き、別途消費税がかかります。
赤坂月世界ビルの建物概要
設備詳細
| 空調 | - |
|---|---|
| トイレ | - |
| 床仕様 | - |
| エレベータ | 2 基 |
| 駐車場設備 | - |
| その他 | 24時間利用可 / 大型ビル / 光ファイバー / スケルトン / 居抜き / クリニック |
赤坂月世界ビルB1階の賃貸オフィス・事務所に関するお問い合わせ
赤坂月世界ビルについて
赤坂に立地する月世界ビルは、1982年に竣工した、新耐震基準に適合したオフィス賃貸ビルです。このビルの最大の魅力は、その立地にあります。赤坂見附駅から徒歩わずか2分の距離にあり、3駅以上が利用可能な非常に便利な場所に位置しています。ビジネスの中心地である港区赤坂3丁目に所在し、周囲には多様な飲食店やレジャー施設が充実しており、ビジネスだけでなく、日常生活やアフター5の充実も期待できます。 このビルは、大型でありながら、耐震性に優れた構造を持つことが特徴です。1982年の新耐震基準施工後に竣工しており、安心してご利用いただけるオフィス環境を提供します。また、ビル内に月極駐車場が備わっており、お車を利用される方にとっても大変便利です。駐車場の空き状況については、事前にお問い合わせいただくことでスムーズな利用が可能です。 エレベーターは3基設置されており、ビル内の移動も快適です。大型ビルながら、このような設備面での配慮も、ビルの利便性を高めています。また、赤坂というビジネスエリアにおいて、このような条件を満たす物件は非常に希少です。立地、設備、耐震性を兼ね備えた月世界ビルは、ビジネスの拠点としてはもちろん、新たな事業展開やオフィス移転を考えている企業にとって、最適な選択肢の一つと言えるでしょう。 赤坂月世界ビルをビジネスの舞台として選ぶことで、会社の信頼性向上や従業員の満足度向上にも繋がります。立地の良さは、ビジネスチャンスの拡大にも貢献し、多くの利便性が手に入ります。赤坂月世界ビルで、ビジネスの可能性を広げ、次のステップへと踏み出しましょう。
赤坂月世界ビルのこだわり
自分で探すより問い合わせる方が早いことがあります
WEB非公開物件があるから
オーナー様のご希望により「WEBでは非公開」にしている物件があります。 それらはWEBでいくら検索しても見つかりません。 先ずは条件などお知らせ頂けましたら非公開物件含め ピッタリのオフィスをご提案させて頂きます。 無理なお勧めはしておりませんので、お気軽にお問い合わせください。
対面でのご相談も受け付けております
ご来店も歓迎です
オフィス移転は社内・社外ともに非公開に行われることが殆どです。そのためアットオフィスでは、基本的に訪問によるコンサルティングを行っておりますが、ご来店の相談も歓迎です。お一人おひとりに親身にご対応させて頂きたい為、要予約とさせて頂いております。ご来店の際は先ずは下記よりご予約下さい。
赤坂/六本木/麻布エリアで赤坂月世界ビルに似た条件の物件
読込中...
赤坂月世界ビルと同じ最寄駅の物件
読込中...
| 取扱様態 | 仲介 |
|---|---|
| 取扱会社 | 株式会社 アットオフィス |