前川九段ビル2階の賃貸情報
67.95 坪 (224.62m²)
※このサイトに記載がある賃貸条件は、敷金・保証金などの預かり金を除き、別途消費税がかかります。
前川九段ビルの建物概要
設備詳細
| 空調 | 個別空調 |
|---|---|
| トイレ | - |
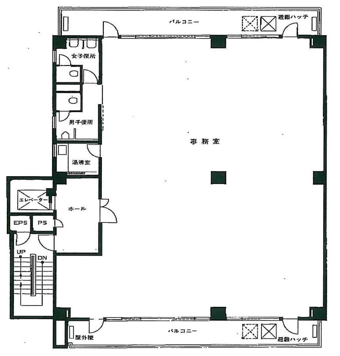
| 床仕様 | OA対応床(フリーアクセス) |
| エレベータ | 1 基 |
| 駐車場設備 | 空有 |
| その他 | 24時間利用可 / 新耐震基準 / 東京賃料が坪11000円以下 |
部屋の雰囲気
室内写真1
室内写真2
室内写真3
室内写真4
室内写真5
室内写真6
EVホール(階段)
前川九段ビルについて
前川九段ビルは、千代田区九段北2丁目に位置する、1987年に竣工された耐震性に優れたオフィスビルです。この物件は、新耐震基準に適合しており、安心してご利用いただける構造となっています。ビルの特徴として、2面にバルコニーがあり、自然光が室内にたっぷりと入る設計になっています。このため、明るく開放感のあるオフィス空間を実現しています。また、貸室の形状が整っており、レイアウトの自由度が高い点も魅力の一つです。 立地に関しても、前川九段ビルは魅力的なポイントが多くあります。最寄り駅である九段下駅からは徒歩7分と、アクセスが非常に良好です。千代田区という都心に位置しながら、周辺環境は落ち着いており、ビジネスに集中できる環境が整っています。さらに、ビル内に駐車場が設けられているため、車での通勤や来客にも便利です。 設備面では、エレベーターが1機設置されており、ビル内の移動もスムーズです。また、2面バルコニーの設計により、室内での換気も良好で、快適なオフィス環境を提供しています。 以上のように、前川九段ビルは、耐震性に優れた安全な建物構造、明るく開放感のある室内環境、便利で落ち着いた立地、そして充実した設備という、オフィスビルとしてのすべての要素を兼ね備えています。ビジネスの拠点として、多くの企業にとって最適な選択肢の一つであることは間違いありません。前川九段ビルで、新しいビジネスのステージをスタートさせてみてはいかがでしょうか。ご興味のある方は、ぜひ一度、現地をご覧いただければと思います。
自分で探すより問い合わせる方が早いことがあります
WEB非公開物件があるから
オーナー様のご希望により「WEBでは非公開」にしている物件があります。 それらはWEBでいくら検索しても見つかりません。 先ずは条件などお知らせ頂けましたら非公開物件含め ピッタリのオフィスをご提案させて頂きます。 無理なお勧めはしておりませんので、お気軽にお問い合わせください。
対面でのご相談も受け付けております
ご来店も歓迎です
オフィス移転は社内・社外ともに非公開に行われることが殆どです。そのためアットオフィスでは、基本的に訪問によるコンサルティングを行っておりますが、ご来店の相談も歓迎です。お一人おひとりに親身にご対応させて頂きたい為、要予約とさせて頂いております。ご来店の際は先ずは下記よりご予約下さい。
番町/麹町/平河町エリアで前川九段ビルに似た条件の物件
読込中...
前川九段ビルと同じ最寄駅の物件
読込中...
| 取扱様態 | 仲介 |
|---|---|
| 取扱会社 | 株式会社 アットオフィス |