WIND KIOICHO BLDG.4階の賃貸情報
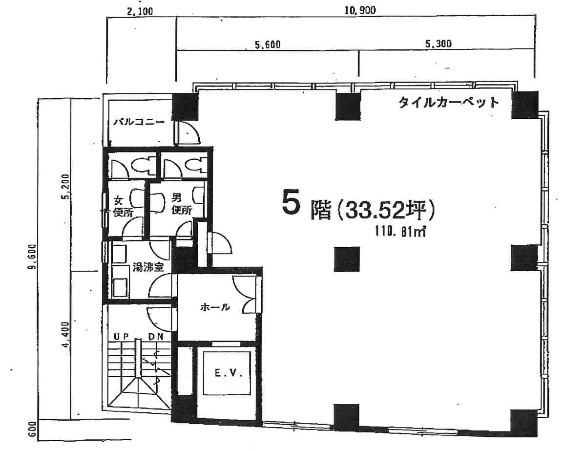
33.52 坪 (110.81m²)
※このサイトに記載がある賃貸条件は、敷金・保証金などの預かり金を除き、別途消費税がかかります。
WIND KIOICHO BLDG.の建物概要
設備詳細
| 空調 | 個別空調 |
|---|---|
| トイレ | - |
| 床仕様 | - |
| エレベータ | 1 基 |
| 駐車場設備 | - |
| その他 | 光ファイバー / 新耐震基準 / 東京賃料が坪11000円以下 |
部屋の雰囲気
室内写真1
室内写真2
室内写真3
トイレ
水周り
WIND KIOICHO BLDG.について
紀尾井町山本ビルは、東京都千代田区紀尾井町に位置するオフィスビルで、ビジネスの中心地にふさわしい洗練された立地と機能性を誇ります。この地域は、歴史的な風情と現代のビジネスシーンが融合した独特の雰囲気を持ち、数々の企業が集まるエリアとして知られています。紀尾井町山本ビルは、そんな紀尾井町の中心にありながら、静かで落ち着いた環境を提供しており、ビジネスに必要な集中と静寂を確保することができます。 このビルは、高いアクセシビリティを誇ります。東京メトロ有楽町線、半蔵門線、そして南北線が利用可能な永田町駅や、東京メトロ銀座線と丸ノ内線が利用できる赤坂見附駅が徒歩圏内にあり、東京都内はもちろん、都外へのアクセスも容易です。ビジネスマンにとって、移動の利便性は極めて重要な要素であり、紀尾井町山本ビルはそれを十分に満たしています。 ビルの設備面でも、テナントのニーズに応える構造となっています。オフィスビルとしての基本機能をしっかりと備え、現代のビジネス環境に適応した最新の設備が整っています。特筆すべきは、ビル内に1機のエレベーターが設置されている点です。小規模ながらも効率的な運用が可能となっており、テナントとその来客の移動をスムーズにします。 また、紀尾井町山本ビルの周辺環境は、ビジネスのみならずライフスタイルの充実にも寄与します。多様な飲食店が立ち並び、アフター5の憩いの場としても最適です。また、近隣には緑豊かな公園も点在し、仕事の合間のリフレッシュにも最適な環境です。 総じて、紀尾井町山本ビルは、ビジネスの利便性と快適性を兼ね備えたオフィスビルです。その立地、設備、周辺環境は、テナント企業にとって最適なビジネス基盤を提供し、企業活動をサポートします。紀尾井町でのビジネス拠点をお探しの企業にとって、紀尾井町山本ビルは、その選択肢の一つとして高い魅力を持っています。
自分で探すより問い合わせる方が早いことがあります
WEB非公開物件があるから
オーナー様のご希望により「WEBでは非公開」にしている物件があります。 それらはWEBでいくら検索しても見つかりません。 先ずは条件などお知らせ頂けましたら非公開物件含め ピッタリのオフィスをご提案させて頂きます。 無理なお勧めはしておりませんので、お気軽にお問い合わせください。
対面でのご相談も受け付けております
ご来店も歓迎です
オフィス移転は社内・社外ともに非公開に行われることが殆どです。そのためアットオフィスでは、基本的に訪問によるコンサルティングを行っておりますが、ご来店の相談も歓迎です。お一人おひとりに親身にご対応させて頂きたい為、要予約とさせて頂いております。ご来店の際は先ずは下記よりご予約下さい。
番町/麹町/平河町エリアでWIND KIOICHO BLDG.に似た条件の物件
読込中...
WIND KIOICHO BLDG.と同じ最寄駅の物件
読込中...
| 取扱様態 | 仲介 |
|---|---|
| 取扱会社 | 株式会社 アットオフィス |