※このサイトに記載がある賃貸条件は、敷金・保証金などの預かり金を除き、別途消費税がかかります。
物件情報
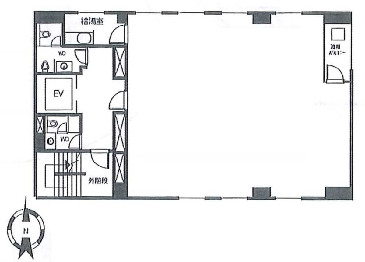
設備詳細
| 空調 | 個別空調 |
|---|---|
| トイレ | 男女別トイレ室内 |
| 床仕様 | - |
| エレベータ | 1 基 |
| 駐車場設備 | 空有 / 平置き駐車場 |
| その他 | 機械警備 / 24時間利用可 / 光ファイバー / 新耐震基準 |
NGA紀尾井町ビルの賃貸オフィス・事務所に関するお問い合わせ
NGA紀尾井町ビルについて
紀尾井町、その名が示すように、東京の中心に位置し歴史と静謐さが共存するエリアに、1990年に竣工し、新耐震基準に適合した安心と信頼のオフィスビル、NGA紀尾井町ビルがそびえ立っています。このビルは、ビジネスの成功と発展を追求する企業に最適な環境を提供します。では、その理由を詳しくご紹介いたしましょう。 まず、立地の利便性を見てみましょう。NGA紀尾井町ビルは麹町駅からわずか徒歩4分というアクセスの良さ。さらに、赤坂見附駅、半蔵門駅、永田町駅と、3駅以上が徒歩圏内にあるため、都内各地への移動が非常に便利です。ビジネスの機会を広げるためには、アクセスの利便性は非常に重要な要素であり、NGA紀尾井町ビルはその要件を完璧に満たしています。 次に、ビルの設備についてです。このビルは、地上7階建てで、円滑なビジネス運営をサポートするための設備が整っています。エレベーターは1基設置されており、24時間利用可能な貸室内は、余計な柱がないため広々としており、個別空調による快適な執務環境を実現します。セキュリティは機械警備により24時間体制で、安心してお仕事に集中できる環境が整っています。また、トイレは男女別で、給湯設備も完備。月極駐車場もビル内にあり、車通勤を考える方にも配慮されています。 さらに、このビルが提供するのは、ただのオフィススペースだけではありません。その立地と設備により、企業イメージの向上とブランディングに寄与する環境がここにはあります。閑静でありながら都心に位置する紀尾井町という地の利を活かし、クライアントを迎える際の印象も格段に向上します。また、新耐震基準に適合した建築物であることは、安全への配慮としても、あなたの企業が社員やクライアントの安心を第一に考えていることの証しとなります。 NGA紀尾井町ビルは、ビジネスの未来を見据え、成長を続ける企業やスタートアップにとって、理想的な拠点となるでしょう。このビルで新たな歴史をつくり、ビジネスの成功へと歩みを進めてください。ご興味をお持ちの方は、ぜひお問い合わせください。あなたのビジネスが次のレベルへと進むための最適な環境が、ここにあります。
自分で探すより問い合わせる方が早いことがあります
WEB非公開物件があるから
オーナー様のご希望により「WEBでは非公開」にしている物件があります。 それらはWEBでいくら検索しても見つかりません。 先ずは条件などお知らせ頂けましたら非公開物件含め ピッタリのオフィスをご提案させて頂きます。 無理なお勧めはしておりませんので、お気軽にお問い合わせください。
対面でのご相談も受け付けております
ご来店も歓迎です
オフィス移転は社内・社外ともに非公開に行われることが殆どです。そのためアットオフィスでは、基本的に訪問によるコンサルティングを行っておりますが、ご来店の相談も歓迎です。お一人おひとりに親身にご対応させて頂きたい為、要予約とさせて頂いております。ご来店の際は先ずは下記よりご予約下さい。
募集終了のテナント区画
| 階数 | 坪数 | 賃料 + 共益費 | 敷金/礼金敷金 礼金 | 検討 |
|---|---|---|---|---|
| 1階 | 33.34坪 (110.22m²) | 募集終了 | - | - |
| 2階 | 39.75坪 (131.4m²) | 募集終了 | - | - |
| 3階 | 37.76坪 (124.83m²) | 募集終了 | - | - |
| 3階 | 40.68坪 (134.51m²) | 募集終了 | - | - |
| 3階 | 32.69坪 (108.07m²) | 募集終了 | - | - |
| 4階 | 37.76坪 (124.82m²) | 募集終了 | - | - |
| 4階 | 39.75坪 (131.4m²) | 募集終了 | - | - |
| 4階 | 40.68坪 (134.48m²) | 募集終了 | - | - |
| 4階 | 32.69坪 (108.07m²) | 募集終了 | - | - |
| 5階 | 37.76坪 (124.82m²) | 募集終了 | - | - |
| 5階 | 40.68坪 (134.51m²) | 募集終了 | - | - |
| 6階 | 52.82坪 (174.61m²) | 募集終了 | - | - |
| 6階 | 40.68坪 (134.48m²) | 募集終了 | - | - |
読込中...
番町/麹町/平河町エリアでNGA紀尾井町ビルに似た条件の物件
読込中...
| 取扱様態 | 仲介 |
|---|---|
| 取扱会社 | 株式会社 アットオフィス |