平河町フロントビルの賃料条件
| 階数 | 坪数 | 賃料 + 共益費 | 敷金/礼金敷金 礼金 | 検討 |
|---|---|---|---|---|
| 4階 | 49.57坪 (163.87m²) | 1,387,960円 (坪:28,000 円) | 3ヶ月 無3ヶ月/無 | |
| 4階 | 57.58坪 (190.36m²) | 1,612,240円 (坪:28,000 円) | 3ヶ月 無3ヶ月/無 |
※このサイトに記載がある賃貸条件は、敷金・保証金などの預かり金を除き、別途消費税がかかります。
物件情報
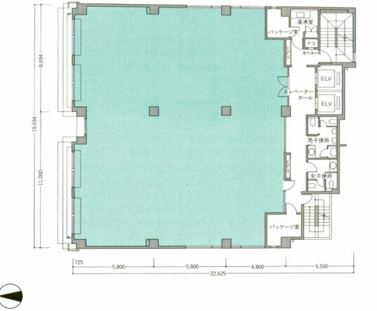
設備詳細
| 空調 | 個別空調 |
|---|---|
| トイレ | 男女別トイレ室外 |
| 床仕様 | OA対応床(フリーアクセス) |
| エレベータ | 2 基 |
| 駐車場設備 | - |
| その他 | 機械警備 / 24時間利用可 / 光ファイバー / 新耐震基準 / フリーレント / セットアップ / 保証金・敷金+礼金が3か月以下 / 天井高3m以上 / オフィス居抜き特集 |
平河町フロントビルの賃貸オフィス・事務所に関するお問い合わせ
平河町フロントビルについて
平河町フロントビルは、東京都千代田区平河町に鎮座する、ビジネスシーンにおける最高の拠点です。このビルは、1988年に竣工し、2022年にはファサードとエントランスが大幅にリニューアルされました。地上8階建てのこのオフィスビルは、新耐震基準を満たし、安心と安全の両方を提供しています。ビルの基準階面積は104.88坪で、広々とした空間が特徴です。また、50坪前後の区画もあり、さまざまなビジネスのニーズに応えることができます。 立地においては、東京メトロ半蔵門線の半蔵門駅からわずか徒歩2分、有楽町線の麹町駅からは徒歩3分と、3つの主要路線からのアクセスが非常に便利です。さらに、南北線永田町駅からも徒歩7分圏内で、東京の中心部への移動も容易です。この優れたアクセス性は、ビジネスシーンでの迅速な行動力をサポートします。 平河町フロントビルの設備は、最新のビジネスニーズに対応するために設計されています。オフィスは24時間利用可能で、個別空調、OAフロア、光ファイバーの導入、男女別トイレ、給湯室などの設備が完備されており、快適なオフィス環境を提供します。また、9台収容可能な自走式駐車場も完備しており、ビジネスマンにとっては大きな利点です。 周辺環境も魅力の一つです。ビルの近くには、コンビニエンスストア、飲食店、銀行、郵便局などがあり、日常のビジネスニーズに手軽に応えられる便利な立地です。また、国会議事堂や各国大使館が近くにあるため、国際的なビジネスの場としても最適です。 平河町フロントビルは、立地の利便性、最新の設備、そして周辺環境の充実さから見ても、ビジネスの拠点に最適な物件です。このビルでは、ビジネスの成功への道をさらに拓くことができます。美しくリニューアルされたエントランスが、あなたとあなたのビジネスパートナーを温かく迎え入れます。平河町フロントビルで、新たなビジネスのステージを始めませんか?
平河町フロントビルのこだわり
自分で探すより問い合わせる方が早いことがあります
WEB非公開物件があるから
オーナー様のご希望により「WEBでは非公開」にしている物件があります。 それらはWEBでいくら検索しても見つかりません。 先ずは条件などお知らせ頂けましたら非公開物件含め ピッタリのオフィスをご提案させて頂きます。 無理なお勧めはしておりませんので、お気軽にお問い合わせください。
対面でのご相談も受け付けております
ご来店も歓迎です
オフィス移転は社内・社外ともに非公開に行われることが殆どです。そのためアットオフィスでは、基本的に訪問によるコンサルティングを行っておりますが、ご来店の相談も歓迎です。お一人おひとりに親身にご対応させて頂きたい為、要予約とさせて頂いております。ご来店の際は先ずは下記よりご予約下さい。
募集終了のテナント区画
| 階数 | 坪数 | 賃料 + 共益費 | 敷金/礼金敷金 礼金 | 検討 |
|---|---|---|---|---|
| B1階 | 104.55坪 (345.62m²) | 募集終了 | - | - |
| 1階 | 47.07坪 (155.6m²) | 募集終了 | - | - |
| 1階 | 3.36坪 (11.1m²) | 募集終了 | - | - |
| 2階 | 104.88坪 (346.71m²) | 募集終了 | - | - |
| 3階 | 104.88坪 (346.71m²) | 募集終了 | - | - |
| 3階 | 49.32坪 (163.06m²) | 募集終了 | - | - |
| 3階 | 57.49坪 (190.06m²) | 募集終了 | - | - |
| 4階 | 104.88坪 (346.74m²) | 募集終了 | - | - |
| 6階 | 82.97坪 (274.3m²) | 募集終了 | - | - |
| 7階 | 72.8坪 (242.75m²) | 募集終了 | - | - |
| 8階 | 57.94坪 (191.53m²) | 募集終了 | - | - |
読込中...
番町/麹町/平河町エリアで平河町フロントビルに似た条件の物件
読込中...
| 取扱様態 | 仲介 |
|---|---|
| 取扱会社 | 株式会社 アットオフィス |