吉田ビル3階の賃貸情報
21.95 坪 (72.56m²)
※このサイトに記載がある賃貸条件は、敷金・保証金などの預かり金を除き、別途消費税がかかります。
吉田ビルの建物概要
設備詳細
| 空調 | 個別空調 |
|---|---|
| トイレ | 男女共用トイレ・室内 |
| 床仕様 | - |
| エレベータ | 1 基 |
| 駐車場設備 | - |
| その他 | 光ファイバー / 新耐震基準 |
吉田ビルについて
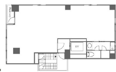
吉田ビルは、千代田区平河町1丁目に位置する、ビジネスニーズを満たす理想的な賃貸オフィス物件です。1984年に竣工し、7階建てのこのビルは、白いタイル張りの外観が特徴で、清潔感あふれる印象を与えます。基準階約21坪の貸室は、L字型に近い形状で効率的なオフィスレイアウトを可能にし、窓が一面にしかないことでプライバシーを保ちつつ、小さなバルコニーを通じて外の景色を楽しむことができます。 立地においては、吉田ビルは半蔵門駅から徒歩わずか2分という好アクセスの場所にあります。また、麹町駅、永田町駅も徒歩圏内にあり、複数の交通手段を利用できることでビジネスの機動性を高めます。ビルの周辺は飲食店やコンビニが充実しており、忙しいビジネスパーソンにとっての利便性を大幅に向上させています。 設備面では、吉田ビルは個別空調を完備しており、テナントの自由な温度設定が可能です。また、トイレと給湯スペースが室内に設置されているため、オフィス内のプライバシーと利便性が確保されています。エレベーターは1基設置されており、スムーズなビル内の移動をサポートします。 ビルの設計はユーザビリティを考慮しており、貸室から直接トイレへのアクセスではなく、前室を設けることで女性にとっても配慮された空間づくりがされています。このような細やかな配慮は、働く全ての人にとって快適な環境を提供する吉田ビルの姿勢を象徴しています。 吉田ビルは、立地の良さ、機能的な空間、充実した設備を兼ね備え、ビジネスの成功をサポートする賃貸オフィス物件です。これらの特徴は、企業のニーズに応えるだけでなく、働く人々の満足度を高め、ビジネスの成長と発展に寄与するでしょう。ビジネスの新たな拠点として、是非吉田ビルをご検討ください。
吉田ビルのこだわり
自分で探すより問い合わせる方が早いことがあります
WEB非公開物件があるから
オーナー様のご希望により「WEBでは非公開」にしている物件があります。 それらはWEBでいくら検索しても見つかりません。 先ずは条件などお知らせ頂けましたら非公開物件含め ピッタリのオフィスをご提案させて頂きます。 無理なお勧めはしておりませんので、お気軽にお問い合わせください。
対面でのご相談も受け付けております
ご来店も歓迎です
オフィス移転は社内・社外ともに非公開に行われることが殆どです。そのためアットオフィスでは、基本的に訪問によるコンサルティングを行っておりますが、ご来店の相談も歓迎です。お一人おひとりに親身にご対応させて頂きたい為、要予約とさせて頂いております。ご来店の際は先ずは下記よりご予約下さい。
番町/麹町/平河町エリアで吉田ビルに似た条件の物件
読込中...
吉田ビルと同じ最寄駅の物件
読込中...
| 取扱様態 | 仲介 |
|---|---|
| 取扱会社 | 株式会社 アットオフィス |