※このサイトに記載がある賃貸条件は、敷金・保証金などの預かり金を除き、別途消費税がかかります。
お電話でもお気軽にお問い合わせください
物件情報
設備詳細
| 空調 | - |
|---|---|
| トイレ | - |
| 床仕様 | - |
| エレベータ | 1 基 |
| 駐車場設備 | - |
| その他 | 機械警備 / 新耐震基準 |
アクセスマップ
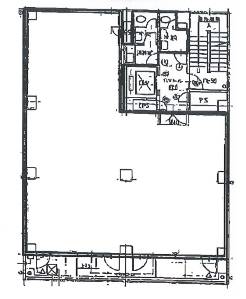
築地小山ビルは、東京都中央区築地3丁目に位置する、ビジネスの中心地にふさわしい高スペックオフィスビルです。この地域は、歴史と近代が融合する東京の中心部にあり、ビジネスだけでなく、グルメや文化を楽しむことができる環境に恵まれています。築地市場の近くに立地することから、新鮮な食材に囲まれた活気あるエリアであり、ビジネスの場としてはもちろん、クライアントを招待する際にも魅力的なロケーションと言えるでしょう。 築地小山ビルの最大の特徴は、水回りが外に配置されている点にあります。この設計により、室内のレイアウトを自由にカスタマイズすることが可能となり、テナントのニーズに応じたオフィス作りが実現します。特に、クリエイティブな業界や、スタートアップ企業にとって、柔軟な空間利用は非常に重要な要素です。築地小山ビルでは、そのような企業のニーズに応えるための環境が整っています。 また、ビルの設備面では、最新のセキュリティシステムを導入しており、入館管理やセキュリティ対策が万全です。これにより、テナント企業は安心してビジネスを行うことができます。さらに、築地小山ビルは、耐震構造や非常用発電機など、災害に対する備えも充実しており、万が一の事態にも迅速に対応できる設計となっています。 交通アクセスの面では、築地市場駅や東銀座駅から徒歩数分という立地で、都心へのアクセスも非常に良好です。ビジネスの中心地への移動がスムーズに行えるため、ビジネスチャンスを最大限に活かすことが可能です。 築地小山ビルは、その立地の良さ、柔軟なレイアウトが可能な設計、高度なセキュリティシステム、充実した災害対策など、ビジネスにおけるあらゆるニーズに応えることができるオフィスビルです。このビルは、これからのビジネスをリードしていく企業にとって、最適な拠点となることでしょう。
募集終了のテナント区画
| 階数 | 坪数 | 賃料 + 共益費 | 敷金/礼金敷金 礼金 | 検討 |
|---|---|---|---|---|
| B1階 | 43.32坪 (143.21m²) | 募集終了 | - | - |
| 1階 | 31.18坪 (103.1m²) | 募集終了 | - | - |
| 2階 | 46.44坪 (153.53m²) | 募集終了 | - | - |
| 3階 | 46.91坪 (155.08m²) | 募集終了 | - | - |
| 4階 | 44.46坪 (146.96m²) | 募集終了 | - | - |
| 5階 | 38.03坪 (125.72m²) | 募集終了 | - | - |
WEB非公開物件がございます
オーナー様ご希望によるWEB非公開の物件もございます。先ずは条件などお知らせ頂けましたら、非公開物件含めピッタリのオフィスをご提案させて頂きます。具体的な物件がお決まりでない場合でも問題ございません。無理なお勧めはしておりませんので、お気軽にお問い合わせください。
ご来店も歓迎です
オフィス移転は社内・社外ともに非公開に行われることが殆どです。そのためアットオフィスでは、基本的に訪問によるコンサルティングを行っておりますが、ご来店の相談も歓迎です。
※お一人おひとりに親身にご対応させて頂きたい為、要予約とさせて頂いております。ご来店の際は先ずは上記よりご予約下さい。
読込中...
新富/築地エリアで築地小山ビルに似た条件の物件
読込中...