ナカシゲビル3階の賃貸情報
31.2 坪 (103.1m²)
※このサイトに記載がある賃貸条件は、敷金・保証金などの預かり金を除き、別途消費税がかかります。
ナカシゲビルの建物概要
設備詳細
| 空調 | 個別空調 |
|---|---|
| トイレ | - |
| 床仕様 | - |
| エレベータ | 1 基 |
| 駐車場設備 | - |
| その他 | 24時間利用可 / 光ファイバー / 新耐震基準 / クリニック / 東京賃料が坪11000円以下 |
ナカシゲビル3階の賃貸オフィス・事務所に関するお問い合わせ
ナカシゲビルについて
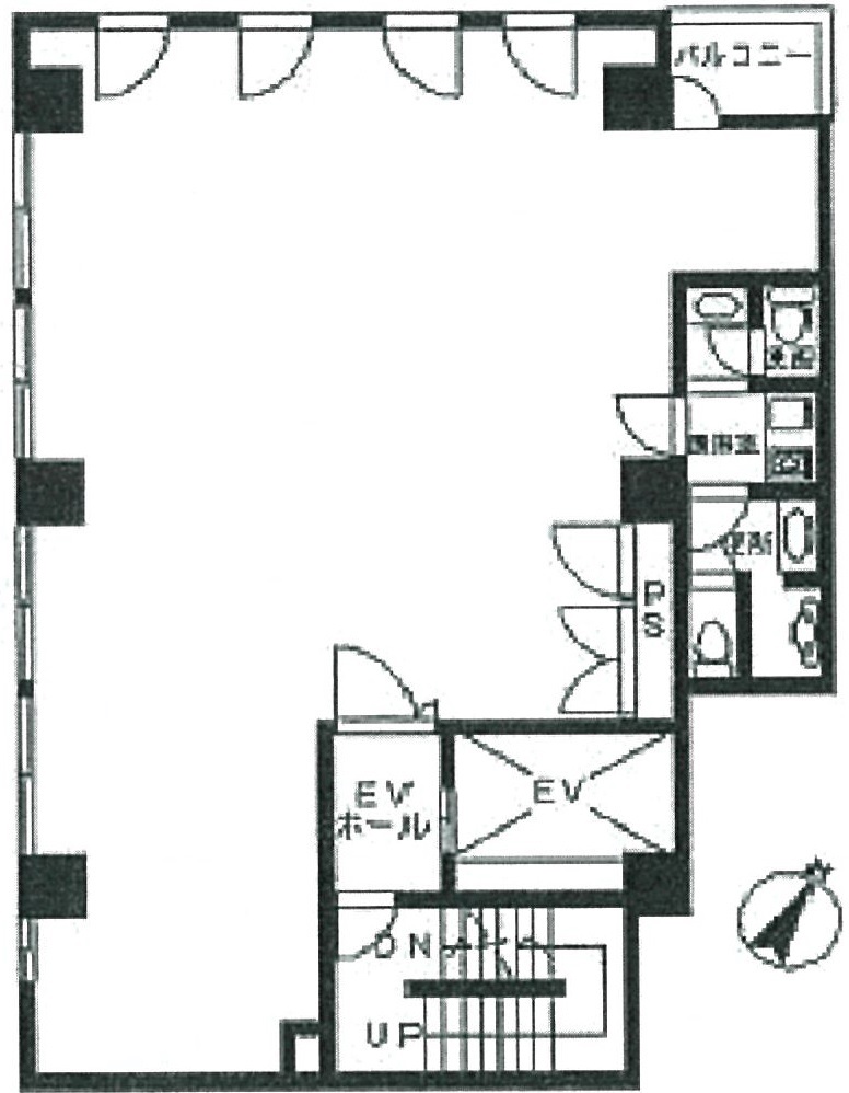
ナカシゲビルは、中央区築地3丁目に位置する、ビジネスシーンに最適な賃貸オフィスビルです。1987年に竣工されたこのビルは、白い吹き付けの外観が特徴的で、レトロかつクラシックな雰囲気を醸し出しています。7階建てのこのビルでは、各階が約31坪の広さを有しており、基準階は1フロアに1テナントが入ることができる構造となっています。特に重要なのは、貸室内に男女別トイレが完備されており、プライバシーと利便性を同時に確保している点です。 ナカシゲビルの最大の魅力はその立地の良さにあります。築地駅から徒歩わずか2分の位置にあり、新富町駅や東銀座駅も利用可能で、3駅2路線が使えるため、都内各地へのアクセスが非常に便利です。新大橋通りから一本入ったところに位置しているため、周辺は落ち着いた環境ながらも、コンビニや飲食店、銀行など日常生活に必要な施設が充実しており、ビジネスに必要なサポート環境が整っています。 オフィスの内装にもこだわりがあり、ほぼL字型の形状で柱が少ないため、レイアウトの自由度が高く、テナントのニーズに合わせたオフィス作りが可能です。個別空調システムを採用しており、各テナントが快適な室温を自由に調節できるのも大きなメリットです。また、給湯スペースや洗面台、バルコニーなど、ビジネスに欠かせない設備も充実しています。 エントランスはベージュのタイルが敷かれ、温かみのあるウェルカムスペースが訪れる人々を迎えます。エレベーターは1基設置されており、スムーズな移動をサポートしています。このように、ナカシゲビルは、外観から内装に至るまで、ビジネスニーズを満たすための様々な工夫が施された質の高いオフィススペースを提供しています。 ナカシゲビルは、その立地の良さ、豊富な周辺施設、充実したビル設備という三つの強みを兼ね備えたビルです。これらの特徴が組み合わさることで、テナント企業のビジネスの発展を強力にサポートし、働く人々にとって最適な環境を提供しています。ビジネスの拠点として、ナカシゲビルは非常に魅力的なオプションの一つと言えるでしょう。
自分で探すより問い合わせる方が早いことがあります
WEB非公開物件があるから
オーナー様のご希望により「WEBでは非公開」にしている物件があります。 それらはWEBでいくら検索しても見つかりません。 先ずは条件などお知らせ頂けましたら非公開物件含め ピッタリのオフィスをご提案させて頂きます。 無理なお勧めはしておりませんので、お気軽にお問い合わせください。
対面でのご相談も受け付けております
ご来店も歓迎です
オフィス移転は社内・社外ともに非公開に行われることが殆どです。そのためアットオフィスでは、基本的に訪問によるコンサルティングを行っておりますが、ご来店の相談も歓迎です。お一人おひとりに親身にご対応させて頂きたい為、要予約とさせて頂いております。ご来店の際は先ずは下記よりご予約下さい。
新富/築地エリアでナカシゲビルに似た条件の物件
読込中...
ナカシゲビルと同じ最寄駅の物件
読込中...
| 取扱様態 | 仲介 |
|---|---|
| 取扱会社 | 株式会社 アットオフィス |