Shinto銀座ビル7階の賃貸情報
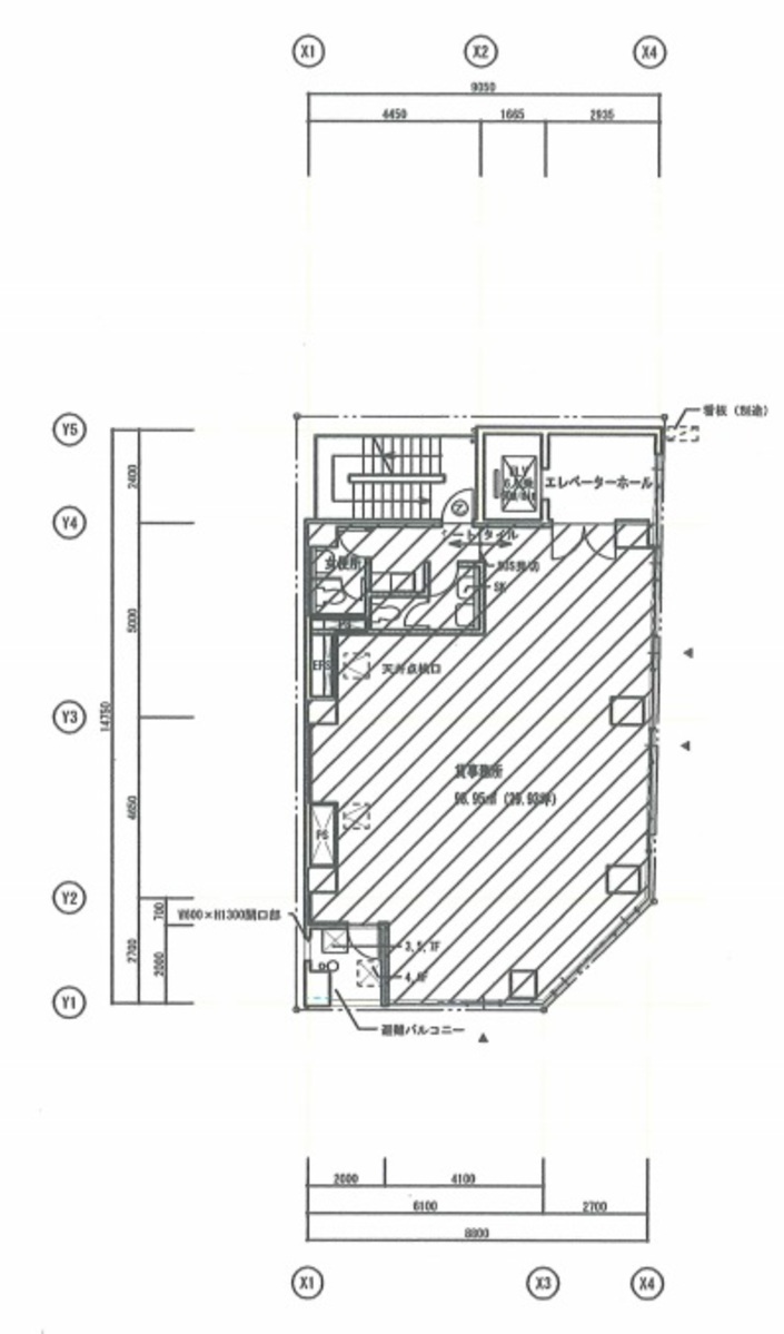
29.96 坪 (99.05m²)
※このサイトに記載がある賃貸条件は、敷金・保証金などの預かり金を除き、別途消費税がかかります。
Shinto銀座ビルの建物概要
設備詳細
| 空調 | 個別空調 |
|---|---|
| トイレ | - |
| 床仕様 | OA対応床(フリーアクセス) |
| エレベータ | 1 基 |
| 駐車場設備 | - |
| その他 | 新耐震基準 / 機械警備 / 24時間利用可 |
Shinto銀座ビル7階の賃貸オフィス・事務所に関するお問い合わせ
Shinto銀座ビルについて
東京都中央区築地2丁目、ビジネスと歴史が交差する地に佇む「ヒューリック築地ビル」は、1988年に竣工し、新耐震基準に適合したオフィスビルです。この物件は、その立地と設備の良さから、多くの企業にとって魅力的なオフィススペースとしての位置づけが高まっています。 立地の面では、ビルは中央区築地2-14-1に位置し、最寄りの築地駅から徒歩わずか2分の距離にあります。このアクセスの良さは、従業員やビジネスパートナーとの円滑なコミュニケーションを促進し、企業活動における効率性を高める要素となります。築地市場がかつて存在したこの地域は、現在も飲食店や商業施設が豊富にあり、ビジネス後の懇親やクライアントとの会食にも便利な立地条件を有しています。 設備面において、ヒューリック築地ビルは機能性と利便性を兼ね備えています。ビル内には駐車場が設置されており、来客や従業員のための駐車スペースが確保されています。また、エレベーターは1機設置されており、スムーズな移動をサポートします。オフィス内では、機械警備による安全対策が講じられ、個別空調システムによる快適な作業環境が整えられています。さらに、男女別トイレも完備されており、働く人々の利便性が考慮されています。 ビルが提供するこれらの設備は、ビジネスの日々の運営において欠かせない要素です。安全性と利便性を確保することは、従業員の満足度向上や生産性の向上に直結し、企業の競争力を高めることに貢献します。 ヒューリック築地ビルは、その立地の良さ、充実した設備、そして新耐震基準に適合した安全性を兼ね備えたオフィスビルとして、多くの企業にとって理想的なオフィススペースと言えるでしょう。これらの特性は、企業がビジネスを展開し、成長する上で重要なサポートを提供します。
Shinto銀座ビルのこだわり
自分で探すより問い合わせる方が早いことがあります
WEB非公開物件があるから
オーナー様のご希望により「WEBでは非公開」にしている物件があります。 それらはWEBでいくら検索しても見つかりません。 先ずは条件などお知らせ頂けましたら非公開物件含め ピッタリのオフィスをご提案させて頂きます。 無理なお勧めはしておりませんので、お気軽にお問い合わせください。
対面でのご相談も受け付けております
ご来店も歓迎です
オフィス移転は社内・社外ともに非公開に行われることが殆どです。そのためアットオフィスでは、基本的に訪問によるコンサルティングを行っておりますが、ご来店の相談も歓迎です。お一人おひとりに親身にご対応させて頂きたい為、要予約とさせて頂いております。ご来店の際は先ずは下記よりご予約下さい。
新富/築地エリアでShinto銀座ビルに似た条件の物件
読込中...
Shinto銀座ビルと同じ最寄駅の物件
読込中...
| 取扱様態 | 仲介 |
|---|---|
| 取扱会社 | 株式会社 アットオフィス |