COLOR・US銀座東8階の賃貸情報
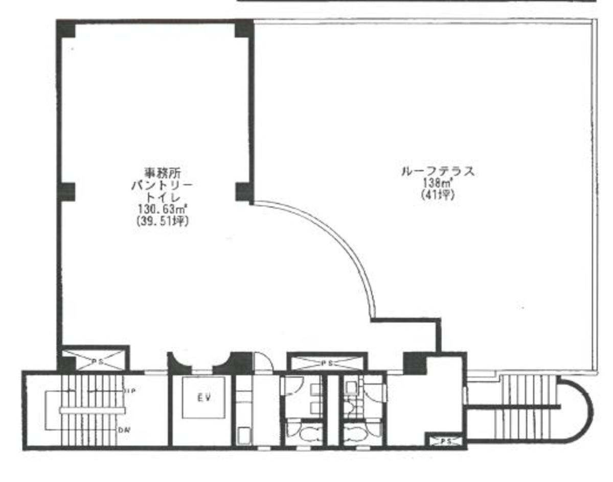
39.51 坪 (130.63m²)
※このサイトに記載がある賃貸条件は、敷金・保証金などの預かり金を除き、別途消費税がかかります。
COLOR・US銀座東の建物概要
設備詳細
| 空調 | - |
|---|---|
| トイレ | - |
| 床仕様 | - |
| エレベータ | 1 基 |
| 駐車場設備 | 空有 |
| その他 | 光ファイバー / 新耐震基準 |
COLOR・US銀座東について
金鵄ビルは、ビジネスの中心地である中央区新富2丁目に位置する、1988年竣工の優れたオフィスビルです。本ビルは新耐震基準を満たした構造であり、安全性においても高い信頼を誇ります。その上、ビル内に設置された駐車場という貴重な設備は、都心でのビジネスにおける大きな利点となり得ます。 建物は8階建てで、基準階は約92坪となっており、各フロアで異なる坪数を提供しています。これにより、多様なビジネスサイズに対応する柔軟性を持つ物件です。内装に関しては、日当たりが良好で明るい室内空間が魅力的です。窓面が複数存在することで、開放感のある働きやすい環境を提供しています。 また、個別空調システムを導入しており、各テナントが快適な室温を自由に調整できる点も見逃せません。OAフロア仕様であるため、オフィスのレイアウト変更やIT設備の導入も容易に行えます。男女別のトイレ、給湯スペースも完備し、ビジネス環境をしっかりとサポートします。 セキュリティ面では、機械警備システムを導入しており、入居企業と従業員の安全を守ります。重厚感のある石作りのエントランスや、手入れの行き届いた外観は、ビジネスの顔としての印象を強くします。 立地においては、新富町駅から徒歩2分というアクセスの良さを誇ります。また、築地駅も徒歩圏内にあり、都心へのアクセスも容易です。新大橋通りに面しており、周辺には飲食店が豊富にあり、ビジネスに必要な利便性を備えています。さらに、住宅地にも近く、閑静な環境で集中して仕事に取り組むことが可能です。 金鵄ビルは、高い安全基準、優れた設備、抜群の立地という3つの大きな魅力を持つ賃貸オフィスビルです。多様なニーズに応える空間提供として、ビジネスの成功をサポートする理想的な物件と言えるでしょう。
COLOR・US銀座東のこだわり
その他の区画
自分で探すより問い合わせる方が早いことがあります
WEB非公開物件があるから
オーナー様のご希望により「WEBでは非公開」にしている物件があります。 それらはWEBでいくら検索しても見つかりません。 先ずは条件などお知らせ頂けましたら非公開物件含め ピッタリのオフィスをご提案させて頂きます。 無理なお勧めはしておりませんので、お気軽にお問い合わせください。
対面でのご相談も受け付けております
ご来店も歓迎です
オフィス移転は社内・社外ともに非公開に行われることが殆どです。そのためアットオフィスでは、基本的に訪問によるコンサルティングを行っておりますが、ご来店の相談も歓迎です。お一人おひとりに親身にご対応させて頂きたい為、要予約とさせて頂いております。ご来店の際は先ずは下記よりご予約下さい。
新富/築地エリアでCOLOR・US銀座東に似た条件の物件
読込中...
COLOR・US銀座東と同じ最寄駅の物件
読込中...
| 取扱様態 | 仲介 |
|---|---|
| 取扱会社 | 株式会社 アットオフィス |