東武高輪第2ビル3階の賃貸情報
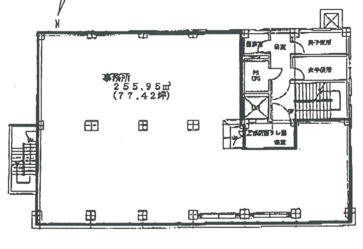
77.42 坪 (255.93m²)
※このサイトに記載がある賃貸条件は、敷金・保証金などの預かり金を除き、別途消費税がかかります。
東武高輪第2ビルの建物概要
設備詳細
| 空調 | 個別空調 |
|---|---|
| トイレ | - |
| 床仕様 | - |
| エレベータ | 1 基 |
| 駐車場設備 | 空無 |
| その他 | 機械警備 / 24時間利用可 / 新耐震基準 |
東武高輪第2ビル3階の賃貸オフィス・事務所に関するお問い合わせ
東武高輪第2ビルについて
東京のビジネスの中心地、港区高輪に位置する「東武高輪第2ビル」は、その独特な立地と機能的な設備で、企業のニーズに応える賃貸オフィス空間を提供しています。このビルは、地上5階・地下1階建てで、基準階のオフィススペースは約77.5坪の広さを誇ります。長方形に近いL字型の間取りが特徴で、効率的なオフィスレイアウトを実現します。 立地においては、坂道に面しているために独特なエントランス配置があります。メインエントランスは2階部分に位置しており、一段下がった1階入口外には便利な平面駐車場を併設。ビジネスマンにとって日々の通勤や訪問客のアクセスが容易になるよう配慮されています。また、エントランス内には自動販売機とスモーキングルームがあり、ビル内での快適さを追求しています。 セキュリティ面では、機械式警備を採用し、テナント企業の安心と安全を守ります。個別空調システムも完備されており、オフィス内の環境を自由にコントロールできるため、一年中快適に仕事に取り組むことが可能です。 周辺環境も魅力の一つです。ビルは伊皿子坂と第一京浜をむすぶ路地沿いに位置し、周辺にはコンビニや創作ダイニングのお店、個人商店があり、日常の買い物やランチに便利。さらに、大通りに出れば、さまざまなランチスポットが豊富にあります。歴史的な泉岳寺や高輪大木戸跡交差点も近く、落ち着いた雰囲気の中でビジネスを行うことができます。 このビルの最大の魅力は、将来的に山手線の新駅が誕生することで、さらに利便性が高まることが期待されている点です。これにより、企業のアクセス性が向上し、ビジネスの拠点としてさらに魅力的な場所になることでしょう。 東武高輪第2ビルは、その立地、設備、そして周辺環境のバランスが取れたビルとして、企業の皆様にとって最適なオフィス空間を提供します。仕事の効率化と従業員の満足度向上のために、ぜひこのビルをご検討ください。
東武高輪第2ビルのこだわり
自分で探すより問い合わせる方が早いことがあります
WEB非公開物件があるから
オーナー様のご希望により「WEBでは非公開」にしている物件があります。 それらはWEBでいくら検索しても見つかりません。 先ずは条件などお知らせ頂けましたら非公開物件含め ピッタリのオフィスをご提案させて頂きます。 無理なお勧めはしておりませんので、お気軽にお問い合わせください。
対面でのご相談も受け付けております
ご来店も歓迎です
オフィス移転は社内・社外ともに非公開に行われることが殆どです。そのためアットオフィスでは、基本的に訪問によるコンサルティングを行っておりますが、ご来店の相談も歓迎です。お一人おひとりに親身にご対応させて頂きたい為、要予約とさせて頂いております。ご来店の際は先ずは下記よりご予約下さい。
近くのエリアで探してみる
港南/高輪/白金台/(品川駅)エリアで東武高輪第2ビルに似た条件の物件
読込中...
東武高輪第2ビルと同じ最寄駅の物件
読込中...
| 取扱様態 | 仲介 |
|---|---|
| 取扱会社 | 株式会社 アットオフィス |