※このサイトに記載がある賃貸条件は、敷金・保証金などの預かり金を除き、別途消費税がかかります。
物件情報
設備詳細
| 空調 | 個別空調 |
|---|---|
| トイレ | - |
| 床仕様 | OA対応床(フリーアクセス) |
| エレベータ | 2 基 |
| 駐車場設備 | 空有 |
| その他 | 機械警備 / 光ファイバー / 新耐震基準 / 24時間利用可 / 保証金・敷金+礼金が3か月以下 |
FBR三田ビルの賃貸オフィス・事務所に関するお問い合わせ
FBR三田ビルについて
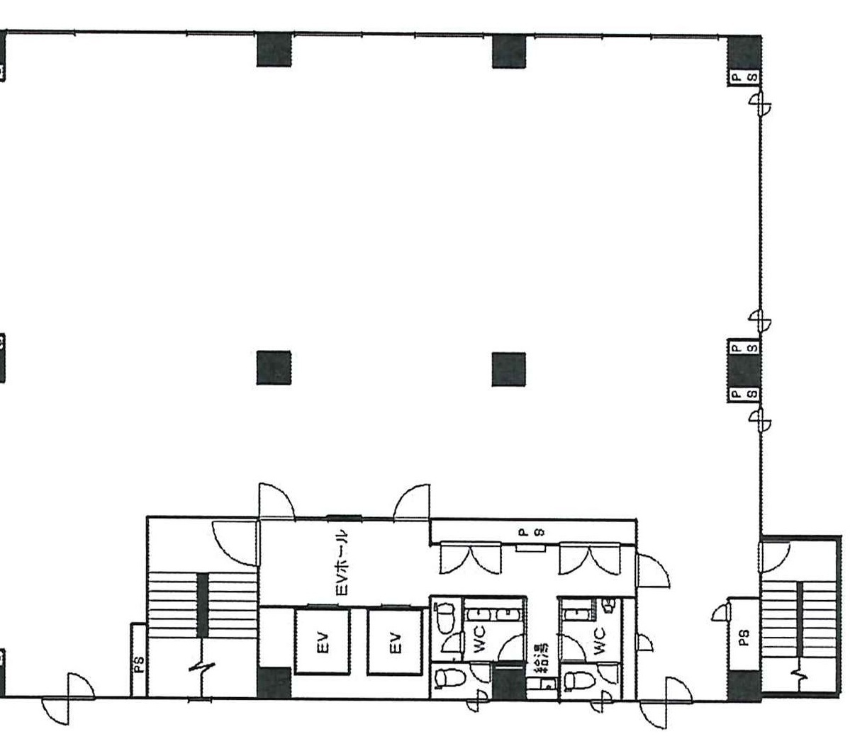
FBR三田ビルは、1993年に竣工し、2006年にはさらに魅力を増すためのリニューアル工事を完了した、港区三田に位置する賃貸オフィス物件です。このビルは、基準階約103坪という広々とした賃貸スペースを提供し、快適なオフィス環境を求める企業に最適な選択肢を提供します。ビルのデザインは先進的でありながら、各室がコの字型に設計されており、4方全てに窓がついているため、自然光が豊富で開放感があります。これは、働く社員の生産性と満足度を高めるための重要な要素です。 立地においても、FBR三田ビルは桜田通り沿いという、交通量の多い便利なエリアに位置しています。最寄り駅である白金高輪駅、三田駅が徒歩圏内にあり、複数の公共交通機関へのアクセスが容易です。これにより、ビジネスパートナーやクライアントとのアクセスの利便性が高まります。さらに、周辺には郵便局やホームセンター、コンビニエンスストアなどがあり、日々の業務に必要なものを容易に手に入れることができるため、ビジネスの効率化に貢献します。 ビルの設備についても、24時間利用可能な機械警備システムを導入し、セキュリティ面でも安心です。また、エレベーターは2基設置されており、頻繁な移動が必要なビジネスシーンでもスムーズな動きを支えます。オフィス内には、個室トイレや給湯スペースがあり、従業員の快適さを考慮した設計となっています。さらに、新耐震基準を満たした建物であるため、安全性にも配慮されています。 FBR三田ビルは、立地の利便性、快適なオフィス環境、安心のセキュリティと耐震性、そして周辺環境の豊かさを兼ね備えた、企業にとって理想的なオフィススペースを提供します。これらの特徴を活かし、企業がさらなる成長を遂げるための基盤として、FBR三田ビルは最適な選択となるでしょう。ビジネスのフロントラインで活躍するあなたに、このビルを強くお勧めします。
FBR三田ビルのこだわり
自分で探すより問い合わせる方が早いことがあります
WEB非公開物件があるから
オーナー様のご希望により「WEBでは非公開」にしている物件があります。 それらはWEBでいくら検索しても見つかりません。 先ずは条件などお知らせ頂けましたら非公開物件含め ピッタリのオフィスをご提案させて頂きます。 無理なお勧めはしておりませんので、お気軽にお問い合わせください。
対面でのご相談も受け付けております
ご来店も歓迎です
オフィス移転は社内・社外ともに非公開に行われることが殆どです。そのためアットオフィスでは、基本的に訪問によるコンサルティングを行っておりますが、ご来店の相談も歓迎です。お一人おひとりに親身にご対応させて頂きたい為、要予約とさせて頂いております。ご来店の際は先ずは下記よりご予約下さい。
募集終了のテナント区画
| 階数 | 坪数 | 賃料 + 共益費 | 敷金/礼金敷金 礼金 | 検討 |
|---|---|---|---|---|
| 2階 | 51.14坪 (169.06m²) | 募集終了 | - | - |
| 3階 | 118.07坪 (390.31m²) | 募集終了 | - | - |
| 6階 | 103.82坪 (343.21m²) | 募集終了 | - | - |
| 7階 | 103.82坪 (343.21m²) | 募集終了 | - | - |
| 8階 | 53.53坪 (176.96m²) | 募集終了 | - | - |
読込中...
近くのエリアで探してみる
浜松町/田町/芝公園エリアでFBR三田ビルに似た条件の物件
読込中...
| 取扱様態 | 仲介 |
|---|---|
| 取扱会社 | 株式会社 アットオフィス |