日本生命三田ビル7階の賃貸情報
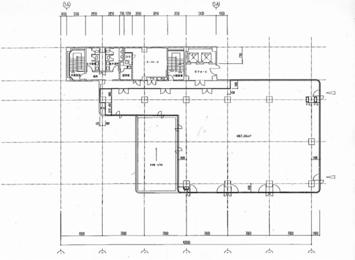
147.39 坪 (487.26m²)
※このサイトに記載がある賃貸条件は、敷金・保証金などの預かり金を除き、別途消費税がかかります。
日本生命三田ビルの建物概要
設備詳細
| 空調 | 個別空調 |
|---|---|
| トイレ | 男女別トイレ室外 |
| 床仕様 | OA対応床(フリーアクセス) |
| エレベータ | 2 基 |
| 駐車場設備 | 空有 / 機械式駐車場 |
| その他 | 大型ビル / 24時間利用可 / 機械警備 / 新耐震基準 / オートロック / デザイナーズ |
日本生命三田ビル7階の賃貸オフィス・事務所に関するお問い合わせ
日本生命三田ビルについて
東京都港区三田に位置する日本生命三田ビルは、1985年に竣工した、地上8階建ての賃貸オフィスビルです。このビルは、新耐震基準に適合した鉄骨鉄筋コンクリート造りで、安心してビジネスを行うことができる堅牢な構造を誇ります。基準階面積は約240坪で、広々としたオフィススペースが魅力的です。柱の配置も考慮されており、レイアウトの自由度が非常に高いことが特徴です。各フロアには、セントラル空調とOAフロアが完備されており、快適なオフィス環境を提供します。また、ビル内にはエレベーターが2基設置されており、スムーズな移動が可能です。 立地においても、日本生命三田ビルは抜群のアクセスを誇ります。最寄りの泉岳寺駅からは徒歩わずか2分、複数の路線が利用可能な高輪ゲートウェイ駅も徒歩9分と、都心へのアクセスが非常に便利です。また、第一京浜に面しており、車でのアクセスも良好で、視認性にも優れています。これらの点から、ビジネスの拠点として最適な環境が整っています。 ビル内の設備には、最大21台を収容可能な機械式駐車場、光ファイバーの完備、24時間利用可能なセキュリティシステムが含まれます。これにより、ビジネスの安全性と効率性を高め、企業活動をサポートします。 周辺環境も魅力の一つです。オフィスビルが立ち並ぶ活気あるエリアでありながら、飲食店やコンビニエンスストアが豊富にあり、日常の利便性が高い地域です。また、近隣にはバンクATM、郵便局、公園などもあり、ビジネスだけでなく、従業員の生活環境にも優れています。 日本生命三田ビルは、ビジネスの成功を支える堅牢な構造、抜群の立地、充実した設備、そして活気ある周辺環境を兼ね備えた賃貸オフィスビルです。これらの特長を生かし、企業の成長と発展を強力にサポートする環境を提供いたします。お問い合わせを心よりお待ちしております。
自分で探すより問い合わせる方が早いことがあります
WEB非公開物件があるから
オーナー様のご希望により「WEBでは非公開」にしている物件があります。 それらはWEBでいくら検索しても見つかりません。 先ずは条件などお知らせ頂けましたら非公開物件含め ピッタリのオフィスをご提案させて頂きます。 無理なお勧めはしておりませんので、お気軽にお問い合わせください。
対面でのご相談も受け付けております
ご来店も歓迎です
オフィス移転は社内・社外ともに非公開に行われることが殆どです。そのためアットオフィスでは、基本的に訪問によるコンサルティングを行っておりますが、ご来店の相談も歓迎です。お一人おひとりに親身にご対応させて頂きたい為、要予約とさせて頂いております。ご来店の際は先ずは下記よりご予約下さい。
近くのエリアで探してみる
浜松町/田町/芝公園エリアで日本生命三田ビルに似た条件の物件
読込中...
日本生命三田ビルと同じ最寄駅の物件
読込中...
| 取扱様態 | 仲介 |
|---|---|
| 取扱会社 | 株式会社 アットオフィス |