MAビル三田Ⅱの賃料条件
| 階数 | 坪数 | 賃料 + 共益費 | 敷金/礼金敷金 礼金 | 検討 |
|---|---|---|---|---|
| 3階 | 59.88坪 (197.96m²) | 1,257,480円 (坪:21,000 円) | 6ヶ月 無6ヶ月/無 |
※このサイトに記載がある賃貸条件は、敷金・保証金などの預かり金を除き、別途消費税がかかります。
物件情報
設備詳細
| 空調 | 個別空調 |
|---|---|
| トイレ | 男女別トイレ室内 |
| 床仕様 | OA対応床(フリーアクセス) |
| エレベータ | 1 基 |
| 駐車場設備 | - |
| その他 | 機械警備 / 管理人常駐 / 光ファイバー / 24時間利用可 / フリーレント |
MAビル三田Ⅱの賃貸オフィス・事務所に関するお問い合わせ
MAビル三田Ⅱについて
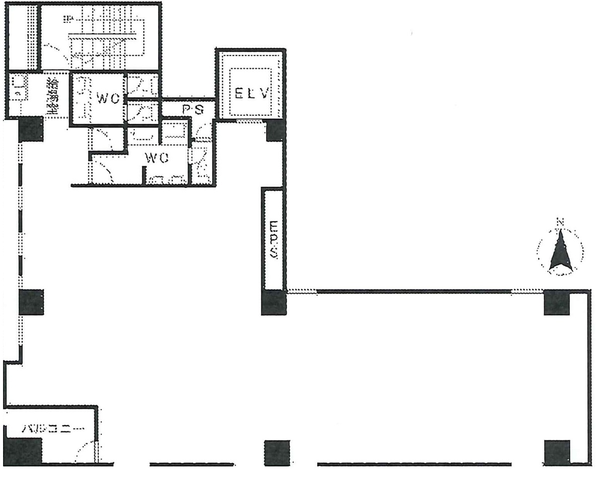
MAビル三田2は、東京都港区芝に位置する、1992年に竣工した地上9階建て(地下1階含む)の賃貸オフィスビルです。この物件の最大の魅力は、その立地条件にあります。最寄り駅の三田駅(都営地下鉄)までは徒歩7分、JR線の田町駅までは徒歩10分と、複数の交通網へのアクセスが非常に良好です。これにより、ビジネスでの移動が頻繁な企業や、新幹線や空港へのアクセスが必要な企業にとって、最適な立地条件を提供します。 物件自体は、格子模様の正面窓面や石造りの低層階が特徴的で、外観から高級感が感じられます。基準階の面積は約60坪で、L字型の間取りが特徴的です。各オフィスフロアはOAフロアを完備しており、現代のビジネスニーズに応える設備が整っています。貸室内には男女別トイレと給湯スペースが設けられており、プライバシーと利便性を兼ね備えています。 セキュリティ面においても、管理人が常駐し、機械警備も完備されているため、入居企業は安心して業務を遂行することができます。また、11人乗りのエレベーターが1基設置されており、快適な移動が可能です。 周辺環境も魅力の一つで、多数の飲食店が立ち並び、ビジネスランチやアフター5の利用に便利です。コンビニエンスストアや郵便局、メガバンクの支店も近く、日常的な業務のニーズに応える充実した設備が整っています。さらに、慶應義塾大学三田キャンパスが近隣にあり、学生街とオフィス街が融合した活気あるエリアです。 MAビル三田2は、その立地の利便性、充実した設備、安心のセキュリティ、そして周辺環境の豊かさといった、ビジネスを行う上で求められる要素を総合的に兼ね備えたオフィスビルです。これらの特徴から、多様な業種の企業にとって魅力的なオフィススペースと言えるでしょう。
MAビル三田Ⅱのこだわり
自分で探すより問い合わせる方が早いことがあります
WEB非公開物件があるから
オーナー様のご希望により「WEBでは非公開」にしている物件があります。 それらはWEBでいくら検索しても見つかりません。 先ずは条件などお知らせ頂けましたら非公開物件含め ピッタリのオフィスをご提案させて頂きます。 無理なお勧めはしておりませんので、お気軽にお問い合わせください。
対面でのご相談も受け付けております
ご来店も歓迎です
オフィス移転は社内・社外ともに非公開に行われることが殆どです。そのためアットオフィスでは、基本的に訪問によるコンサルティングを行っておりますが、ご来店の相談も歓迎です。お一人おひとりに親身にご対応させて頂きたい為、要予約とさせて頂いております。ご来店の際は先ずは下記よりご予約下さい。
募集終了のテナント区画
| 階数 | 坪数 | 賃料 + 共益費 | 敷金/礼金敷金 礼金 | 検討 |
|---|---|---|---|---|
| 4階 | 59.88坪 (197.95m²) | 募集終了 | - | - |
| 9階 | 59.88坪 (197.96m²) | 募集終了 | - | - |
読込中...
近くのエリアで探してみる
浜松町/田町/芝公園エリアでMAビル三田Ⅱに似た条件の物件
読込中...
| 取扱様態 | 仲介 |
|---|---|
| 取扱会社 | 株式会社 アットオフィス |