※このサイトに記載がある賃貸条件は、敷金・保証金などの預かり金を除き、別途消費税がかかります。
物件情報
設備詳細
| 空調 | 個別空調 |
|---|---|
| トイレ | - |
| 床仕様 | OA対応床(フリーアクセス) |
| エレベータ | 1 基 |
| 駐車場設備 | 空有 / 機械式駐車場 |
| その他 | 新耐震基準 |
新明ビルの賃貸オフィス・事務所に関するお問い合わせ
新明ビルについて
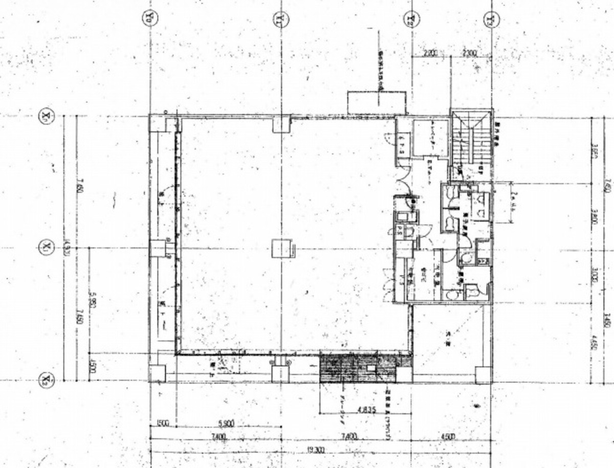
新明ビルは、中央区明石町に位置する1993年竣工のオフィスビルで、新耐震基準に則り建設されたことで安全性に優れています。この物件は大通りに面しており、アクセスの利便性が高いことが特徴です。また、ビル内に駐車場が設けられており、利用者の利便性を高めています。利用可能な駐車場の空き状況に関しては、お問い合わせいただく必要があります。ビルには1機のエレベーターが設置されており、スムーズな移動をサポートします。 新明ビルの最寄り駅は新富町駅で、周辺には佃大橋があり、築地駅や八丁堀駅へのアクセスも徒歩圏内という便利な立地条件を備えています。この物件は、重厚感のある外観とエントランスが特徴で、管理状態が良好であるため、訪れる人を良い印象で迎え入れます。また、建物は真四角の形状で、窓面が多く設けられているため、光が豊富に差し込む明るい室内環境を提供します。ただし、中央付近に柱があるため、オフィスのレイアウトを計画する際には工夫が必要です。 設備面では、機械警備システム、OAフロア、男女別のトイレなど、オフィスビルとして求められる機能が充実しています。これらの設備は、企業が快適にかつ効率的に業務を行えるようサポートし、ビジネスの成長を促進します。 新明ビルは、その立地、安全性、快適な環境、充実した設備を通じて、企業にとって理想的なオフィススペースを提供します。特に、交通の利便性と周辺環境の良さは、従業員の満足度向上やビジネスの拡大に寄与する可能性があります。このビルを拠点に、企業はさらなる飛躍を目指すことができるでしょう。
自分で探すより問い合わせる方が早いことがあります
WEB非公開物件があるから
オーナー様のご希望により「WEBでは非公開」にしている物件があります。 それらはWEBでいくら検索しても見つかりません。 先ずは条件などお知らせ頂けましたら非公開物件含め ピッタリのオフィスをご提案させて頂きます。 無理なお勧めはしておりませんので、お気軽にお問い合わせください。
対面でのご相談も受け付けております
ご来店も歓迎です
オフィス移転は社内・社外ともに非公開に行われることが殆どです。そのためアットオフィスでは、基本的に訪問によるコンサルティングを行っておりますが、ご来店の相談も歓迎です。お一人おひとりに親身にご対応させて頂きたい為、要予約とさせて頂いております。ご来店の際は先ずは下記よりご予約下さい。
募集終了のテナント区画
| 階数 | 坪数 | 賃料 + 共益費 | 敷金/礼金敷金 礼金 | 検討 |
|---|---|---|---|---|
| 1階 | 42.3坪 (139.83m²) | 募集終了 | - | - |
| 3階 | 64.45坪 (213.06m²) | 募集終了 | - | - |
| 4階 | 64.45坪 (213.05m²) | 募集終了 | - | - |
| 5階 | 64.45坪 (213.05m²) | 募集終了 | - | - |
| 6階 | 64.45坪 (213.05m²) | 募集終了 | - | - |
| 7階 | 64.45坪 (213.05m²) | 募集終了 | - | - |
読込中...
新富/築地エリアで新明ビルに似た条件の物件
読込中...
| 取扱様態 | 仲介 |
|---|---|
| 取扱会社 | 株式会社 アットオフィス |