銀座あづまビルB1階の賃貸情報
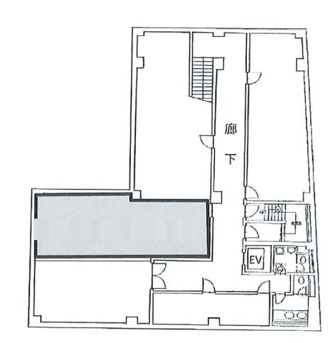
18.71 坪 (61.85m²)
※このサイトに記載がある賃貸条件は、敷金・保証金などの預かり金を除き、別途消費税がかかります。
銀座あづまビルの建物概要
設備詳細
| 空調 | - |
|---|---|
| トイレ | 男女別トイレ室外 |
| 床仕様 | - |
| エレベータ | 1 基 |
| 駐車場設備 | - |
| その他 | 光ファイバー / 新耐震基準 / 機械警備 / スケルトン / 店舗可(飲食可) |
銀座あづまビルB1階の賃貸オフィス・事務所に関するお問い合わせ
銀座あづまビルについて
銀座あづまビルは、東京都中央区銀座5丁目に位置し、ビジネスと文化が交錯する銀座地区の中心部にふさわしい、質の高いオフィス空間を提供する物件です。このビルは1983年に竣工し、新耐震基準に則った施工がなされており、安全性に関して高い信頼をおいております。地上6階、地下1階建てのこの建物は、基準階で60坪を超える広々とした貸事務所スペースを有し、各企業のニーズに合わせた柔軟なオフィス環境を提供します。 銀座あづまビルの1~2階はガラス張りで、飲食店や紅茶専門店が入居しており、ビル内外からのアクセスが容易で、ビジネスとレジャーの両方に対応する活気ある環境を提供します。また、ビル内には駐車場が設けられており、空き状況はお問い合わせいただくことで、来客や社員の方々の利便性を高めております。 立地に関しては、最寄り駅である銀座駅から徒歩1分という非常に利便性の高い位置にあり、JR線の有楽町駅など複数の駅が周辺にあり、東京都内はもちろん、首都圏外へのアクセスも容易です。銀座あづまビルは、銀座の中心部に位置することから、ランチスポットやショッピング、文化施設などが充実しており、ビジネスだけでなく、生活の利便性も高い点が大きな魅力です。 ビルの周辺環境も魅力の一つで、隣接するレンガ風デザインのカフェや、南側に位置する松坂屋跡地に誕生した新たな複合施設など、賑やかで華やかなエリアが広がっています。このような環境は、企業のブランドイメージ向上にも寄与し、従業員の方々のモチベーションアップにも繋がります。 エレベーターは1機設置されており、エントランスから細長い廊下を通り、奥に位置することで、来客の動線がスムーズです。また、ビル内には自動販売機が設置されるなど、利用者の快適性も考慮されています。 銀座あづまビルは、立地、設備、安全性、周辺環境ともに優れたビルであり、ビジネスの拠点としての利用はもちろん、企業のブランド価値を高める地としても最適です。そのため、銀座でオフィスを検討されている企業様には、ぜひ一度ご覧いただきたい物件でございます。
その他の区画
| 階数 | 坪数 | 賃料 + 共益費 | 敷金/礼金敷金 礼金 | 検討 |
|---|---|---|---|---|
| 5階 | 70.86坪 (234.24m²) | 2,001,531円 (坪:28,246 円) | 3ヶ月 無3ヶ月/無 |
自分で探すより問い合わせる方が早いことがあります
WEB非公開物件があるから
オーナー様のご希望により「WEBでは非公開」にしている物件があります。 それらはWEBでいくら検索しても見つかりません。 先ずは条件などお知らせ頂けましたら非公開物件含め ピッタリのオフィスをご提案させて頂きます。 無理なお勧めはしておりませんので、お気軽にお問い合わせください。
対面でのご相談も受け付けております
ご来店も歓迎です
オフィス移転は社内・社外ともに非公開に行われることが殆どです。そのためアットオフィスでは、基本的に訪問によるコンサルティングを行っておりますが、ご来店の相談も歓迎です。お一人おひとりに親身にご対応させて頂きたい為、要予約とさせて頂いております。ご来店の際は先ずは下記よりご予約下さい。
銀座エリアで銀座あづまビルに似た条件の物件
読込中...
銀座あづまビルと同じ最寄駅の物件
読込中...
| 取扱様態 | 仲介 |
|---|---|
| 取扱会社 | 株式会社 アットオフィス |