東栄産業日暮里駅前第3ビル8階の賃貸情報
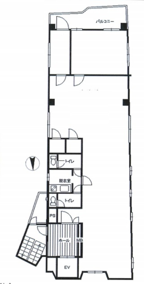
38.2 坪 (126.29m²)
※このサイトに記載がある賃貸条件は、敷金・保証金などの預かり金を除き、別途消費税がかかります。
東栄産業日暮里駅前第3ビルの建物概要
設備詳細
| 空調 | - |
|---|---|
| トイレ | - |
| 床仕様 | OA対応床(フリーアクセス) |
| エレベータ | 1 基 |
| 駐車場設備 | - |
| その他 | 24時間利用可 / 新耐震基準 / 東京賃料が坪11000円以下 |
東栄産業日暮里駅前第3ビル8階の賃貸オフィス・事務所に関するお問い合わせ
東栄産業日暮里駅前第3ビルについて
東栄産業日暮里駅前第3は、東日暮里5丁目にあるオフィスビルです。日暮里駅から徒歩2分の駅近物件です。1992年に竣工しました。鉄骨造により耐震性に優れています。エレベーターが1基あります。個別空調付きです。クリニックとして利用できます。24時間利用が可能です。周辺には飲食店や専門店、美容サロンがあります。近隣にはマンションやビジネスホテルが立ち並んでいます。裏通りに位置していますが、道幅のある通りです。駅前通りに位置するため、自転車や歩行者が利用しやすいエリアです。
自分で探すより問い合わせる方が早いことがあります
WEB非公開物件があるから
オーナー様のご希望により「WEBでは非公開」にしている物件があります。 それらはWEBでいくら検索しても見つかりません。 先ずは条件などお知らせ頂けましたら非公開物件含め ピッタリのオフィスをご提案させて頂きます。 無理なお勧めはしておりませんので、お気軽にお問い合わせください。
対面でのご相談も受け付けております
ご来店も歓迎です
オフィス移転は社内・社外ともに非公開に行われることが殆どです。そのためアットオフィスでは、基本的に訪問によるコンサルティングを行っておりますが、ご来店の相談も歓迎です。お一人おひとりに親身にご対応させて頂きたい為、要予約とさせて頂いております。ご来店の際は先ずは下記よりご予約下さい。
荒川区エリアで東栄産業日暮里駅前第3ビルに似た条件の物件
読込中...
東栄産業日暮里駅前第3ビルと同じ最寄駅の物件
読込中...
| 取扱様態 | 仲介 |
|---|---|
| 取扱会社 | 株式会社 アットオフィス |