※このサイトに記載がある賃貸条件は、敷金・保証金などの預かり金を除き、別途消費税がかかります。
物件情報
設備詳細
| 空調 | - |
|---|---|
| トイレ | - |
| 床仕様 | - |
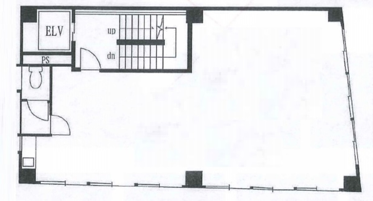
| エレベータ | 1 基 |
| 駐車場設備 | - |
| その他 | 店舗可(飲食不可) |
銀座YKビルの賃貸オフィス・事務所に関するお問い合わせ
銀座YKビルについて
銀座YKビルは、東京都中央区銀座5丁目、みゆき通りと三原通りの角地に位置する、ビジネスの中心地にふさわしいオフィス賃貸ビルです。この地の地理的、文化的価値を踏まえた上で、ビルの特性や設備、立地の利点を詳細に解説し、その魅力を丁寧にご紹介いたします。 ### 特性 銀座YKビルは、モダンなデザインと機能性を兼ね備えたオフィススペースを提供します。ビル内には1機のエレベーターが設置されており、テナントの方々の移動をスムーズにサポートします。このビルは、中小企業やスタートアップ企業に最適なサイズのオフィスフロアを提供しており、各テナントのニーズに合わせた柔軟なレイアウト変更が可能です。また、セキュリティシステムが整っているため、テナントの皆様は安心してビジネスを行うことができます。 ### 立地 銀座YKビルは、世界的にも有名な銀座地区にあります。銀座は、高級ブランドショップ、歴史あるレストラン、画廊などが立ち並び、ビジネスと文化が融合した活気ある街です。ビルからは、東京メトロ銀座線、丸ノ内線、日比谷線が乗り入れる銀座駅や、有楽町線有楽町駅が徒歩圏内にあり、東京都内はもちろんのこと、都外へのアクセスも抜群です。この立地条件は、ビジネスの機会を広げる上で大きなアドバンテージとなります。 ### 設備 銀座YKビルは、現代のビジネスニーズに合わせた設備を完備しています。高速インターネット接続、24時間利用可能なセキュリティシステム、そして快適な労働環境を保つための最新の空調システムなど、テナントの皆様が快適にお仕事できるよう、細部にわたって配慮されています。また、ビルの入口は、みゆき通りと三原通りの角地に面しており、来客の方々を迎えるにも印象的な立地です。 ### 独自の魅力とビジネス利点 銀座YKビルの最大の魅力は、その立地にあります。銀座というブランド価値の高いエリアにオフィスを構えることは、企業イメージの向上に繋がります。また、銀座地区は多様な業種の企業が集まるビジネスハブであり、新たなビジネスチャンスを見出しやすい環境です。さらに、国内外からの訪問者にとってアクセスが便利であるため、ビジネスミーティングやクライアントとの打ち合わせにも最適です。 銀座YKビルは、モダニティと機能性を兼ね備え、銀座という世界に誇れるロケーションに位置することで、ビジネスの成功を後押しする環境を提供します。このビルが、あなたのビジネスの新たな拠点となり、成功への道を拓くことを心より願っています。
銀座YKビルのこだわり
自分で探すより問い合わせる方が早いことがあります
WEB非公開物件があるから
オーナー様のご希望により「WEBでは非公開」にしている物件があります。 それらはWEBでいくら検索しても見つかりません。 先ずは条件などお知らせ頂けましたら非公開物件含め ピッタリのオフィスをご提案させて頂きます。 無理なお勧めはしておりませんので、お気軽にお問い合わせください。
対面でのご相談も受け付けております
ご来店も歓迎です
オフィス移転は社内・社外ともに非公開に行われることが殆どです。そのためアットオフィスでは、基本的に訪問によるコンサルティングを行っておりますが、ご来店の相談も歓迎です。お一人おひとりに親身にご対応させて頂きたい為、要予約とさせて頂いております。ご来店の際は先ずは下記よりご予約下さい。
募集終了のテナント区画
| 階数 | 坪数 | 賃料 + 共益費 | 敷金/礼金敷金 礼金 | 検討 |
|---|---|---|---|---|
| 1階 | 28坪 (92.56m²) | 募集終了 | - | - |
| 2階 | 28坪 (92.56m²) | 募集終了 | - | - |
| 4階 | 25.31坪 (83.68m²) | 募集終了 | - | - |
| 5階 | 25.31坪 (83.68m²) | 募集終了 | - | - |
| 6階 | 25.31坪 (83.68m²) | 募集終了 | - | - |
| 7階 | 25.31坪 (83.68m²) | 募集終了 | - | - |
| 8階 | 18.1坪 (59.83m²) | 募集終了 | - | - |
読込中...
銀座エリアで銀座YKビルに似た条件の物件
読込中...
| 取扱様態 | 仲介 |
|---|---|
| 取扱会社 | 株式会社 アットオフィス |