銀座4丁目ゑり円ビルの賃料条件
| 階数 | 坪数 | 賃料 + 共益費 | 敷金/礼金敷金 礼金 | 検討 |
|---|---|---|---|---|
| 2階 | 22坪 (72.72m²) | 1,540,000円 (坪:70,000 円) | 12ヶ月 無12ヶ月/無 |
※このサイトに記載がある賃貸条件は、敷金・保証金などの預かり金を除き、別途消費税がかかります。
物件情報
設備詳細
| 空調 | 個別空調 |
|---|---|
| トイレ | 男女共用トイレ・室内 |
| 床仕様 | OA対応床(2way/3way) |
| エレベータ | 1 基 |
| 駐車場設備 | - |
| その他 | 機械警備 / 光ファイバー / 新耐震基準 / クリニック |
銀座4丁目ゑり円ビルの賃貸オフィス・事務所に関するお問い合わせ
銀座4丁目ゑり円ビルについて
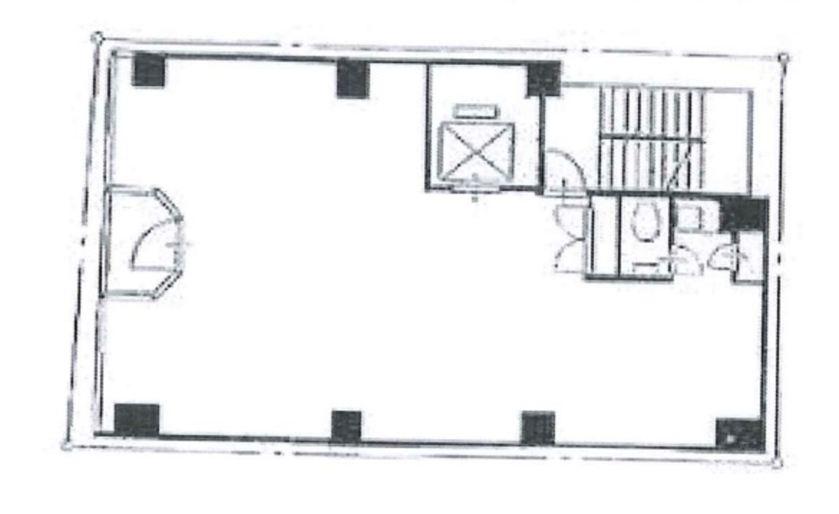
銀座のビジネスシーンを象徴するランドマーク、「ゑり円ビル」は、その名の通り、東京メトロ銀座駅A7出口からわずか徒歩1分の距離に位置し、1992年に竣工した9階建ての賃貸オフィスビルです。最高のアクセスと銀座という一等地にありながら、その機能性とデザイン性を兼ね備えた外観は、あらゆるビジネスの可能性を刺激します。 ゑり円ビルは、中央区銀座4丁目、晴海通り沿いのこの物件は、前面ガラス張りで視認性抜群、銀座駅の真上に位置し松屋銀座の目の前という、まさに銀座の中心部に位置します。こちらの立地条件はビジネスチャンスを最大限に広げるための理想的な環境を提供します。 オフィスフロアは約23坪の基準規模で、長方形に近いL字型の執務スペースが光回線に対応し、個別空調で快適なオフィス環境を実現しています。加えて、セキュリティは24時間機械警備で万全を期しており、1機のエレベーターがスムーズな移動をサポートします。 周辺環境もまた、ビジネスの成功を後押しします。多数の飲食店、コンビニ、銀行支店が徒歩圏内にあるため、ビジネスランチや急な用事にも対応しやすいです。さらに、東銀座駅、銀座一丁目駅が徒歩5分前後、有楽町駅や日比谷駅へも徒歩10分弱と複数の駅が利用可能で、都内外へのアクセスが非常に便利です。 ゑり円ビルは、その立地、設備、周辺環境を活かし、サービス店舗、クリニックなど様々なビジネスシーンに対応可能な物件です。男女別トイレのリニューアル工事も済み、屋上看板の利用が可能なため、ビジネスのプロモーションにも最適です。この利便性と機能性を兼ね備えたゑり円ビルで、あなたのビジネスを一段と輝かせましょう。
銀座4丁目ゑり円ビルのこだわり
自分で探すより問い合わせる方が早いことがあります
WEB非公開物件があるから
オーナー様のご希望により「WEBでは非公開」にしている物件があります。 それらはWEBでいくら検索しても見つかりません。 先ずは条件などお知らせ頂けましたら非公開物件含め ピッタリのオフィスをご提案させて頂きます。 無理なお勧めはしておりませんので、お気軽にお問い合わせください。
対面でのご相談も受け付けております
ご来店も歓迎です
オフィス移転は社内・社外ともに非公開に行われることが殆どです。そのためアットオフィスでは、基本的に訪問によるコンサルティングを行っておりますが、ご来店の相談も歓迎です。お一人おひとりに親身にご対応させて頂きたい為、要予約とさせて頂いております。ご来店の際は先ずは下記よりご予約下さい。
募集終了のテナント区画
| 階数 | 坪数 | 賃料 + 共益費 | 敷金/礼金敷金 礼金 | 検討 |
|---|---|---|---|---|
| B1階 | 21.2坪 (70.08m²) | 募集終了 | - | - |
| B1階 | 21.2坪 (70.08m²) | 募集終了 | - | - |
| 3階 | 22.62坪 (74.78m²) | 募集終了 | - | - |
| 4階 | 22.8坪 (75.37m²) | 募集終了 | - | - |
| 5階 | 22.8坪 (75.38m²) | 募集終了 | - | - |
| 6階 | 23坪 (76.03m²) | 募集終了 | - | - |
| 7階 | 22.8坪 (75.37m²) | 募集終了 | - | - |
| 8階 | 23坪 (76.03m²) | 募集終了 | - | - |
| 9階 | 22.8坪 (75.37m²) | 募集終了 | - | - |
読込中...
銀座エリアで銀座4丁目ゑり円ビルに似た条件の物件
読込中...
| 取扱様態 | 仲介 |
|---|---|
| 取扱会社 | 株式会社 アットオフィス |