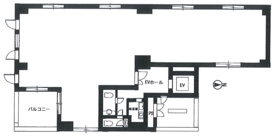
ファインラック芝5階の賃貸情報
14.08 坪 (46.55m²)
※このサイトに記載がある賃貸条件は、敷金・保証金などの預かり金を除き、別途消費税がかかります。
ファインラック芝の建物概要
設備詳細
| 空調 | 個別空調 |
|---|---|
| トイレ | 男女共用トイレ・室内 |
| 床仕様 | - |
| エレベータ | 1 基 |
| 駐車場設備 | - |
| その他 | オートロック / 光ファイバー / 機械警備 / 新耐震基準 / 保証金・敷金+礼金が3か月以下 |
ファインラック芝5階の賃貸オフィス・事務所に関するお問い合わせ
ファインラック芝について
ファインラック芝ビルは、東京都港区芝に位置する賃貸オフィス物件です。このビルは、1990年に竣工された耐震性に優れたオフィスビルであり、白いレンガ造りの外観が特徴的で、清潔感ある印象を与えます。立地としては、三田駅から徒歩6分、田町駅から徒歩10分、そして芝公園駅からは更に近い徒歩4分という、3駅利用可能な好立地に位置しています。このアクセスの利便性は、ビジネスの機会を広げるうえで大きな利点となります。 ビルの1階部分には飲食店が入居しており、ランチタイムにはお弁当なども販売されています。この飲食店の存在は、ビルに入居する企業の従業員にとって、大きな利便性をもたらします。さらに、ビルの周辺には、コンビニやスーパーマーケット、さらには地元の魚屋さんなどがあり、日常の生活に必要なものが手軽に揃います。 ビルのエントランスは、清潔感があり、エレベーターは1機設置されており、ビルの利用者の移動をスムーズにサポートします。また、ビルの1階部分の前には駐車場が設置されており、来客用や入居企業の車両用として利用することができます。 ファインラック芝ビルは、その白いレンガ造りの外観と共に、清潔感あふれるエントランス、そして飲食店を含む周辺環境の利便性が特徴です。芝商店街の一角に位置しており、地域の雰囲気にも溶け込んだ落ち着いた環境の中で、ビジネスを行うことができます。3駅が徒歩圏内にある交通の便の良さは、ビジネスの機会を広げるだけでなく、従業員の通勤の利便性をも高めます。これらの点から、ファインラック芝ビルは、様々な業種の企業にとって魅力的なオフィススペースと言えるでしょう。
ファインラック芝のこだわり
自分で探すより問い合わせる方が早いことがあります
WEB非公開物件があるから
オーナー様のご希望により「WEBでは非公開」にしている物件があります。 それらはWEBでいくら検索しても見つかりません。 先ずは条件などお知らせ頂けましたら非公開物件含め ピッタリのオフィスをご提案させて頂きます。 無理なお勧めはしておりませんので、お気軽にお問い合わせください。
対面でのご相談も受け付けております
ご来店も歓迎です
オフィス移転は社内・社外ともに非公開に行われることが殆どです。そのためアットオフィスでは、基本的に訪問によるコンサルティングを行っておりますが、ご来店の相談も歓迎です。お一人おひとりに親身にご対応させて頂きたい為、要予約とさせて頂いております。ご来店の際は先ずは下記よりご予約下さい。
近くのエリアで探してみる
浜松町/田町/芝公園エリアでファインラック芝に似た条件の物件
読込中...
ファインラック芝と同じ最寄駅の物件
読込中...
| 取扱様態 | 仲介 |
|---|---|
| 取扱会社 | 株式会社 アットオフィス |