PROSPER長野の賃料条件
| 階数 | 坪数 | 賃料 + 共益費 | 敷金/礼金敷金 礼金 | 検討 |
|---|---|---|---|---|
| 2階 | 61.54坪 (203.43m²) | 769,250円 (坪:12,500 円) | 8ヶ月 1ヶ月8ヶ月/1ヶ月 | |
| 3階 | 61.54坪 (203.44m²) | 769,250円 (坪:12,500 円) | 8ヶ月 1ヶ月8ヶ月/1ヶ月 | |
| 4階 | 61.54坪 (203.44m²) | 769,250円 (坪:12,500 円) | 8ヶ月 1ヶ月8ヶ月/1ヶ月 |
※このサイトに記載がある賃貸条件は、敷金・保証金などの預かり金を除き、別途消費税がかかります。
物件情報
設備詳細
| 空調 | 個別空調 |
|---|---|
| トイレ | - |
| 床仕様 | - |
| エレベータ | 1 基 |
| 駐車場設備 | - |
| その他 | 機械警備 / 24時間利用可 / 光ファイバー / 新耐震基準 / 東京賃料が坪11000円以下 |
PROSPER長野の賃貸オフィス・事務所に関するお問い合わせ
PROSPER長野について
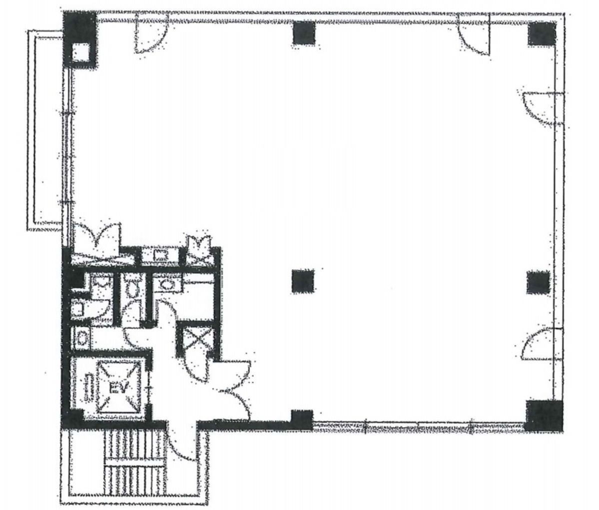
PROSPER長野ビルは、東京都中央区月島4-6-1に位置する、1995年竣工のオフィスビルです。地上6階建てのこの物件は、新耐震基準に準拠しており、安心してご利用いただけます。ビルの基準階約61坪の広さを誇り、機能的な室内レイアウトが可能で、ビジネスの多様なニーズに応える柔軟性を持っています。 立地においては、東京メトロ有楽町線および都営大江戸線の月島駅から徒歩約6分と、非常にアクセスが良好です。2路線が利用可能であり、都心部への移動もスムーズに行えるため、ビジネスの機会を広げる上で大きな利点となります。また、周辺にはコンビニエンスストアや飲食店が豊富にあり、日々の業務に必要なものや、ランチ・ディナーの選択肢に困ることがありません。 ビルの設備面では、11人乗りのエレベーター1基を完備しており、ビル内の移動もスムーズです。セキュリティ面では、機械警備とオートロックシステムを導入しており、テナントの安全を確保しています。また、ワンフロア・ワンテナントの構造は、プライバシーと独立性を高め、集中して業務に取り組むことができます。トイレは男女別で、室外に配置されており、給湯スペースも室内に設けられています。 外観は、落ち着いたグレーのタイル張りで、清潔感があり、プロフェッショナルな印象を与えます。角地に位置しているため、採光性に優れ、明るい室内環境を提供します。また、ビルの1階にはコインランドリーやペット用品店が入居しており、テナントの方々の生活をサポートします。 PROSPER長野ビルは、その立地、設備、セキュリティの面で、ビジネスを行う上での利便性と安心感を兼ね備えた物件です。都心へのアクセスの良さと周辺環境の充実が、ビジネスの発展に貢献することでしょう。
PROSPER長野のこだわり
自分で探すより問い合わせる方が早いことがあります
WEB非公開物件があるから
オーナー様のご希望により「WEBでは非公開」にしている物件があります。 それらはWEBでいくら検索しても見つかりません。 先ずは条件などお知らせ頂けましたら非公開物件含め ピッタリのオフィスをご提案させて頂きます。 無理なお勧めはしておりませんので、お気軽にお問い合わせください。
対面でのご相談も受け付けております
ご来店も歓迎です
オフィス移転は社内・社外ともに非公開に行われることが殆どです。そのためアットオフィスでは、基本的に訪問によるコンサルティングを行っておりますが、ご来店の相談も歓迎です。お一人おひとりに親身にご対応させて頂きたい為、要予約とさせて頂いております。ご来店の際は先ずは下記よりご予約下さい。
読込中...
勝どき/晴海エリアでPROSPER長野に似た条件の物件
読込中...
| 取扱様態 | 仲介 |
|---|---|
| 取扱会社 | 株式会社 アットオフィス |