※このサイトに記載がある賃貸条件は、敷金・保証金などの預かり金を除き、別途消費税がかかります。
物件情報
設備詳細
| 空調 | 個別空調 |
|---|---|
| トイレ | 男女別トイレ室外 |
| 床仕様 | - |
| エレベータ | 1 基 |
| 駐車場設備 | 空有 / 機械式駐車場 |
| その他 | 24時間利用可 / 新耐震基準 / 機械警備 / フリーレント |
立川トーセイビルⅥの賃貸オフィス・事務所に関するお問い合わせ
立川トーセイビルⅥについて
大黒屋ビルヂングは、立川市曙町2丁目に位置し、多摩都市モノレール線「立川北駅」から徒歩5分、さらに中央本線・南武線「立川駅」からも徒歩6分という場所に所在します。周辺には主要な交通機関が集まり、複数路線の利用が可能なエリアとなっています。 建物は地上9階建で、エレベーターが1基設置されています。24時間の利用が可能で、機械式駐車場も備えられています。さらに、機械警備システムや新耐震基準にも対応しています。 このような条件により、時間や交通手段に柔軟性を持った働き方や、車両での来訪が想定される法人利用など、さまざまな業務形態に対応することができます。ビルの構造や設備により、入居者が多様なワークスタイルを組み立てやすい環境が用意されています。 立地や建物の特徴について詳細なご質問がございましたら、お気軽にお問い合わせください。
自分で探すより問い合わせる方が早いことがあります
WEB非公開物件があるから
オーナー様のご希望により「WEBでは非公開」にしている物件があります。 それらはWEBでいくら検索しても見つかりません。 先ずは条件などお知らせ頂けましたら非公開物件含め ピッタリのオフィスをご提案させて頂きます。 無理なお勧めはしておりませんので、お気軽にお問い合わせください。
対面でのご相談も受け付けております
ご来店も歓迎です
オフィス移転は社内・社外ともに非公開に行われることが殆どです。そのためアットオフィスでは、基本的に訪問によるコンサルティングを行っておりますが、ご来店の相談も歓迎です。お一人おひとりに親身にご対応させて頂きたい為、要予約とさせて頂いております。ご来店の際は先ずは下記よりご予約下さい。
募集終了のテナント区画
| 階数 | 坪数 | 賃料 + 共益費 | 敷金/礼金敷金 礼金 | 検討 |
|---|---|---|---|---|
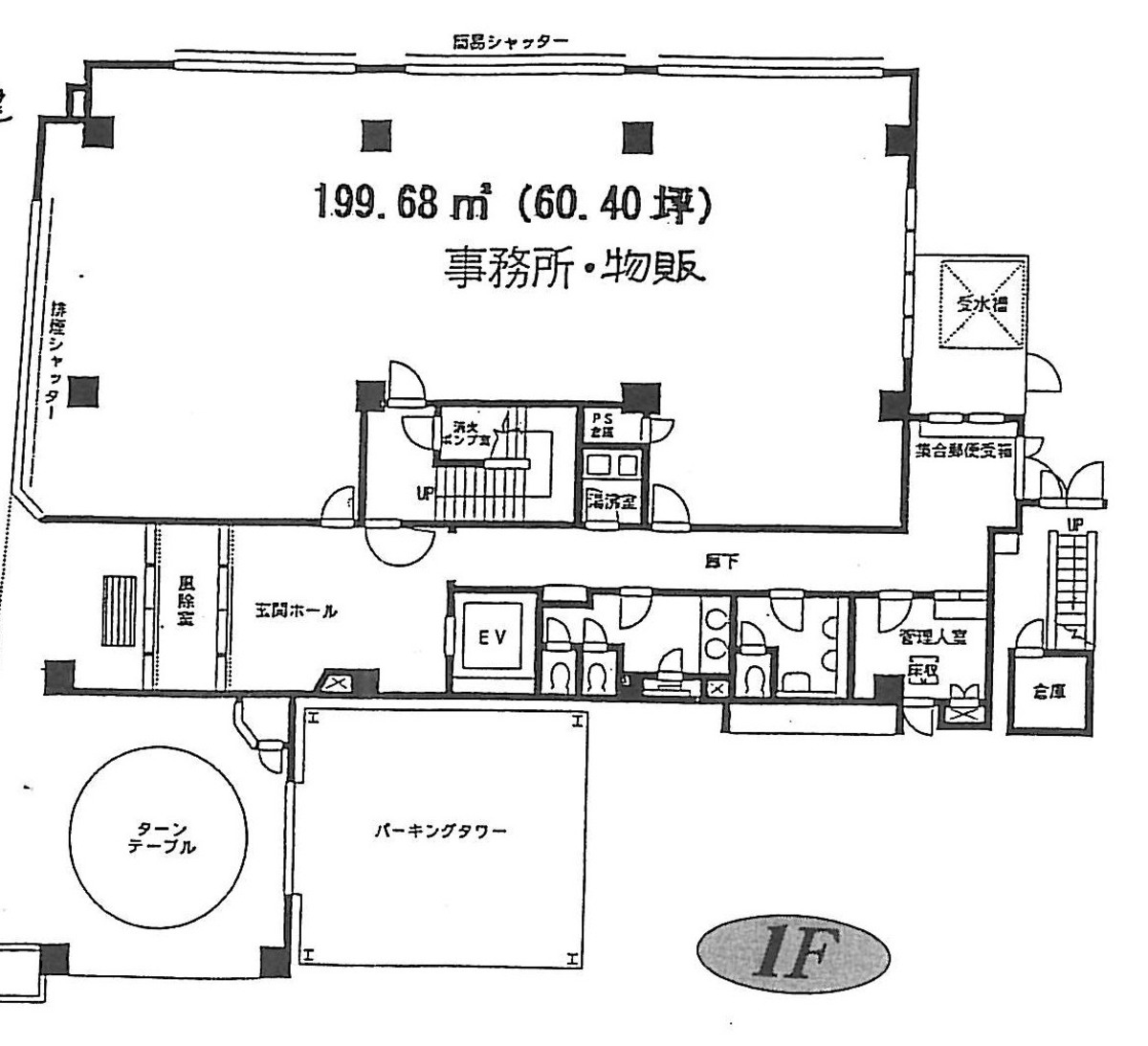
| 1階 | 60.4坪 (199.68m²) | 募集終了 | - | - |
| 2階 | 50.69坪 (167.58m²) | 募集終了 | - | - |
| 2階 | 41.92坪 (138.6m²) | 募集終了 | - | - |
| 3階 | 30.44坪 (100.62m²) | 募集終了 | - | - |
| 4階 | 50.69坪 (167.58m²) | 募集終了 | - | - |
| 4階 | 41.92坪 (138.6m²) | 募集終了 | - | - |
| 5階 | 20.25坪 (66.94m²) | 募集終了 | - | - |
| 5階 | 41.92坪 (138.6m²) | 募集終了 | - | - |
| 6階 | 46.33坪 (153.15m²) | 募集終了 | - | - |
| 6階 | 39.21坪 (129.63m²) | 募集終了 | - | - |
| 7階 | 42.8坪 (141.49m²) | 募集終了 | - | - |
| 7階 | 18.4坪 (60.84m²) | 募集終了 | - | - |
| 8階 | 21.49坪 (71.06m²) | 募集終了 | - | - |
| 9階 | 33.32坪 (110.17m²) | 募集終了 | - | - |
近くのエリアで探してみる
エリアで立川トーセイビルⅥに似た条件の物件
読込中...
| 取扱様態 | 仲介 |
|---|---|
| 取扱会社 | 株式会社 アットオフィス |