NREG銀座ビルの賃料条件
| 階数 | 坪数 | 賃料 + 共益費 | 敷金/礼金敷金 礼金 | 検討 |
|---|---|---|---|---|
| 4階 | 51.33坪 (169.71m²) | お問合せ下さい (坪:-) | 相談 無相談/無 | |
| 5階 | 51.33坪 (169.71m²) | お問合せ下さい (坪:-) | 相談 無相談/無 | |
| 6階 | 51.33坪 (169.71m²) | お問合せ下さい (坪:-) | 相談 無相談/無 | |
| 7階 | 51.33坪 (169.71m²) | お問合せ下さい (坪:-) | 相談 無相談/無 |
※このサイトに記載がある賃貸条件は、敷金・保証金などの預かり金を除き、別途消費税がかかります。
物件情報
設備詳細
| 空調 | 個別空調 |
|---|---|
| トイレ | - |
| 床仕様 | OA対応床(フリーアクセス) |
| エレベータ | 1 基 |
| 駐車場設備 | - |
| その他 | 大型ビル / 管理人常駐 / 新耐震基準 |
NREG銀座ビルの賃貸オフィス・事務所に関するお問い合わせ
NREG銀座ビルについて
NREG銀座ビルは、1990年に竣工し、2010年には最新の設備へとリニューアルされた、銀座7丁目に位置する高スペックオフィスビルです。新耐震基準に準拠したこの物件は、安心して長期にわたりご利用いただける構造を有しており、ビジネスの基盤として理想的な環境を提供します。さらに、御影石をあしらったエントランスは、訪れる全ての人に明るく上品な印象を与えます。 このビルの最大の魅力は、その卓越したアクセスの良さにあります。東京メトロ日比谷線、都営浅草線「東銀座」駅より徒歩約4分の位置にあり、東京メトロ各線「銀座」駅も徒歩圏内にあるため、都内はもちろん、周辺地域へのアクセスも抜群です。ビジネスの中心地・銀座における立地は、企業のブランドイメージ向上にも寄与し、幅広い業種の企業にとって魅力的な環境を提供します。 ビル内の設備においても、快適なオフィス環境の実現に向けた配慮が随所に見られます。大通りに面した窓からは豊富な自然光が差し込み、活気あふれる業務空間を作り出します。また、トイレは男女別で、プライバシーと快適性を確保。エレベーターは1機稼働し、ビル内の流動性を高めています。貸室内への入り口が2箇所設けられており、来客用と従業員用としての分離使用が可能であり、さらに正方形に近い間取りにより、オフィスレイアウトの自由度も高くなっています。 安全面においては、最新の機械警備システムを導入。テナント企業の貴重な機密情報保護も万全です。また、ビル内には駐車場も完備されており、お車でのご来社もスムーズに対応可能です。 NREG銀座ビルは、その立地の良さ、高スペックな設備、そして上質なデザインが融合した、ビジネスの成功を後押しする理想的なオフィス環境を提供します。企業の成長と発展を加速させるための最高の選択肢と言えるでしょう。
自分で探すより問い合わせる方が早いことがあります
WEB非公開物件があるから
オーナー様のご希望により「WEBでは非公開」にしている物件があります。 それらはWEBでいくら検索しても見つかりません。 先ずは条件などお知らせ頂けましたら非公開物件含め ピッタリのオフィスをご提案させて頂きます。 無理なお勧めはしておりませんので、お気軽にお問い合わせください。
対面でのご相談も受け付けております
ご来店も歓迎です
オフィス移転は社内・社外ともに非公開に行われることが殆どです。そのためアットオフィスでは、基本的に訪問によるコンサルティングを行っておりますが、ご来店の相談も歓迎です。お一人おひとりに親身にご対応させて頂きたい為、要予約とさせて頂いております。ご来店の際は先ずは下記よりご予約下さい。
募集終了のテナント区画
| 階数 | 坪数 | 賃料 + 共益費 | 敷金/礼金敷金 礼金 | 検討 |
|---|---|---|---|---|
| B1階 | 38.64坪 (127.74m²) | 募集終了 | - | - |
| 1階 | 37.63坪 (124.42m²) | 募集終了 | - | - |
| 1階 | 36.49坪 (120.65m²) | 募集終了 | - | - |
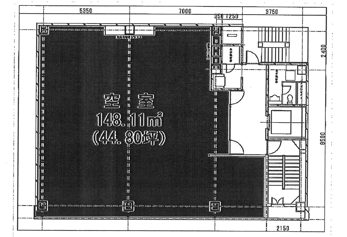
| 2階 | 44.8坪 (148.11m²) | 募集終了 | - | - |
| 3階 | 44.8坪 (148.11m²) | 募集終了 | - | - |
| 4階 | 118坪 (390.08m²) | 募集終了 | - | - |
| 4階 | 118坪 (390.08m²) | 募集終了 | - | - |
| 4階 | 44.8坪 (148.11m²) | 募集終了 | - | - |
| 5階 | 78坪 (257.85m²) | 募集終了 | - | - |
| 5階 | 78坪 (257.85m²) | 募集終了 | - | - |
| 5階 | 44.8坪 (148.11m²) | 募集終了 | - | - |
| 6階 | 134.17坪 (443.53m²) | 募集終了 | - | - |
| 6階 | 134.17坪 (443.53m²) | 募集終了 | - | - |
| 6階 | 134.17坪 (443.53m²) | 募集終了 | - | - |
| 6階 | 16.83坪 (55.63m²) | 募集終了 | - | - |
| 6階 | 16.83坪 (55.63m²) | 募集終了 | - | - |
| 6階 | 44.8坪 (148.11m²) | 募集終了 | - | - |
| 8階 | 44.8坪 (148.11m²) | 募集終了 | - | - |
| 9階 | 50.4坪 (166.61m²) | 募集終了 | - | - |
| 9階 | 50.4坪 (166.61m²) | 募集終了 | - | - |
読込中...
銀座エリアでNREG銀座ビルに似た条件の物件
読込中...
| 取扱様態 | 仲介 |
|---|---|
| 取扱会社 | 株式会社 アットオフィス |