銀座上一ビルディング6階の賃貸情報
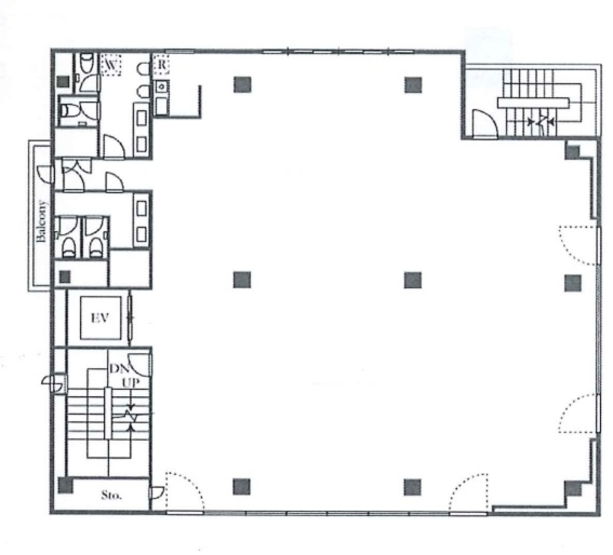
75.81 坪 (250.62m²)
※このサイトに記載がある賃貸条件は、敷金・保証金などの預かり金を除き、別途消費税がかかります。
銀座上一ビルディングの建物概要
設備詳細
| 空調 | 個別空調 |
|---|---|
| トイレ | - |
| 床仕様 | OA対応床(フリーアクセス) |
| エレベータ | 1 基 |
| 駐車場設備 | - |
| その他 | 新耐震基準 / 機械警備 / クリニック |
銀座上一ビルディング6階の賃貸オフィス・事務所に関するお問い合わせ
銀座上一ビルディングについて
銀座上一ビルは、東京都中央区の銀座1丁目に位置する、アクセス抜群のオフィス賃貸ビルです。このビルは、銀座一丁目駅から徒歩わずか1分、銀座駅からは徒歩3分、有楽町駅からも徒歩5分という、複数路線を利用可能な絶好の立地条件を誇ります。ビジネスの中心地である銀座地区に位置しながら、このようなアクセスの利便性は、従業員の通勤やクライアントの訪問にとって非常に魅力的です。 銀座上一ビルは、周辺が高級ブランド店舗で溢れるエリアに位置しており、高級感あふれるビジネス環境を提供しています。ビルのエントランスは土日も開閉可能であり、来店型のオフィスや店舗にぴったりの設計となっています。この柔軟性は、週末営業を考えるテナントにとって大きな利点となるでしょう。 ビル内の設備は、ビジネスニーズを満たすために細心の注意を払って整備されています。エレベーターは1機設置されており、スムーズな移動をサポート。OAフロアは、オフィスの機能性を高めるために導入されており、機械警備システムはテナントの安全を24時間体制で守ります。また、4階の水回りのリニューアルは、快適なオフィス環境を求めるテナントにとって大きな魅力となります。 内装は、現状事務所利用に適していますが、店舗利用も可能という柔軟性を持ち合わせています。このことから、様々なビジネスの形態に合わせてスペースをカスタマイズできるため、テナントのニーズに合わせた最適なオフィス環境を実現することが可能です。 銀座上一ビルのテナントとして入居することは、ただ単にオフィススペースを得ること以上の価値を提供します。このビルからは、銀座という日本を代表するビジネスエリアの活気を直接感じ取ることができます。また、他フロアのテナントが集客を見込める店舗であることから、自然とビル内でのシナジー効果が期待でき、ビジネスのさらなる発展を見込むことができるでしょう。 まとめると、銀座上一ビルはその立地、設備、そして柔軟性を兼ね備えたビルであり、ビジネスのさまざまなニーズに応える最適な環境を提供します。銀座という一等地で、効率的かつ快適なオフィス環境を求める企業にとって、銀座上一ビルはまさに理想的な選択肢です。
その他の区画
| 階数 | 坪数 | 賃料 + 共益費 | 敷金/礼金敷金 礼金 | 検討 |
|---|---|---|---|---|
| 4階 | 75.81坪 (250.61m²) | 1,516,200円 (坪:20,000 円) | 10ヶ月 無10ヶ月/無 |
自分で探すより問い合わせる方が早いことがあります
WEB非公開物件があるから
オーナー様のご希望により「WEBでは非公開」にしている物件があります。 それらはWEBでいくら検索しても見つかりません。 先ずは条件などお知らせ頂けましたら非公開物件含め ピッタリのオフィスをご提案させて頂きます。 無理なお勧めはしておりませんので、お気軽にお問い合わせください。
対面でのご相談も受け付けております
ご来店も歓迎です
オフィス移転は社内・社外ともに非公開に行われることが殆どです。そのためアットオフィスでは、基本的に訪問によるコンサルティングを行っておりますが、ご来店の相談も歓迎です。お一人おひとりに親身にご対応させて頂きたい為、要予約とさせて頂いております。ご来店の際は先ずは下記よりご予約下さい。
銀座エリアで銀座上一ビルディングに似た条件の物件
読込中...
銀座上一ビルディングと同じ最寄駅の物件
読込中...
| 取扱様態 | 仲介 |
|---|---|
| 取扱会社 | 株式会社 アットオフィス |