八重洲龍名館6階の賃貸情報
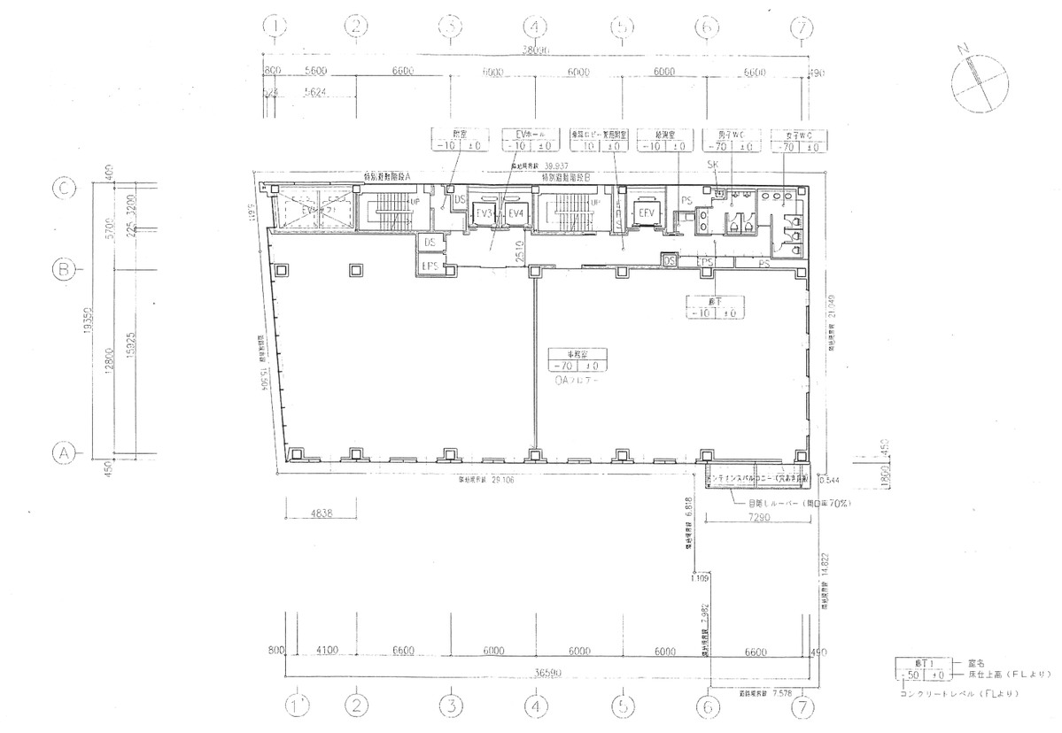
76.17 坪 (251.8m²)
※このサイトに記載がある賃貸条件は、敷金・保証金などの預かり金を除き、別途消費税がかかります。
八重洲龍名館の建物概要
設備詳細
| 空調 | - |
|---|---|
| トイレ | - |
| 床仕様 | OA対応床(フリーアクセス) |
| エレベータ | 3 基 |
| 駐車場設備 | 空有 |
| その他 | 大型ビル / 新耐震基準 |
八重洲龍名館6階の賃貸オフィス・事務所に関するお問い合わせ
八重洲龍名館について
八重洲龍名館ビルは、東京都中央区八重洲1丁目に位置する、2009年に竣工された最新耐震基準に則ったハイグレードな複合型オフィスビルです。本ビルは、その立地、設備、および付帯するサービスにおいて、企業のニーズに応える多面的な機能を有しています。 ### 立地の魅力 八重洲龍名館ビルは、東京駅から徒歩3分という非常に利便性の高い位置にあります。この立地は、JR線、東京メトロ、その他多数の路線が集結する交通のハブであり、ビジネスにおける移動の利便性を極大化します。また、日本橋駅、大手町駅へのアクセスも容易であり、都心の商業地域や金融地域へのアクセスも抜群です。周辺には、銀行、郵便局、コンビニエンスストア、カフェなどが豊富にあり、ビジネスだけでなく日常生活の利便性も高められています。 ### 設備とサービス 八重洲龍名館ビルの基準階面積は158坪と広大で、天井高2,650mmの開放感のある空間が広がっています。無柱構造で設計されているため、オフィスレイアウトの自由度が高く、効率的なワークスペースの設計が可能です。また、床荷重は300kg/㎡(ヘビーデューティーゾーンでは500kg/㎡)となっており、重量のある機器の設置も安心です。OAフロアは70mmを確保し、IT機器の多用する現代のオフィスニーズに適応しています。 ビルには3基のエレベーターが設置されており、円滑な移動を支援します。駐車場はビル内に設けられており、空き状況についてはお問い合わせが必要です。セキュリティ面では、非接触カードリーダーや有人・機械警備が導入されており、入居企業の安全と安心を守ります。 ### 複合型施設の魅力 ビルの上層階にはホテル龍名館東京が入居しており、ビジネスで遠方から来たお客様の宿泊にも便利です。ホテルは、100年以上の伝統を持ち、「和」をコンセプトにしたデザインで、日本のおもてなしの心を体験できます。また、1階にはパブ&ダイニングが入居しており、おしゃれな雰囲気の中でビジネスミーティングや食事を楽しむことができます。 ### まとめ 八重洲龍名館ビルは、その卓越した立地、最新のオフィス環境、そして複合型施設としての機能を兼ね備えた賃貸オフィスビルです。東京駅近くという利便性、ハイグレードなオフィス環境、そして「和」の心が感じられるホテルの併設は、国内外からのビジネスパートナーを迎える上で大きなアドバンテージとなるでしょう。このビルは、様々なビジネスシーンにおいて、企業の成長と成功を強力にサポートする存在となることでしょう。
自分で探すより問い合わせる方が早いことがあります
WEB非公開物件があるから
オーナー様のご希望により「WEBでは非公開」にしている物件があります。 それらはWEBでいくら検索しても見つかりません。 先ずは条件などお知らせ頂けましたら非公開物件含め ピッタリのオフィスをご提案させて頂きます。 無理なお勧めはしておりませんので、お気軽にお問い合わせください。
対面でのご相談も受け付けております
ご来店も歓迎です
オフィス移転は社内・社外ともに非公開に行われることが殆どです。そのためアットオフィスでは、基本的に訪問によるコンサルティングを行っておりますが、ご来店の相談も歓迎です。お一人おひとりに親身にご対応させて頂きたい為、要予約とさせて頂いております。ご来店の際は先ずは下記よりご予約下さい。
近くのエリアで探してみる
八重洲/日本橋/三越前エリアで八重洲龍名館に似た条件の物件
読込中...
八重洲龍名館と同じ最寄駅の物件
読込中...
| 取扱様態 | 仲介 |
|---|---|
| 取扱会社 | 株式会社 アットオフィス |