THE PORTAL 東京八重洲ビル3階の賃貸情報
34.5 坪 (114.06m²)
※このサイトに記載がある賃貸条件は、敷金・保証金などの預かり金を除き、別途消費税がかかります。
THE PORTAL 東京八重洲ビルの建物概要
設備詳細
| 空調 | 個別空調 |
|---|---|
| トイレ | - |
| 床仕様 | OA対応床(フリーアクセス) |
| エレベータ | 1 基 |
| 駐車場設備 | - |
| その他 | 機械警備 / 24時間利用可 / 光ファイバー / 新耐震基準 / クリニック |
THE PORTAL 東京八重洲ビルについて
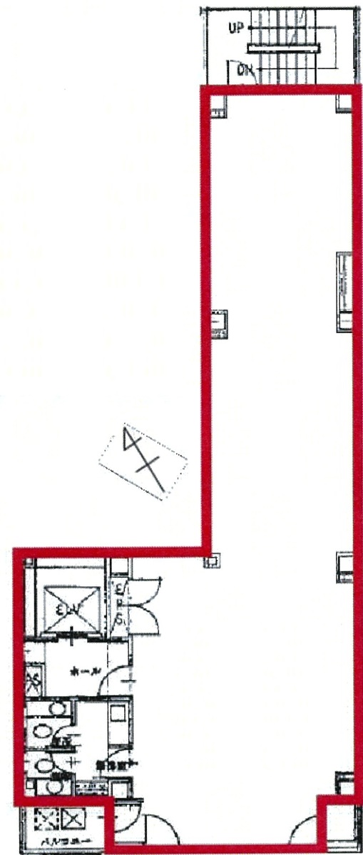
ビジネスの中心地、東京の心臓部に輝くヒューリック八重洲通ビルは、1992年に完成し、新耐震基準に準拠した安心と信頼を提供する賃貸オフィス物件です。このビルは地上10階建てで、各フロアが約35坪の使いやすいL字型の間取りで設計されており、効率的なオフィスレイアウトを実現しています。1基のエレベーターが設置されており、迅速な移動をサポートします。 立地に関しては、ヒューリック八重洲通ビルは中央区日本橋に位置し、東京駅から徒歩7分というビジネスにとって最適なアクセスを誇ります。さらに、最寄り駅である日本橋駅からは徒歩5分と、複数の駅が徒歩圏内にあり、京橋駅、宝町駅、八丁堀駅へもアクセスが容易です。この素晴らしい立地は、ビジネスの機会を最大限に引き出すための理想的な環境を提供します。 ビルの設備面では、24時間利用可能な機械警備システムを導入し、入居者の安全とセキュリティを確保しています。また、各階には個別空調が完備されており、快適なオフィス環境を一年中保つことができます。1階にはタリーズコーヒーが入っており、ビジネスの合間のリフレッシュに最適です。 周辺環境も魅力の一つです。オフィス街の中心に位置し、隣にはコンビニがあり、日々の生活に必要なものがすぐに手に入ります。さらに、メガバンクを含む銀行の支店が多く立ち並ぶエリアで、ビジネス上の様々なニーズに応えることができます。 ヒューリック八重洲通ビルは、効率的なオフィススペース、安全な設備、そしてビジネスチャンスに満ちた絶好の立地を兼ね備えた、企業の成長と発展をサポートする理想的なビルです。ビジネスの核となる場所で、新たな一歩を踏み出しませんか?
自分で探すより問い合わせる方が早いことがあります
WEB非公開物件があるから
オーナー様のご希望により「WEBでは非公開」にしている物件があります。 それらはWEBでいくら検索しても見つかりません。 先ずは条件などお知らせ頂けましたら非公開物件含め ピッタリのオフィスをご提案させて頂きます。 無理なお勧めはしておりませんので、お気軽にお問い合わせください。
対面でのご相談も受け付けております
ご来店も歓迎です
オフィス移転は社内・社外ともに非公開に行われることが殆どです。そのためアットオフィスでは、基本的に訪問によるコンサルティングを行っておりますが、ご来店の相談も歓迎です。お一人おひとりに親身にご対応させて頂きたい為、要予約とさせて頂いております。ご来店の際は先ずは下記よりご予約下さい。
近くのエリアで探してみる
八重洲/日本橋/三越前エリアでTHE PORTAL 東京八重洲ビルに似た条件の物件
読込中...
THE PORTAL 東京八重洲ビルと同じ最寄駅の物件
読込中...
| 取扱様態 | 仲介 |
|---|---|
| 取扱会社 | 株式会社 アットオフィス |