※このサイトに記載がある賃貸条件は、敷金・保証金などの預かり金を除き、別途消費税がかかります。
物件情報
設備詳細
| 空調 | 個別空調 |
|---|---|
| トイレ | 男女別トイレ室外 |
| 床仕様 | - |
| エレベータ | 1 基 |
| 駐車場設備 | - |
| その他 | 機械警備 / 24時間利用可 / 光ファイバー |
ニュー八重洲ビルの賃貸オフィス・事務所に関するお問い合わせ
ニュー八重洲ビルについて
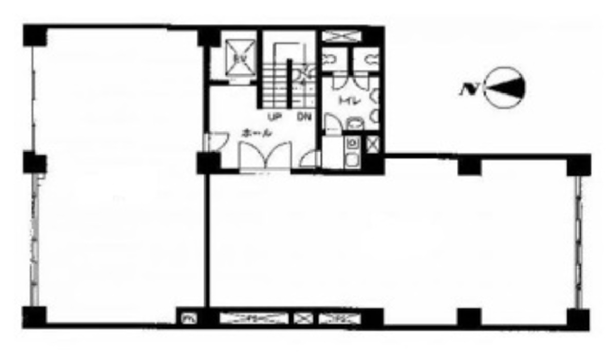
ニュー八重洲ビルは、中央区日本橋3丁目に位置する、賃貸オフィスビルです。この物件は、1964年に竣工された地上10階・地下1階建ての建物であり、その立地と設備はビジネスの拠点としての魅力を多方面に提供しています。本稿では、ニュー八重洲ビルの特徴、立地、設備について、専門的かつ丁寧に解説いたします。 【特徴】 ニュー八重洲ビルは、基準階面積が約54.5坪の賃貸オフィススペースを提供しています。その内装は、L字型の間取りで設計されており、奥行きのある空間が特徴です。このような設計は、効率的なオフィスレイアウトを可能にし、多様なビジネスニーズに対応しています。また、個別空調システムにより、各テナントは快適な室内環境を自由に調節できます。 【立地】 東京駅および日本橋駅から徒歩圏内に位置するこのビルは、交通アクセスの優れた立地を誇ります。八重洲通りに面しており、視認性が高いことも大きな特長です。周辺には、日本橋高島屋をはじめとする商業施設が充実しており、ビジネスだけでなく日常の利便性も高いエリアです。 【設備】 ニュー八重洲ビルは、1基のエレベーターを備えており、高いセキュリティ体制も整っています。機械警備と有人警備の併用により、テナントと来訪者の安全を確保しています。また、各フロアには男女別のトイレが設置されており、OAフロアも完備されています。 【ビジネスにおける利点】 ニュー八重洲ビルの立地と設備は、多種多様なビジネスに最適な環境を提供します。東京の中心部に位置し、複数の交通網が利用可能なことは、ビジネスの機会を最大化する上で不可欠です。また、高いセキュリティと快適なオフィス環境は、従業員の働きやすさと企業の信頼性向上に寄与するでしょう。 まとめると、ニュー八重洲ビルは、その設備、立地、そして設計において、多くのビジネスシーンにおいて最適なソリューションを提供する賃貸オフィスビルと言えます。東京のビジネスの中心地である八重洲地区における貴社の新しい拠点として、是非ともご検討いただければと思います。
ニュー八重洲ビルのこだわり
自分で探すより問い合わせる方が早いことがあります
WEB非公開物件があるから
オーナー様のご希望により「WEBでは非公開」にしている物件があります。 それらはWEBでいくら検索しても見つかりません。 先ずは条件などお知らせ頂けましたら非公開物件含め ピッタリのオフィスをご提案させて頂きます。 無理なお勧めはしておりませんので、お気軽にお問い合わせください。
対面でのご相談も受け付けております
ご来店も歓迎です
オフィス移転は社内・社外ともに非公開に行われることが殆どです。そのためアットオフィスでは、基本的に訪問によるコンサルティングを行っておりますが、ご来店の相談も歓迎です。お一人おひとりに親身にご対応させて頂きたい為、要予約とさせて頂いております。ご来店の際は先ずは下記よりご予約下さい。
募集終了のテナント区画
| 階数 | 坪数 | 賃料 + 共益費 | 敷金/礼金敷金 礼金 | 検討 |
|---|---|---|---|---|
| 2階 | 28.2坪 (93.23m²) | 募集終了 | - | - |
| 2階 | 26.24坪 (86.75m²) | 募集終了 | - | - |
| 3階 | 28.2坪 (93.22m²) | 募集終了 | - | - |
| 3階 | 28.2坪 (93.22m²) | 募集終了 | - | - |
読込中...
近くのエリアで探してみる
八重洲/日本橋/三越前エリアでニュー八重洲ビルに似た条件の物件
読込中...
| 取扱様態 | 仲介 |
|---|---|
| 取扱会社 | 株式会社 アットオフィス |