※このサイトに記載がある賃貸条件は、敷金・保証金などの預かり金を除き、別途消費税がかかります。
物件情報
設備詳細
| 空調 | 個別空調 |
|---|---|
| トイレ | 男女別トイレ室外 |
| 床仕様 | - |
| エレベータ | 1 基 |
| 駐車場設備 | 空有 |
| その他 | 24時間利用可 / 光ファイバー / 東京賃料が坪11000円以下 |
三陽ビルの賃貸オフィス・事務所に関するお問い合わせ
三陽ビルについて
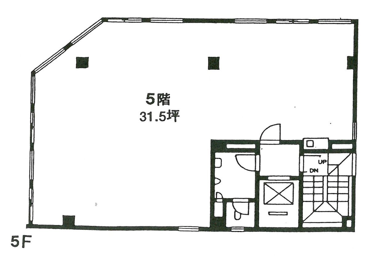
三陽ビルは東京都港区新橋に位置する、歴史あるオフィス賃貸ビルです。立地としては、塩釜公園の裏手に面しており、新橋エリアの中でも特に赤れんが通りに位置しています。この赤れんが通りは、飲食店が豊富で活気ある通りとして知られており、ビジネスとレジャーの両面で魅力的な環境を提供しています。特に三陽ビルが位置する新橋5丁目エリアは、駅前よりも飲食店が密集していないため、より静かで落ち着いた雰囲気でオフィスを構えたい企業に最適です。 三陽ビルの最大の特徴は、その外観にあります。銅板のような色合いのパネルが特徴的で、周囲のオフィスビルと一線を画するデザインを持っています。また、角地に位置しているため、視認性も高く、アクセスも優れています。御成門駅からは徒歩4分という近さで、新橋の中心地からは少し離れた地域にありますが、それがゆえにレトロな物件が多く、賃料相場が手頃である点も魅力の一つです。 三陽ビルは1974年に竣工した、旧耐震基準のビルでありながら、基準階面積31.5坪のフロアが利用可能で、光ファイバーや個別空調など現代のオフィスニーズにも対応しています。内装はレトロな印象を持ちつつも、三面採光による明るい室内が働く人々の創造性と生産性を高める快適な空間を提供します。また、付近には公園や神社など、オフィスワークの合間にリフレッシュできるスポットも点在しており、働きやすい環境が整っています。 設傈面では、ビル内に月極駐車場があり、車でのアクセスも容易です。また、24時間利用可能なため、ビジネスの様々なニーズに対応することが可能です。エレベーターは1機設置されており、ビルの機能性を支えています。 以上のように、三陽ビルはその立地、設備、デザインなど、ビジネスにおける多様なニーズに応えうる魅力あふれる賃貸オフィスビルです。新橋エリアでのオフィス検討に際しては、ぜひ三陽ビルをご検討いただければと思います。
三陽ビルのこだわり
自分で探すより問い合わせる方が早いことがあります
WEB非公開物件があるから
オーナー様のご希望により「WEBでは非公開」にしている物件があります。 それらはWEBでいくら検索しても見つかりません。 先ずは条件などお知らせ頂けましたら非公開物件含め ピッタリのオフィスをご提案させて頂きます。 無理なお勧めはしておりませんので、お気軽にお問い合わせください。
対面でのご相談も受け付けております
ご来店も歓迎です
オフィス移転は社内・社外ともに非公開に行われることが殆どです。そのためアットオフィスでは、基本的に訪問によるコンサルティングを行っておりますが、ご来店の相談も歓迎です。お一人おひとりに親身にご対応させて頂きたい為、要予約とさせて頂いております。ご来店の際は先ずは下記よりご予約下さい。
読込中...
近くのエリアで探してみる
新橋/虎ノ門/神谷町エリアで三陽ビルに似た条件の物件
読込中...
| 取扱様態 | 仲介 |
|---|---|
| 取扱会社 | 株式会社 アットオフィス |